获奖无数的西班牙建筑工作室Fran Silvestre Arquitectos近期完成了一项巨大挑战——改造“松树林之家”(House Between the Pine Forest)。这座林间别墅初建于70年代,屋内虽有时代元素,却缺乏完整的视觉表达。尽管原本的设计有诸多不完美之处,但在客户一家人心中,这里寄托着沉淀多年的美好回忆。如何在保护情感价值的基础上进行改造?这成为建筑工作室面临的主要挑战。最后,设计团队用大胆的极简主义风格让这栋老房子焕发新生。本期THE PLUS带大家去这栋大宅里走一走。
▲错落多主体组合形成独特的层次结构
雪白的“松树林之家”位于西班牙Paterna市的郊区,整栋房子分为几个不同的主体,高低错落,依托于主体建筑形成的露台则为房屋增添了几分地中海建筑风格。这座723平方米的“豪宅”共有五个卧室、一个超大会客厅,并配有健身房、桑拿房、露天泳池、室内泳池以及按摩泳池,在一楼还有一个大露台......
▲“松树林之家”位于西班牙Paterna市郊
和外观一样,房屋的内部空间也主要使用白色,同时选用了配合周边环境的松木纹木材。室内设计师Alfaro Hofmann选择了Minotti和Gandia Blasco等品牌的家具,力求内部装饰和整体风格保持一致。
▲室内设计师Alfaro Hofmann精心挑选的家具
整个项目从设计到完工,耗时两年。在交谈中,Fran Silvestre Arquitectos工作室告诉我们:“建筑图纸需要综合考量这里的地形,甚至每一棵树的位置。”
这个专注于国际住宅、企业、公共和文化设计项目的团队,希望在建筑过程中发掘美的存在。 在这份设计里,尽是纯粹的简洁之美。
▲下沉式天井加强了建筑结构的层次感
整个打造过程,还有哪些设计方面的决策呢?建筑团队和我们分享了更多设计细节。
TP:房子太漂亮了,最初为什么选择全白?
FSA:白色能让比较低矮的房子看起来宽敞一些,也能更好地反射光线,使房屋内外更加和谐。
▲外部阴影与内部漫反射自然光交错
TP:使用全白有的时候会比较冒险,怎样避免那种太过单调的感觉?
FSA:室内照明全部选用了暖色,所以晚间的房子看起来会很温暖。隐藏式和线型照明能让光线柔和不刺眼。
▲自然光能为起居室提供充足的照明。
TP:能和我们讲讲室内照明的设计概念吗?
FSA:一方面是尽可能的让自然光覆盖到所有房间,地面选用的白色大理石就能帮助光照射进来。室内泳池开设天窗也是基于同样的原因,墙面可以多重反射光线。
▲暖色调照明让大面积的白色有了温度
TP:主要使用了什么材料?
FSA:我们主要使用了大理石和木材。大理石主要用在浴室,因为它能反射外部光线,还能映衬出倒影。木材则是为了呼应外面的松树林。
▲浴室中的大镜子和落地窗相互呼应
TP:经过改造,这栋房子获得了什么新的个性吗?
FSA:每间的房间都能看到花园的不同部分,都有自己的景观和氛围。厨房在北面,和泳池离得很近,这一块活动区域能把全家紧密联系在一起。在客厅和餐厅能看到向东的花园——比游泳池更具私密性,可以进行更多活动。
▲天气不好时可以选择室内泳池和健身房
TP:不同层高的设计感觉很有趣,但是楼层不统一会有什么麻烦吗?
FSA:最初的困难在于分层设计的高度不同,会导致空间无法联通。后来经过研究我们发现这其实是创造新空间的好机会,空间的联系反而会加强。
▲空间的有效利用:小屋变成日光浴场
TP:客户如何看房子改造后的效果?
FSA:他们很欣慰。房间保留了原来的功能,但是又被赋予了新的个性。我们之所以这样做是为了保护房子原来的味道,同时改善居住环境。
▲在一楼露台享受瓦伦西亚风光
▲大面积落地窗保证了良好的采光
▲房屋外观的极简用色
▲房屋和周围松树林色彩对比鲜明
▲多功能主体建筑,可以用做车库
▲多个主体的建筑模式
创造出能够捕捉阳光的地中海风格庭院
▲木质纹理把松树林的美带回家中
▲外部阴影与内部漫反射自然光交错
▲厨房处于房屋的核心位置,依旧纯白
▲超大开放式厨房
为准备美食提供了充足的空间
▲书房里定制了大面积储物柜和书柜
▲走廊也选用纯白色,十分治愈
▲通往一楼露台的大型推拉门
躺在床上可以享受接近180度的窗外景观
▲隔断式建筑既能保护隐私
也与房屋开放式风格相符
▲通过台面巧妙划分居住空间
▲自然光与阴影相融
▲从庭院中看房屋阶梯
▲露天泳池和按摩泳池
炎热的夏天可享受戏水乐趣
俯瞰“松树林之家”
▲静静坐落在松树林中
万般宁静
▲工作室成功地将各个主体组合成几何极简风的整体
▲这座林间之家是宽敞简约的杰作
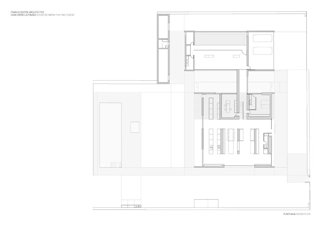
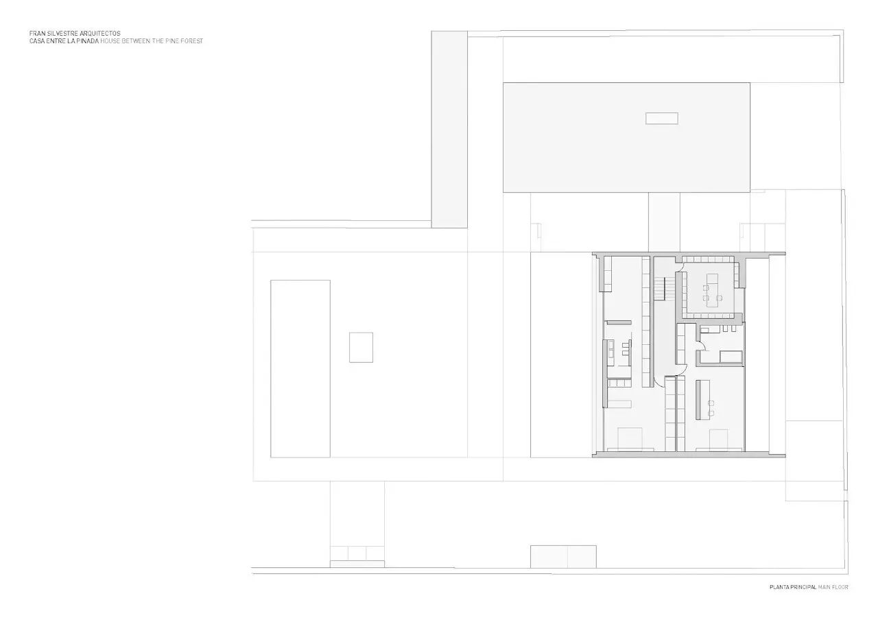
设计模型及平面图
设计模型
▼
设计图
▼
🏠
往期回顾
(点击图片,阅读原文)
THE PLUS PAPER
设计|艺术|音乐|文化|摄影|时尚
--------------------
The Plus Paper,来自英国
我们与行业先锋们对话
希望每天和你分享世界各地最新鲜的精彩创意
微博 @thepluspaper
微信 thepluspaper
Instagram thepluspaper
官网 cn.thepluspaper.com
合作 contact@thepluspaper.com