谈到混凝土建筑,你会想到什么。安藤忠雄?他对混凝土极尽细腻与精致地处理,让人们称他为“清水混凝土诗人”。柯布西耶?同样喜欢采用混凝土材质,他的粗野主义处理也自成一派。
而今天THE PLUS要为大家介绍的这个建筑,介于粗犷与极简之间,与自然实现了很好的统一。它是位于澳大利亚昆士兰州美人鱼海滩的一个新家庭住宅:The Mermaid Beach Residence(美人鱼海滩住宅)。
对我们来说,家庭住宅,是许多亲密个体共同生活的场所。它需要一定的公共性,亦需要足够的私密性。空间与人,若能形成对话,即便没有华丽的外观,也足够温暖。
美人鱼海滩住宅的业主非常迷恋混凝土,所以该建筑的材质主要由内部和外部裸露的混凝土组成。外部窗户上添加了木百叶窗,以抵御阳光和天气条件。住宅拥有一个朝北的中央庭院,即使在海风吹起的时候,也能让居住者享受户外的乐趣。
设计团队:BE Architecture
建筑地点:澳大利亚,美人鱼海滩
建筑面积:500.0 m²
项目时间:2019
首席建筑师:Andrew Piva、Broderick Ely、
Jon Boucher
摄影师:Andy McPherson
资源供应方:Caesarstone、Havwoods、Signorino、Ventech、Autodesk
建筑的正面几乎没有内容,只有一个由光滑和粗糙混凝土组成的对比立面作为道路的正面。
建筑正面
内部的中心庭院有经过精心考虑,目的是创造出一个框景——可以看到邻近房间的空间形式。泳池上方的悬浮混凝土梁成为该区域视线的焦点。
中心庭院
这个住宅可以称得上是座绿建筑。它包括了以下可持续操作手法:太阳能和太阳能热水系统,交叉通风,双层玻璃,为电池动力汽车预布线的车库,西面不开窗,可移动的木格栅等。
INTERVIEW
THE PLUS X BE Architecture
TP:对基地的第一印象如何?你们认为是什么因素最大化促进了建筑与环境的融合?
BE:基地在海边,昆士兰清脆干净的沙滩和湛蓝的海水一直延伸到地平线——周边环境就与它的地理位置一样美好。美人鱼海滩住宅的设计实现了建筑与人内在欲望和对永恒的情感需求的对话,换句话说:自然生长。
建筑坐落在海滩侵蚀的地方。住宅所在的区域意味着它必须与气旋风和雷暴以及穿透的阳光相抗争。建筑必须通过提供隐私和保护,免受天气条件的影响,同时又要营造出一个轻松,开放,阳光充足的家庭住宅环境——外观给居民提供了足够隐私,同时拥有对海滩开放的可能性。
立面提供了足够隐私,同时拥有对海滩开放的可能性
可操作的遥控玻璃使建筑免受阳光和风的照射。前立面有风暴百叶窗,可以在飓风季节关闭建筑物。建筑方案以及所用的材质是与客户对永恒的、功能性家庭住宅的需求相协调的结果。
开启玻璃幕就能够感受到大海的潮汐
在风暴季节也能保护建筑的百叶窗
TP:为什么决定用粗糙的混凝土作为建筑的主要材质?
BE:作为一间专业的建筑师事务所,我们有在不断研究和开发新的建筑材质的使用;材质的内在品质和能引起情感共鸣对我们来说是最重要的。这座建筑应该用什么材质搭建?材质应该如何表现?是设计初始阶段的问题之一。基于这些研究,我们能够更好地理解单一材料的内在美,以及如何用不同的方式来处理它们。
混凝土材质
这个建筑使用的材料是光滑和粗糙的现浇混凝土的组合,这种手工制作的技术称为“scabbling”(用专业的冲击钻将混凝土表面磨回去,露出骨料), 混凝土立面被木板打断,以保护窗户免受昆士兰烈日的暴晒,并保护建筑免受暴风雨的侵袭。与天然木材面板形成对比。
天然木材与混凝土的搭配
虽然粗糙混凝土也有缺陷,光滑的混凝土折射光的方式不同于重“工作”的现场混凝土表面。光滑的混凝土可以用手的触摸来感受,而粗糙的混凝土会形成纹理对比。这两种操作分别在内部和外部使用,揭示了同一材料的不同特性。
TP:人们喜闻乐见的北欧极简主义。你们对此怎么理解?
BE:北欧极简主义一直以来在澳大利亚建筑师和室内设计师中都很热门。这种迷恋可以追溯到战后David McGlashan、Les Parrott、 Frederick Romberg等人在20世纪50年代的旅行。可以说,20世纪60年代和70年代很多澳大利亚的好房子都受到了这些建筑师基于北欧极简主义产生的影响。这个理念要求设计以简单、真实的建筑材质和饰面为前提,满足美学和功能需求,同时展现建筑的独特性。
住宅中的极简主义
TP:在我们看来,这座建筑其实体现着一种粗犷之美。这是设计理念之一吗?
BE:通过基地调研,方案生成,再加上我们对相关材料的研究,产生了一个由两种材料组成的项目,每种材料都有各自的用途。混凝土是对海岸元素的保留——如果你愿意,可以称之为外表皮,同时也是天然的、丰富的内部材质。粗野主义在大家的语言体系中含义并不同:我们谈论本质和元素,精炼和克制。但最重要的是,以一个什么样的角度是最合适的?
粗犷的外立面
TP:旋转楼梯很漂亮,但很少见。这种设计有什么原因吗?
BE:楼梯是房子的一个重要元素,但有时会被忽视。它可以促成建筑的垂直流线。旋转楼梯事务所一直都在研究的元素,它让我们对光线有了深刻的理解——如何与楼梯的形状相呼应以及如何将光线引进住宅的中心。我们经常会将天窗和楼梯结合起来,寻求最大化的视线范围及空间功能。这个楼梯有柔软的木踏板和独特的半圆形外墙。在楼梯间天花板的中间插入一个圆形天窗,同时在外部加入一个半圆形天窗,这样就可以让太阳在一天的时间里跟踪室内墙壁,使更多的光线进入室内。
木制楼梯踏面
楼梯间光影
楼梯间空间感受
TP:你们喜欢做实验性的设计,还是习惯于先做完整的计划?
BE:结合我们多年来不断测试和开发所学习到的大量知识,每个项目都是一个实验和使用新技术新材料的机会。新事物来自于对旧事物的实验——所有实体建造之前,我们都会对基地做充足的调研,以及一系列的草模。设计本身是一个推演过程,没有哪个设计是凭空而来的。
更多建筑细节图片
▼
室内装潢-木材的运用
室内装潢-混凝土的运用
立面设计-木隔栅的运用
建筑图纸
▼
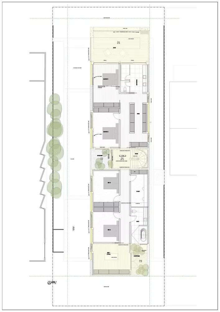
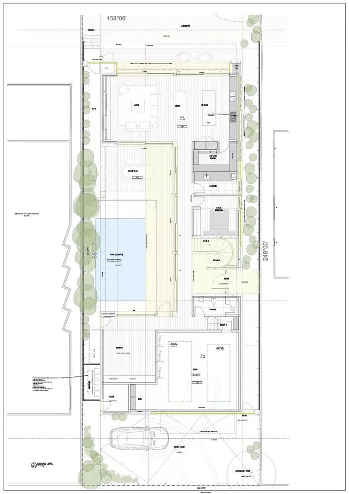
▲一层平面图
▲二层平面图
▲房屋立面图
▲房屋剖面图
▲房屋透视图
往期建筑设计专题回顾
点击图片,阅读全文
💡