![]()
都说书籍是精神食粮,从书中除了获取知识,还可以体验到不同的人生经历,到达那些从未踏足的国度,读一本书就像是一次身未动的远行,总会收获一些精彩的体验。那么图书馆就像是汇集了知识、经历与种种精彩体验的一座巨大殿堂;在网络时代,可以算得上是一处“小小的精神避难所”。今天我们就到世界各地去看看那些现代化的图书馆设计。![]()
别致的木屋图书馆
📍英国
建筑事务所:Crawshaw Architects
这间别致的图书馆坐落在英国温伯恩Dorset郡的一个磨坊农场里,让人意想不到的是图书馆的原建筑是一个用来放置农场器械和花园维护装备的牛棚。
将这个灯光不足、空间狭窄的棚屋进行彻底的改造是相当有难度的,设计师选择保留了高棚顶,并在中央设计了圆形拱廊这一古典建筑特征的元素,于是整个架构就这样定型了。
木质结构是整个设计的基础元素,顶梁、支柱、桌椅、书架和地板全部采用实心橡木木板打造,并采用传统嵌入式工艺组装,保留了木材的粗糙质感和自然瑕疵,结实又耐用,让人感觉仿佛置身于森林小木屋中,在这样的环境中阅读是一种别样的舒适体验。
![]()
小小阅读室
📍巴西
建筑事务所:
Pascali Semerdjian Arquitetos
这间小小的图书室位于巴西圣保罗,是在原有的空间基础上加建的,与生活居住空间相连,设计师想要打造一个额外的工作和阅读空间。
整个图书室呈纵向分布,选用白色作为整个空间的基础色调,呈现出简洁、通透的视觉效果,墙壁四周围以原木色的面板,有种连续性效果,创造了一个冥想和自省的空间。当身处在图书室中央,仿佛与外界隔绝一般,只听得到自己内心的声音。▲
远程控制灯光系统
房间采光也很好,柔和的自然光通过上方的窗口进入室内,通透又明亮,设计师还为图书室设计了远程控制的室内灯光系统,这样即使在深夜也能享受美好的阅读时光。除此之外,充满设计感的家具也完美的融入了空间中,为图书室增加艺术感。
![]()
精致法式图书馆
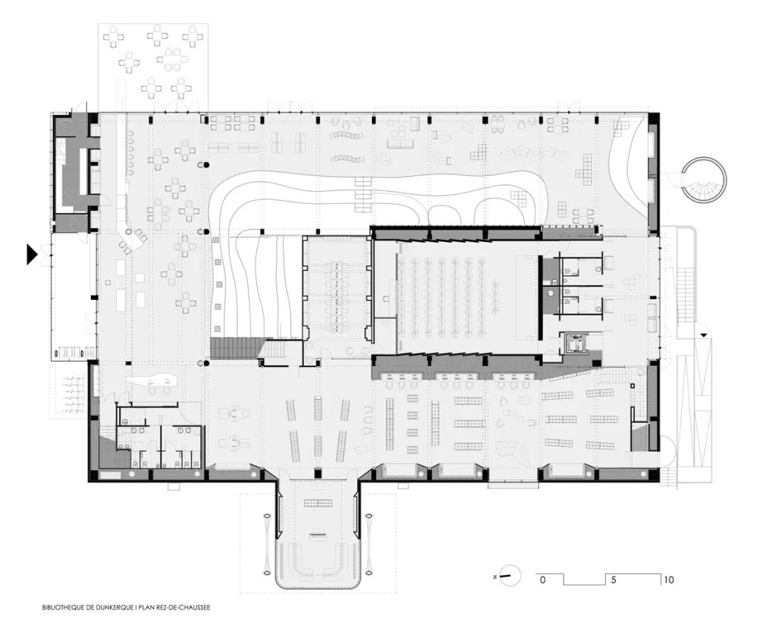
📍法国
D’HOUNDT+BAJART Architects & Associates位于法国敦刻尔克美术馆中的这间多媒体图书馆颇具特色,是一个集图书室、咖啡厅、礼堂和展览馆于一身的公共文化活动空间。设计师拆除了多余的附属建筑,沿用了白色的大理石作为主体墙面,素雅的纹理和亮洁的光芒增强照明的同时还营造出一种安静、优雅的氛围。
整个图书馆内最亮眼的要数中间的公共活动区域,设计师将它设计成了类似体育场观众看台的形式,形状不规则的台阶成梯次分布,上面铺着不同色度的绿色地毯,从上往下望去好像一块梯田。读者可以自由的在上面活动,阅读、交谈,除此之外,这块区域还能充当礼堂的坐席,可谓是功能多样。
![]()
古老的修道院图书馆
📍比利时
建筑事务所:
Bureau Bouwtechniek ,
Callebaut Architecten,
Korteknie Stuhlmacher Architecten
在比利时MECHELEN坐落着一座特别的图书馆,从外观看上去它是一座典型的巴洛克风格修道院,历史悠久,可以追溯到1650年,几个世纪的历史在它的身上都能找到足迹。建筑师选择在保护历史遗迹的前提下尊重之前的轮廓,加固老旧的结构,并充分利用回廊、庭院、阁楼和教堂等已有空间,让读者可以在其中自由穿梭,感受历史的气息。
历史和现代在这里得到很好地融合,设计师按照不同空间的特点安置功能区,底层改为餐厅和咖啡厅、庭院成为室外活动空间和舞台。古籍阅读室则被安排在一层回廊处,那里的圆形拱顶和柔和的灯光对于研究古籍来说再合适不过,而通风较好、采光充足的木质阁楼则被设计成儿童阅读区,那里的装饰物可以丰富孩子们的想象力。
![]()
多功能图书馆
📍加拿大
建筑事务所:
Chevalier Morales Architectes, DMA
Pierrefonds公共图书馆位于加拿大蒙彼利埃,是一座创新性图书馆,设计师巧妙的将两个“第三空间”——公园和商场的概念融入图书馆设计中,打造了与传统意义上不同的多功能型图书馆。白色作为建筑主色调,可以让每个元素的位置更清晰明了,同时让室内空间保持明亮。浅黄色的地板、看台和桌椅带来一丝温暖。
图书馆借鉴了公园分区的概念,按照功能将空间划分为不同区域,同时与周围的自然景观融合,部分绿化和自然光甚至成为图书馆本身的一部分,形成了自己的生态系统。同时图书馆还引入了商场引导顾客的策略,打造了中央区域、楼梯网络还有天窗等设施,将读者的注意力引向书籍和景观上,兼具了经济型和功能性。
![]()
不论何时何地,
阅读都是件有益的事,
你最近在读哪些书呢?
不妨留言和我们分享!