今天,神秘盘宁嘉馨苑正式公示,将于7.29-8.2期间进行认购。- 认购时间7.29-8.2,认购金120w,另需存款证明180w(首套)/600w(二套)
因为这又是一个需要“开盲盒”的新盘,看上去似乎很美,但信息却很少处处都像有坑。
因此今天我们就来全面分析一下,这个项目究竟值不值得盲买?对上海新盘感兴趣的朋友
欢迎扫码添加群主小姐姐申请入群
![]()
宁嘉馨苑整个项目也不过占地约0.51万㎡,总建筑面积仅约1.73万㎡。小区由1幢25F住宅楼,以及1幢8-9F保障+自持混合楼组成。整个项目既难以做出有品质感的规模化园林景观,也没什么富余的空间打造会所等配套功能。
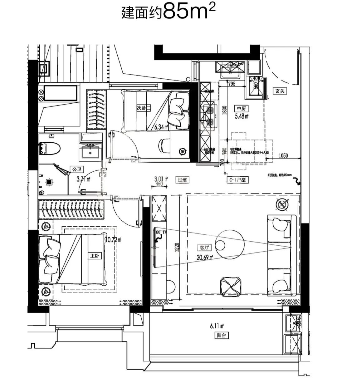
宁嘉馨苑主力户型为85㎡小户型,这意味着1000w入住静安苏河湾,这个价格确实太香了。特别是在新湖青蓝、金隅外滩东岸等含小户型新盘结束认购的当下,成为低总价上车内环内的最后选择。并且虽然项目的每个户型,都看上去很方正,格局优秀,甚至在120㎡面积段就玩起了“横厅设计”,第一眼看馋了很多人。或是受限于73%左右的得房率+过度追求面宽,你会发现每个功能空间都有点太小了。甚至120㎡的3房户型,都没有设计餐厅的专门空间,更不要说85㎡的小户型了。宁嘉馨苑的地段无疑是项目最大卖点之一,周边就有非常成熟的商业配套,地铁网络也非常方便。
但作为一个市中心小户型为主的新盘,却缺少了优质教育资源的加持。
附近小区对口的棋院小学+向东中学都很一般,教育方面基本没什么盼头。
并且宁嘉馨苑作为一个“突如其来”的新盘,各方面都太过于神秘了。项目的售楼处就在大宁音乐广场的I座,但目前还在装修,尚未对外开放。唯一的官方信息输出端口——公众号“宁嘉馨苑”,目前基本也只是空有一具外壳。除了刚刚推送的认购资料,目前什么官方项目信息也没有。一想到令人云里雾里的线上认购,都没有销售可以咨询,真是有种蛋蛋的忧伤……
对上海新盘感兴趣的朋友
欢迎扫码添加群主小姐姐申请入群
![]()
因为对一些特定购房者来说,错过它很可能就“后无来者”了。宁嘉馨苑与苏河世纪仅一路之隔,同样也是苏河湾的新盘。我们综合考虑了房龄、产品差异之后,测算出宁嘉馨苑的市场行情价在15W左右。
对应于12.88W的均价,相当于倒挂率约86折,性价比不错。对积分不高的购房者来说,当前很可能是内环内置业的好机会。
由于疫情等多重因素的影响,同板块新盘积分较去年有了较大幅度下滑,入围门槛更加亲民。今年2批次以来,特别是1100w以上的新盘,高分项目大大减少。
在这个购房者备受“烂尾”之苦的特殊时期,无疑成为了一颗定心丸。这也注定了项目的装标虽然很难说惊艳,但整体品质都还不错。- 全屋:博世智能门锁,旭格门窗系统,大金中央空调、新风,林内地暖,施耐德开关插座。
- 厨房:BWT前置净水,老板油烟机,瑞族燃气灶、洗碗机、蒸烤一体机,欧琳洗涤池、洗涤池龙头。
- 卫生间:科勒淋浴、龙头、花洒、马桶、洗脸盆、毛巾架,欧普换气扇。
苏河湾是我比较看好的市中心板块,因为不仅当下就很棒,未来潜力更可期。这里不仅环境优越,当下的苏州河一线水景,沿河如今已经是一座“线性公园”而且配套高能,距离上海地段价值的“原点”人民广场仅1.2km,走走也能到。
项目位于整个大苏河湾的中区地段,能够高效享受整个板块的发展红利。
如今的苏河湾规划也已经逐渐成型中,东侧的华侨城区域基本成型,东北侧的安康苑、华兴新城也在如火如荼的建设中,
大量超高层+别墅+特色商业+历史保护建筑+巨型绿地公园,将令这里成为一个上海新的城市封面。
并且苏河湾+北外滩等一片区域,是目前上海城市更新规模最大的成片区域,未来这里的价值必将焕然一新。宁嘉馨苑可以说是一个积分总价门槛双低+高倒挂+高潜力的项目,并且不用担心“坏账”,但户型、社区过小导致居住体验可能并不好,
整体来说,我认为最适合积分不高,但有投资倾向的购房者。
对于自住型购房者来说,可能需要考虑更高的均好性,同样的预算放低总价,选择相对适宜的面积或是更好的选择。对上海新盘感兴趣的朋友
欢迎扫码添加群主小姐姐申请入群
![]()
往期精彩内容,点击链接回顾
项目评测:俊灿星城 & 华发四季半岛 | 融信海纳印象 & 颛桥宝华紫薇花园 | 浦东紫薇花园 | 华侨城纯水岸 | 苏河望 | 融创杨浦滨江壹号 & 龙光天境 | 弘久新弘北外滩 | 四季都会绿龙北二批次 | 大华悦庭东区 | 大华公园荟 | 盛青云驰 | 同济晶萃 | 招商云玺 | 汇成南街里三期 | 亲水湾朗廷 | 璞玉ONE | 上海院子 | 中企海睿滨江 | 仁恒越秀梅陇项目 | 徐房漕河泾项目 | 城投康健项目 | 皇都花园四期 | 古北悦公馆 & 天安豪园二期 | 保利云上浔光 | 宝莲玖邑 & 经纬学府阳光
选房攻略:招商外滩玺 | 浦发东悦城 | 中企云萃江湾 | 苏河望 | 碧云尊邸 | 大华悦庭西区 | 融创未来金融城13D-02一批次 | 中粮瑞虹海景壹号 | 仁恒海上源 | 龙光天境 | 融创未来金融城13D-06二批次 | 融创未来金融城13D-02二批次 | 华侨城纯水岸 | 同济晶萃 | 浦东紫薇花园
本号2022年新房积分群已经正式创建
未来我们会在群里发布各种新房信息
帮助大家进一步了解你所关心的新房
群友们还可以在群内沟通、交流
感兴趣的朋友,请按照自身积分情况
对号描码进群
2022大虹桥新房讨论群
![]()
2022上海新房讨论群
![]()
2022上海40-50新房积分群
![]()
2022上海50-60新房积分群
![]()
2022上海60-80新房积分群
![]()
2022上海80以上新房积分群
![]()
如果上述2022新房积分群已满,
请扫描下方小姐姐二维码,让她拉你进群
![]()