前几天,我和朋友去攀成钢吃饭的时候,路过一处正在施工的工地。我当时第一反应就是:攀成钢都快十年没有新房供应了,这又是哪个项目要出来了?
午饭过后,我带着朋友去现场一探究竟。项目名叫【中交·鹭鸣九章】,是由中交地产打造的纯新项目。该项目的亮点,便是其打造的在攀成钢十年间未曾出现过的“臻”两叠产品。
要知道,攀成钢的新房已经是稀缺般的存在了,更别说是纯粹的两叠墅居。
为什么这么说,一句话解释:“断供十年攀成钢,主城核芯两叠墅”
项目详情
占地面积:约44亩
用地类型:纯住宅
容积率:约1.5
梯户比:叠拼、2T2大平层
层数:4/6F叠拼,17/20/24F大平层
推售情况:已取证(预售证号:510108202265517)
首开户型面积:建面约131-293㎡
预计交付标准:精装(具体以开发商合同为准)
开发商:中交地产成都城市公司
点击下方小程序,查看最新项目信息
当人们谈到主城中的高端壕改板块的时候,“攀成钢”一定是最先被提及的,同时也是无数高端改善购房者的向往之地。
△攀成钢高改住区航拍
从攀成钢的壕宅发展史来看,伊泰天骄、仁恒滨河湾、天誉等初代壕改项目奠定了板块“改善”属性的基础。自从其陆续出清之后,攀成钢的壕产品长时间地处于断货的状态,尤其是墅居产品。
理想很丰满、现实很骨感,高改产品的十年断供,让攀成钢成为了购房者们可望而不及的地方。
这时候,中交·鹭鸣九章如及时雨般地出现,很好地弥补了这一市场空白,让“无房可买”的购房者们拥有了一个非常不错的上车机会。
△项目外立面意境图
虽然说目前成都楼市中的墅居项目不少,但是像中交·鹭鸣九章这种身处主城核芯壕改、聚合一线资源的项目,错过一个就难遇第二个了。
为什么说墅居是稀缺的?
其实,更准确地说,应该是“主城核芯的墅居是稀缺的”。
众所周知,容积率的高低基本决定了一个项目最终的产品形态,一般能够被开发出低密墅居类项目的地块容积率基本上在1.5及其以下。
据成都购房通统计,2021-2022年集中供地中,主城区里,容积率约1.5及其以下的地块仅供应约16宗,占总供应数约5.3%,供应方面是非常稀缺。
△成都购房通制图
更为稀缺的是,就攀成钢板块来说,近十年以来,除了中交·鹭鸣九章以外,没有其他任何一个容积率在1.5及其以下的低密项目面世,我们将本案称为“攀成钢孕育十年的孤品”也不为过,其稀缺性可见一斑。
除了供应端,我们再来看看需求端。由于攀成钢断供十年,因此我们只能从二手房市场进行分析。
目前板块内二手房呈现一个特点:品质墅居欠缺、大平层扎堆、价格相对高企。
板块内基本上没有在售的二手墅居产品,基本上都是大平层,例如伊泰天骄、仁恒滨河湾、绿地锦天府、天誉等,而且价格都非常高,仁恒滨河湾单价已经达到约8.3万/㎡。
△图源:贝壳找房官网
虽然说攀成钢板块以壕宅闻名,但是却没有正儿八经的墅居类产品诞生。板块内多以大平层壕改产品为主,虽然说壕属性的调性是够了,但是始终感觉欠缺些什么。
本次中交·鹭鸣九章的王炸取证,让攀成钢真正迎来了“真两叠”的稀缺墅居产品,着实是给了壕改购房者上车不二机会。
中交·鹭鸣九章项目占地约44亩,综合容积率仅约1.5,具备打造纯改善低密社区的先天优势。
整个项目以“组团式”布局规划为打造逻辑,结合“7”字型的地块形状,中交地产将项目分为墅居组团和大平层组团,这样做的好处既保证了墅居业主的私密性和纯粹性,也保证了大平层业主的视野面。
△项目总平意境图
大平层组团打造4栋 2T2的大平层,剧场式布局让楼栋排布错落有致,每一户都能享受优质的中庭景观视野。产品建面约131/143㎡,均是套四双卫,兼具功能性和舒适性。
△大平层装修创想图
大平层外立面风格偏现代,将真石漆、石材、LOW-E玻璃等多种高端元素进行了有机结合,加上横向拉伸的金属线条,进一步体现项目高端质感。
△大平层外立面意境图
墅居组团打造4F的双叠和6F的三叠产品,纯粹性不用多说。容积率低至约1.0,如此低容地块,我确实是近十年都没有看到过了,稀缺性不是一般的强。
另外,叠拼产品总共14栋,正儿八经的双叠就有12栋,赋予想上车真叠墅的购房者更多选择的机会。其中还有5栋独立成栋的双叠,在采光性、私密性、体验感等方面更佳,同时还能产生更多的端户、花园面积更大。
△墅居组团楼栋分布示意图
值得一提的是,项目的双叠产品退距比约1:1,同时还留出了约5.5米宽的公区巷道,既保证了叠拼住户的景观视野面,更体现出了墅居产品的立体感和私密性,让偏安一隅的业主能够感受到曲径通幽之感。
△双叠产品退距离比示意图
叠拼产品的外立面为现代风格,同时也大面积地采用玻璃幕墙和金属栏板,整体用材会显得更加端庄、典雅,别有一种东方之美的韵味。
△双叠外立面意境图
除了独具匠心的项目规划以外,中交地产在叠拼墅居的打造方面也是狠下了一番功夫。
“有天有地”是墅居产品的标配,中交·鹭鸣九倾力打造地面花园、露台花园、地下室采光天井花园的“3园系统”独树一帜,地面花园最大使用面积超100㎡,整体平均在40-50㎡左右。
△叠拼庭院意境图
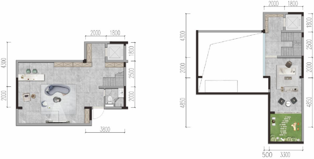
1、建面约293㎡下叠
该户型一共4层(含夹层),南北通透、户型方正无浪费、功能分区明显。
下叠的“双入户模式”增加了业主归家动线的多元性,既享有独立私家电梯,更有超大私享独立入户庭院,业主归家的尊崇仪式感得到体现。
产品打破传统院子平面布局,打造使用面积约10㎡双层庭院,空间上错落有致、内外相宜。
约10米面宽的壕厅、搭配约7米的奢华中西厨,完美展现超大尺度的生活社交场景。
△下叠一层装修创想图
二层为双套房阔景行政休憩区,分区合理、互不影响,主人房建面约56㎡(包含建面约9㎡独立衣帽间、建面约11㎡独立卫浴),与之相连的还有约7.1米宽的景观阳台,妥妥的五星级酒店般的奢华享受。
△下叠二层装修创想图
夹层和负一层便是业主社交需求的第二空间,超大附加空间赋予业主更多的想象力,这里可以是健身房、观影室、收藏室、会客室、工作室、游戏室、茶室、品酒室等,演绎万变生活。
△下叠负一层+夹层装修创想图
2、建面约272㎡上叠
该户型一共4层(含夹层),南北通透、采光性能好,独特的“双花园”(私享入户花园+露台花园)设计让上叠成为一种臻稀品,市面上很难找到类似的设计。
上叠户型可以独享露台花园等创造性拓展空间,业主可以根据自身需求将其改造为使用面积约28㎡的超大空中花园,与室内LDK空间再进行有机连接,空间尺度感得以升华。
△上叠一层装修创想图
四层的休憩区与下叠产品的设计基本一致,主卧建面约35㎡的超大五星级套房、享有建面约5㎡的衣帽间、建面约10㎡豪华卫浴,加冕庭院生活品质。
△上叠二层装修创想图
负一层和夹层完全就是多功能可变空间,业主可以根据自身需求打造多种生活、娱乐场景,在家里就能拥有度假般的享受。
△上叠负一层装修创想图
△上叠夹层装修创想图
能够打造出如此匠心独运的产品,究竟何许人也?
中交·鹭鸣九章是由中交地产在攀成钢倾力打造的纯粹改善社区,熟悉成都楼市的朋友对中交地产肯定不陌生。
中交地产隶属中国交通建设集团(简称“中国交建”),中国交建是国务院国资委监管的中央特大型企业,2022年《财富》杂志世界500强第60位,拥有60多家全资控股子公司、业务足迹遍及7大洲和世界 150余个国家和地区。因此,不管是从企业实力还是开发能力来看,中交地产都值得购房者信赖。
△数据来源:中交集团官网
从全国化布局来看,秉承“非核心贵地不进”的宗旨,中交地产在上海、杭州、成都、重庆等多个一线或新一线城市的核心均有落子,由此也可以看出他的实力与魄力。
△图源:中交集团官网
为什么中交地产一定会选择在攀成钢打造这样的高端壕品呢?
主城区里,能和攀成钢一决高下的板块的确是少之又少。
经过十余年的发展,攀成钢早已成为成都壕改的代名词,仁恒滨河湾、天誉、吉宝凌云峰阁等壕宅名字响彻成都楼市,日渐醇熟的配套也持续加码片区高改属性。
△攀成钢建筑群航拍
攀成钢板块如此火爆,十余年的热度从未减弱、反而日复一日地呈指数型增长。我认为,最主要的原因之一,还是地段的稀缺性。
从区位来看,攀成钢站位主城东二环、板块呈正南北走势,西连春熙路—天府广场,北至万象城,南望金融城,东临塔子山公园,这样的王炸地段不火才怪。诞生于此的中交·鹭鸣九章,注定成为网红盘。
△项目区位示意图
攀成钢能吸引如此多的壕改购房者慕名前往的另一原因,就是它能很好地契合壕改购房者的生活需求和生活习惯。
这里是主城区中商业密集度较高的地方,虽然如此但喧而不嚣,攀成钢和万象城两大城市TOP级高端板块的叠加,更赋予了中交·鹭鸣九章特殊的意义。
项目北侧就是万象城商圈,与万象城直线距离约800m,享受总建面超24万㎡的超大城市TOP级商业综合购物中心配套,集餐饮、购物、娱乐休闲于一体。既能满足你日常的一站式潮流时尚购物需求,又能满足你宴请朋友、商务洽谈的高端需求。
△成都万象城实拍
项目南侧一路之隔就是攀成钢商圈,除了中粮鸿云悦街,还有近期才开业的环贸iCD,包含约11万㎡体验式购物中心和约1.8万㎡商业街,时尚购物更加多元化、前沿化。
除了时尚潮流般的购物体验,住在攀成钢更能享受成都公园城市发展带来的福利。
一说到攀成钢的景观资源,就离不开塔子山公园和沙河公园。作为主城中与“浣花溪”齐名的稀缺性十足的自然资源,其文化底蕴和人文人脉又别有一番风味。
中交·鹭鸣九章与东侧的塔子山公园仅百米之隔,步行就可以到达。塔子山公园中的九天楼取名自诗仙李白的“今来一登望,如上九天游”,这也是能够感受千年文脉的最近的地方,来一场与诗仙的跨时空对吟也未尝不可。
项目周边还有多个主城优质生态配套,如多宝寺公园、东湖公园等。
△塔子山公园实拍
总而言之,攀成钢的稀缺,稀缺在地段、稀缺在人文、稀缺在资源,更稀缺在其能够提供给壕改购房者一份直击内心深处的生活净土。
中交·鹭鸣九章刚刚取证,售楼部和样板间也即将开放(预计在2023年元旦节期间开放),想一睹奢华壕宅风采的购房者们可以届时亲自前往售楼部实地参观。
由于项目非常火爆,去之前别忘了预约你的专属置业顾问,他们能给你更专业的一对一讲解,点击下方图片即可进行预约。
本文主笔︱神羊︱购房通 出品
本文为广告邀约,推广项目为:中交·鹭鸣九章,开发商:中交地产成都城市公司,预售证号:510108202265517。
免责申明:本文相关文字、图片均是对本项目所做的示意表现,仅供参考,部分文字与图片来源于网络,文字和图片之间无必然联系,仅供读者参考,本文如无意中侵犯了某方知识产权,告知即删。
项目具体装修交付标准以开发商实际公示为准。本文所呈现的直线距离数据均来源于腾讯地图。最终标准详见政府相关部门批准文件、图则,经政府批准的详细规则以销售现场公示为准。
- THE END -
新盘资讯即时推,楼市动态及时更
房产干货常答疑,踩盘视频看实景