今天,相关部门正式公布了良渚这所九年制学校的工程招标公告,项目总投资7.0132亿元,总建筑面积8万平方米!设置63个班!!
项目概况:
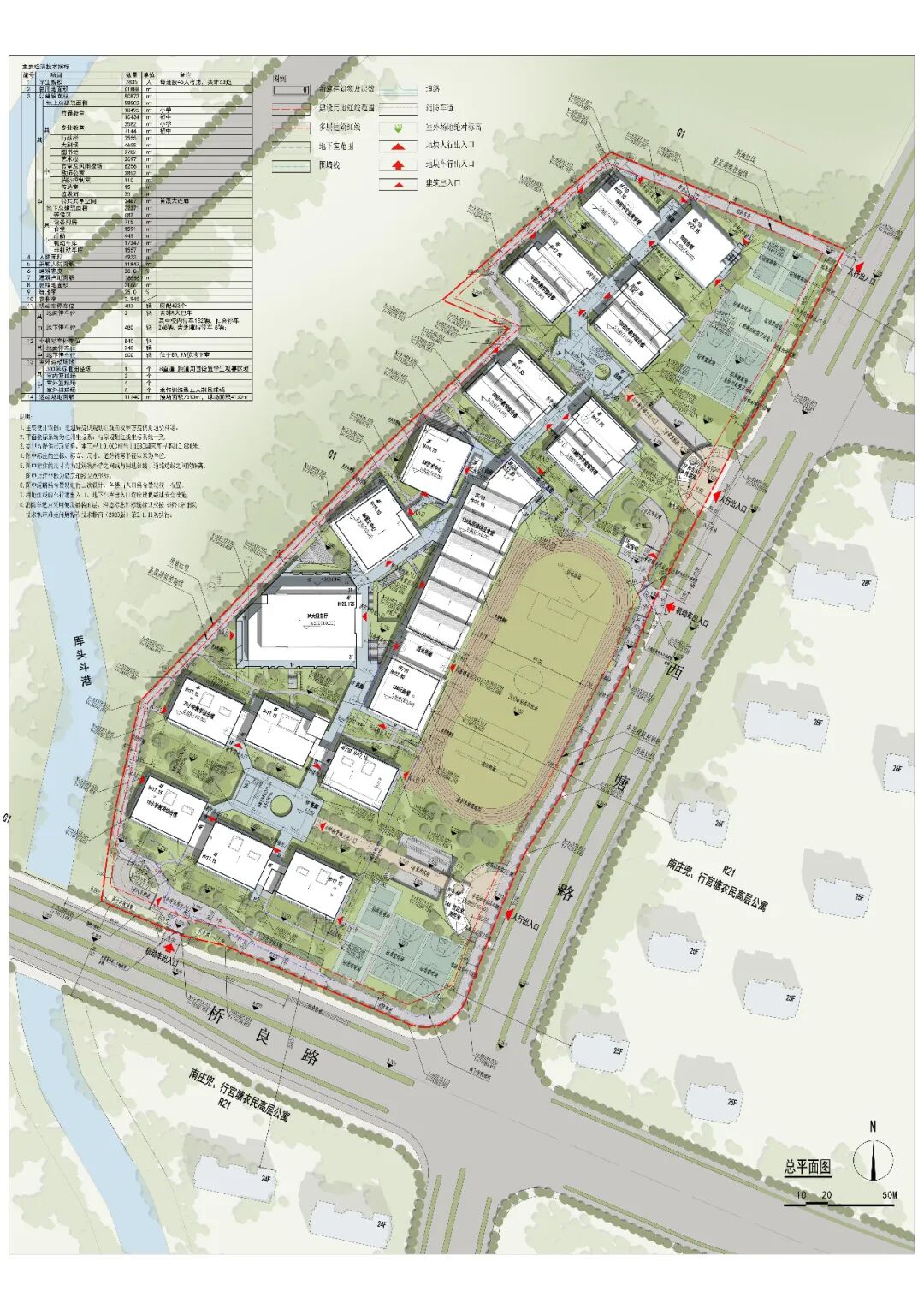
本项目投资估算70132万元,工程概算36257万元,其中建安工程造价 万元,建设规模:拟建设良渚新城运河九年一贯制学校项目,规划设计63个班教学规模,项目总建筑面积约80873平方米,其中地上建筑面积约58502平方米,地下建筑面积约 22371平方米。主要建设内容包括教学及教学辅助用房、办公用房、生活服务用房、体育 活动场地、地下车库、道路、景观绿化及其他市政配套附属工程等,建设地点:余杭区良 渚街道。
施工总工期:720个日历天。计划开工日期:2023年6月 计划竣工日期:2025年6月。
2021年8月,余杭规划部门发布公告,正式启动了良渚北部新城核心区的第二所九年一贯制学校的规划建设工程。
这所规划的九年一贯制学校位于杭州良渚新城中央商务区内,东至规划西塘路,南至规划桥良路,西、北至规划公园绿地(宣杭铁路绿化带),地块总用地面积为6.19公顷(6.19万平方米)。根据选址论证报告,规划地块用地性质为中小学兼社会停车场用地(A33/S42),容积率不大于1.0,建筑密度不大于30%,绿地率不小于35%,建筑高度不大于24米。具体选址位置和模拟方案见附图。
根据下图显示,学校占地面积6.1888万平方米,容积率不大于1,总建筑面积80873平方米,其中地面面积58502平方米,规划建设5栋初中教学楼、5栋小学教学楼、2栋体育馆、1栋食堂大楼、1栋宿舍楼(住宿生?)、1栋艺术中心、1栋图书馆大楼、1栋报告厅,配套建设1个300米田径操场,4个篮球场、6个排球场,小学人行和主机动车出入口设置在东侧西塘路南段。中学人行和机动车出入口设置在西塘路北段。
地下面积22371平方米,设置等候区、食堂、后勤、车库等。建设480个机动停车位,包含268个社会停车位。
中学设置在地块北侧、小学设置在地块南侧,共用一个标准操场!
从学校设计效果图来看,各楼栋之间错落有致的分布在地块西侧,相对独立,又有连廊相连。学校西侧和北侧未来将是绝大的绿化和公园。环境优美。
一座融合风雨操场、看台、食堂、行政办公
为一体的多功能综合体
根据论证报告显示,在该九年一贯制学校周边500米范围内,规划和在建的住宅小区非常多。已交付的有运河锦庭;建设中的有行宫塘农民高层公寓、南庄兜农民高层公寓、运河村安置房四期3个项目、沁澜及前宸两个商品房小区。
在该九年一贯制学校的南侧斜对面,还规划了一所18班幼儿园,满足周边众多居民的教育需求。
未来,周边更是规划了地铁10号线金德路站上盖商业综合体,中央商务区、公园、绿地非常多。
今天公示的九年一贯制学校的规划,是良渚街道北部新城区域规划9所中小学校中的一所,也是目前规划建设面积第二大的学校,按照规划建设的进度,未来2-3年,北部新城的教育资源将集中爆发,初中和小学将基本解决区域内的教育需求。(9所学校分别是:杭行路小学和沈括小学已开学,好运路九年一贯制学校、良渚新城第三小学、良渚新城第二中学及本次公示的运河九年制学校;暂无消息的是良渚生命科技园规划小学、康桥路以北规划小学和初中。
作为良渚文化城的核心,北部新城区域致力于发展“三新”城市,即“新城市”“新产业”“新生活”,哪一样都离不开教育事业的发展。因此新城在成立之初就树立了“教育为王”的理念,将教育摆在优先发展的战略位置,以教育事业的发展推动新城经济社会各项事业大提升。
●重大消息!良渚新城中央商务区将建设地下交通环线,全长5.87公里