点击蓝字
关注我们
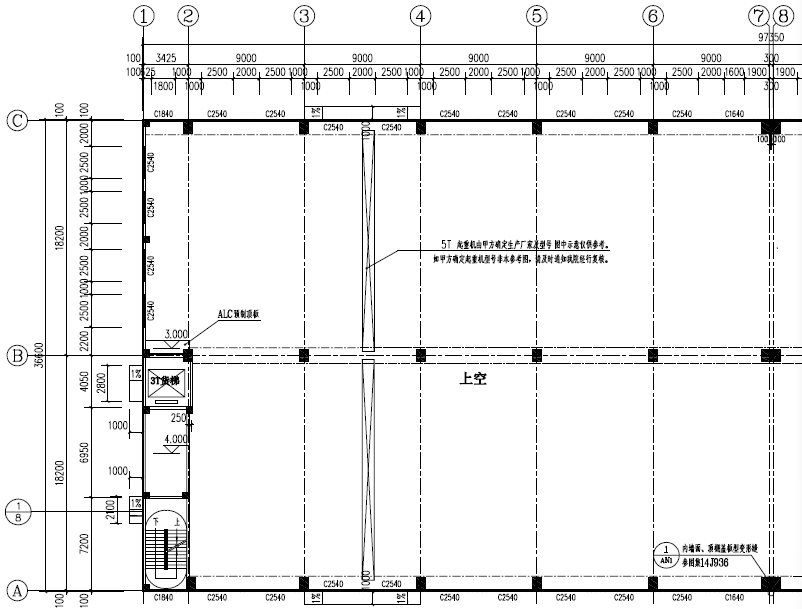
蚌埠铜陵现代产业园区光电科技产业园(以下简称“光电科技产业园”)位于安徽省蚌埠市固镇县蚌埠铜陵现代产业园磨王路南侧,天井湖大道东侧,4 号路北侧。蚌埠铜陵现代产业园区光电科技产业园总占地215亩,总建筑占地面积:50864 平方米,总建筑面积:92769.76 平方米,包括标准化多层厂房、综合服务中心、水处理车间和其他配套等。光电科技产业园建设目的主要是围绕显示屏、手机膜、玻璃等建设的硅基新材料行业上下游企业打造的专业平台。一期建设约30000平方米。
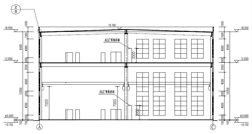
建筑剖面图
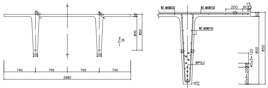
预制框架梁详图
消息来源:思睿建筑
★ 业务概览 ★
01 | 媒体服务 |
02 | 品牌服务 |
03 | 咨询服务 |
04 05 | 活动服务 投融资服务 |
★ 联系方式 ★
长按此二维码添加好友