微信号 gh_1fbe0009ba96
功能介绍 金华城市门户公众号,各类权威资讯首发平台,被网友称为“金华城市情报专家”,712万金华人了解金华的窗口!
点击上方蓝色字,关注浙中指挥长
好消息!
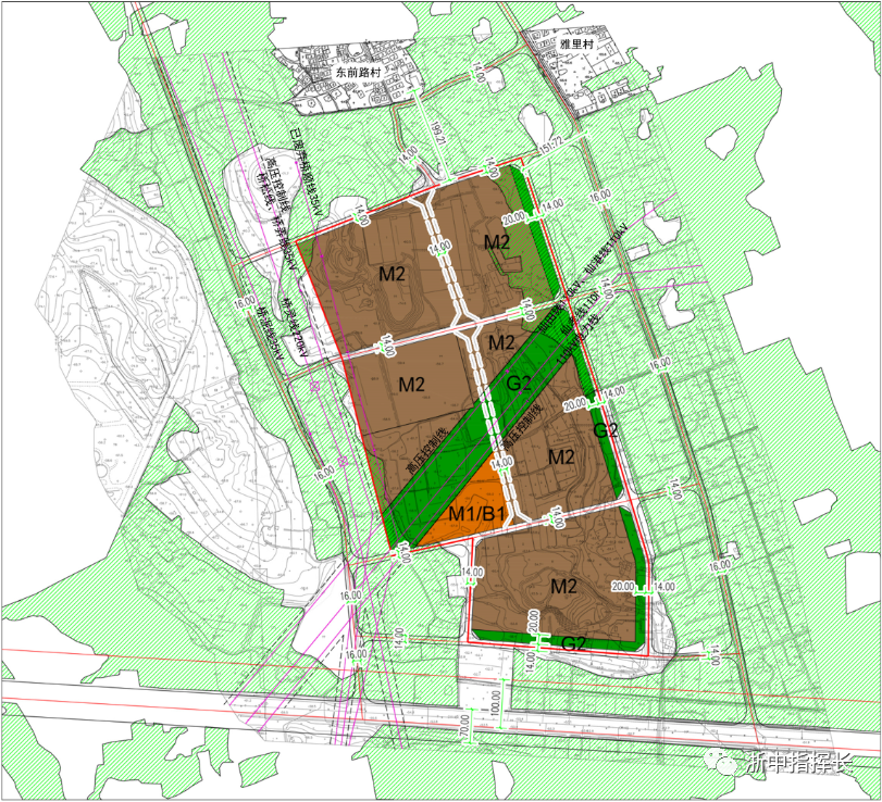
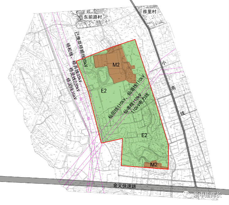
金华市金东区曹宅地块规划修改批后公布
规划面积为138.72公顷!
《金华市金东区曹宅单元(JD-08)
部分地块控制性详细规划修改》
程技术规范专用条款及物料清单编制、承担工程报建和招标所需的配合工作等。包括但不限于道路、桥梁、排水、管线、交通设施、景观绿化等施工涉及到的所有设计总包工作。
爆料内容:任何金华本地有关房产、城建、交通、人事以及各种纠纷等内容,提供的信息经核实采纳,我们就让你的爆料上头条!
通道一:关注“浙中指挥长”微信公众号,聊天栏发送“姓名+电话+爆料内容”即可。
通道二:扫描下方二维码,添加本微信号直接爆料。
往期文章:
金华市中医医院区块国有土地上房屋征收范围的公告发布
金华又一个区块城中村改造房屋拆除工程最新进展来了金华:12个土地征收启动、2个征地补偿安置公告发布
衢州龙游金华轨道交通线路规划出炉,还有台金衢城际
金华通用机场布局:中心城区等布局4个地方型通用机场
共约141亩!金华这个区块红线图公布,打造大型公园!
金华:绕城高速拟年底前开工,市区中小学三年行动计划
位于金华的上海财经大学浙江学院拟转设为普通本科高校!
金义新区(东城)启动区范围图公布,共分四大区块!
重磅!金华四个区块规划获批,涉及金兰轨道建设等
总投资30亿元!金义新区4个重大项目集中开工!
金华城北区块规划出炉:新建城北医院、体育中心
重磅!湖海塘以西区块,详细规划内容全部公开!
总投资3亿元!湖海塘区块又一商业体规划出炉!
规划70万方居住用地,金华这个区块规划获批
300余套房源,开发区105户村民喜分安置房
共9栋小高层,金华环翠云苑新楼盘规划出炉
重磅!金华第三批土地集中挂牌,共7宗地块
金华十五中学,全力争创市区一流初中!
重磅!新建金义国际机场列入预备类项目!
头条 | 金华共79个重点项目,详细名单!
赞!婺城新区又一座整体迁建医院公示!
赞!金华市婺城新区要造人行天桥了
金华市中心医院扩建,规划出炉!
金华江北,共92栋建筑即将改造!
感谢你的每一次
转发 | 点赞 | 支持
你的支持是我不懈的动力
微信扫一扫关注该公众号