首开户型位置曝光!11号线约200米【中建嘉定未来城】一季度入市,附工地实拍
住在上海信息
住在上海
住在上海
微信号
zhuzaishanghai2018
功能介绍
上海买房必看的专业地产公众号 关注后回复#房产群# 群主 id:zhuzaish9 找回家❤️
发表于
收录于合集
还记得去年4月的时候,我们《住在上海》收到网友爆料:
在
11号线嘉定新城站东侧200米
的距离的黄金位置,
紧邻万达广场
东侧即将
推出2180套新房供应!
北侧就是区域内的三甲瑞金北院
实打实的成熟高配地铁盘👆
该地在之后的土拍中被中建二局拿下,指导价5.04万/m²!不过由于方案是出自wk之手,项目也会通过增资方式引入wk共同开发,目前首开地块信息已经释放,预计最快今年二批次入市!
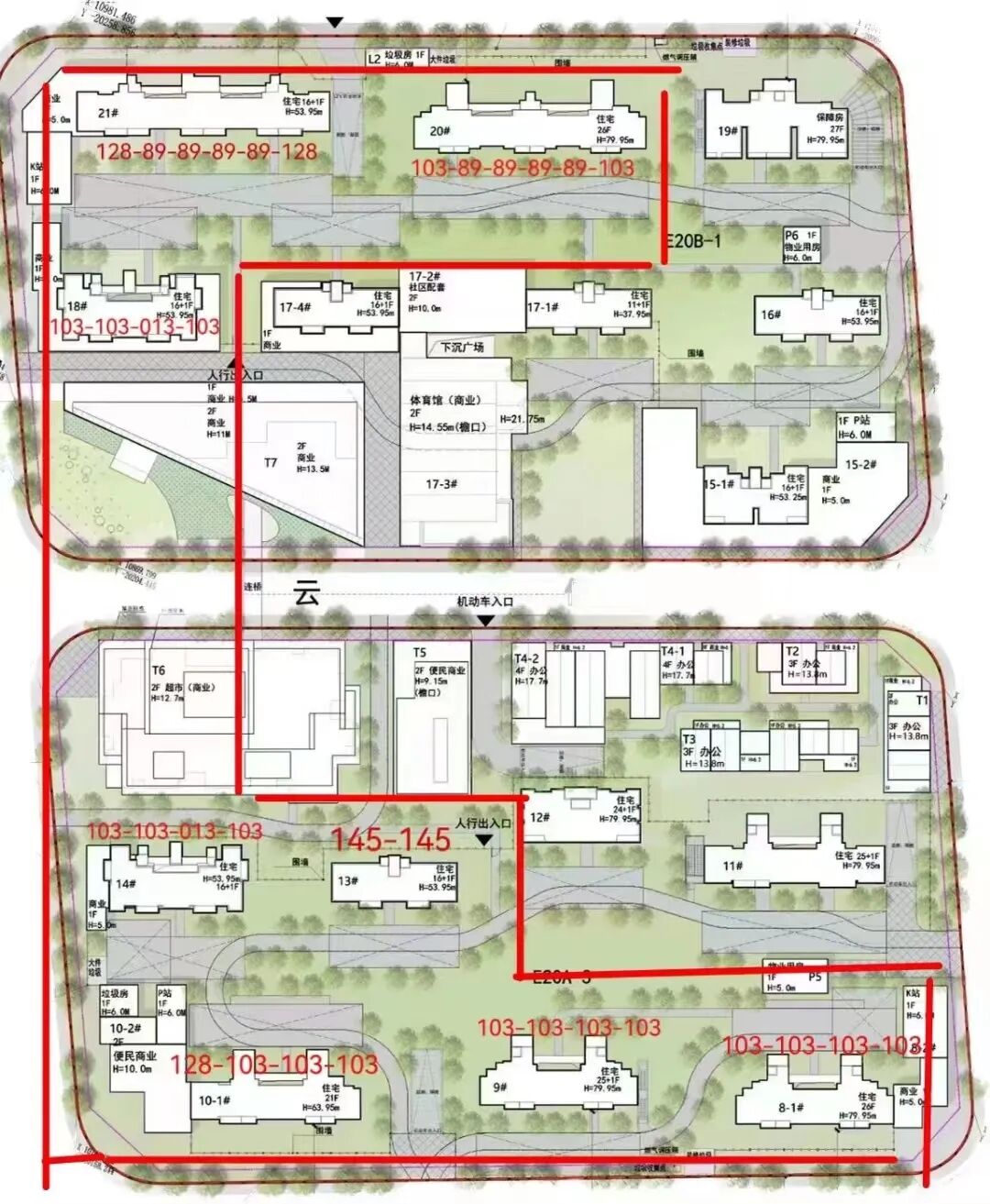
规划方案👇
根据官方的说法,
项目会首开中部E20B、E20A地块
,将推约300套89-145m²3-5房。
总平面示意图👆
目前工地实拍👇
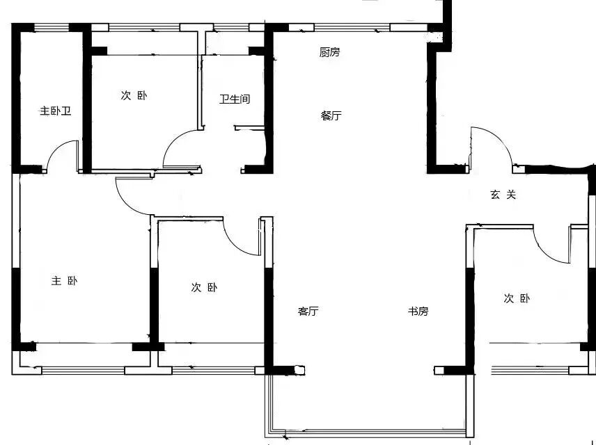
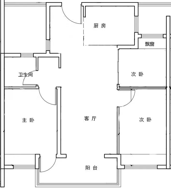
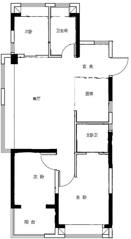
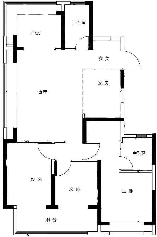
最新曝光的全套官方户型设计稿如下👇
建面约89m²3房中间套户型
建面约89m²3房边套户型
建面约103m²3房边套户型
建面约103m²3房竖横厅户型
建面约103m²3房中间套户型
建面约128m²4房户型
建面约145m²4房户型
建面约175m²5房户型
据我们了解,该项目最初有两家著名的开发商出具了各自的方案,其中一家极有可能是离开上海市民视野很久的W科,最终W科的方案取胜!该地块随后在三批次土拍中被中建二局拿下。
下面我们来看一下wk最初的设计方案👇(部分已推翻,一切以之后官宣为准)
嘉定未来城市理想单元概念方案
该方案利用了地块之间中央景观的空间,设置了商业街区与集中式商业,未来目测体量不小,错落穿插办公楼,形成类似于商业一条街的概念。
效果图如下👇
除了商业,方案的住宅设计也是另外一大亮点,新的大平层户型跃然纸间。
指导均价5w买嘉定版的万科天空之城,岂不美哉!预定高积分网红项目!
想了解更多户型相关信息或者项目一手动态
大家可扫维码进入专属项目群
验资/过会/认购/开盘 第一时间了解
同时还会有官方销售群内答疑/预约看房
还有更多新盘项目信息
样板间实拍、户型图、一房一价等
可点击小程序【住上好房】查阅
如需积分计算、房贷计算、模拟选房...
均可点击小程序👇
预览时标签不可点
微信扫一扫
关注该公众号
知道了
微信扫一扫
使用小程序
取消
允许
取消
允许
:
,
。
视频
小程序
赞
,轻点两下取消赞
在看
,轻点两下取消在看