大家好,好久不见!这一期,我想为大家介绍几个地点,价位,环境都不错的刚刚交房或马上要交房的小区项目给大家参考,都是直接代理的发展商尾盘单位,一般好项目这种情况不多,很稀有,有兴趣的朋友可以参考哦
在我介绍之前,我想澄清一件事情,那就是并不是所有的新交房小区都值得推荐,比如说小区规模不大的小过200间的小区,这类小区的小区环境因为地不够大设施有限,户数不多成交量不多而影响升值空间,又比如说交通不方便,或相对没有未来发展潜力等,至于到底怎么选的六要素,我会在另一篇文章文章中具体阐述。
1. Queens peak
交房日期 2020年3月底
Queens peak
Queens peak位于新加坡第三邮区,女皇镇地铁旁边,1分钟走到地铁,开车5分钟到乌节路,地点非常方便。Queens peak是个比较大的小区,一共 736 间单位,2座44层高,设施齐全,有空中花园并配有商店和幼儿园,今年3月底刚刚开始拿钥匙,1-5房户型中,直接可以向发展商购买的户型还有少量三房,五房和大平层,朝南的高楼可以看到海哦
三房有79或93平米(850或1001平方尺)两个户型,全部高楼层,价格在$160-180多万新币,79平小三房$1950每方尺,93平三房大约$1850每方尺,如果大家没有概念,我打个比方,和较新的邻居Commonwealth Tower相比,CommonwealthTower 成交价约$1900每方尺,价钱相似新房性价比比二手房更高,Queens peak胜;和新项目Stirling Residences的高楼层$1950每方尺或以上,Queens peak作为新现房项目也性价比更高。和裕廊中心的J Gateway比也就是一个在(相当于国内大城市)4环偏5环,一个在2环偏3环,J Gateway 偏一些但以区域中心的3房高楼单位成交价仍然在$1900每方尺,而Queens peak在地点上完胜,性价比更胜一筹。
Queens peak项目视频介绍
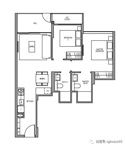
Queens peak 3房79平米户型
Queens peak 5房186平米户型
参考价格
2房72平米 $153万新币
最后1间21楼单位
3房79或93平米 $164-187万新币
最后9间高楼单位
5房 186平米 $327.1-334.7万新币
最后2间高楼单位
注意*5房尺价只有$1650+每方尺
大平层430-443平米$786.9-810.7万新币
最后3间
推荐理由:当然是地点,地点,地点啦,1分钟到女皇镇地铁,性价比也可以,无论是自住或者投资都可以考虑,综合来说是不错的选择
美中不足:普通房间偏小,喜欢房间大一点的就不是很适合了,那就考虑别的项目吧
需要了解更多详情可以和我联络(微信号:susie77808)
2. Forest woods 森涛苑
交房日期 预估2020年5月底
Forest Woods 森涛苑
Forest woods 森涛苑位于第19邮区,5分钟内走到Serangoon(实龙岗)地铁和Nex商场,7座12楼,一共519间单位,发展商是有口碑的新加坡本地发展商城市发展(CDL), 预计5月底就开始拿房,仅剩的3间单位都是3房式,其中2间还带装修,可以拎包入住哦。至于新房的交房标准,可以参考我之前写过的一篇文章 -新加坡的新公寓是什么样的
Serangoon中心是个不错的城市中心边缘地点(3环外),去市中心不论是地铁还是驾车都很方便。很多新加坡本地人对实去到石龙岗很有感情,是个生活便利,很有人气的地方。仅剩3间三房单位,交房标准的1间1645每方尺价,带精装修2间1710每方尺价,现在只有未来地铁卖点的两个靠近实龙岗北的新楼盘价钱都超过这个价钱了,并且地点是不能和实龙岗中心相提并论的,Forest woods森涛苑虽然选择有限但是非常值得考虑
Forest Woods 3房95平米户型
参考价格:
3房 95平米 (1023平方尺)
最后1间交房标准$168.3万新币
最后2间精装修拎包入住 $175.6 或 $178.2万新币
发展商给出精装修单位的装修风格效果图
推荐理由:地点好,发展商靠谱,竟然有拎包入住带装修的选择,如果有预算的话可以考虑
美中不足:仅剩的三间都是低楼层的,喜欢高楼层的可以考虑其他项目哦
需要了解更多详情可以和我联络(微信号:susie77808)
3. Seaside Residences 海景轩
交房日期 预估2020年6月
Seaside Residences 海景轩
Seaside Residences海景轩位于第15邮区东海岸区,东海岸是新加坡很受欢迎的东部沿海富人区(3环外),4座27楼共843间(包括2间商铺),是一流的前线海景楼盘
感受一下东海岸的海景
目前Seaside Residences海景轩还有少量的1-3房选择,特色是少有的小户型也可以看海的楼盘,户型不错。距离2023年才建好的siglap地铁走路3分钟,过一个几分钟的地下隧道就可以去东海岸海滩边散步。10分钟车程去到滨海湾金融中心一带。东海岸的房源一直是稀缺的,一线新海景中大型楼盘500间以上的几乎除了Seaside Residences和Amber park外就找不到了,但是Amber park 是二线海景永久地契项目,比seaside价位要高20%以上。所以喜欢海景的朋友可以关注考虑这个项目
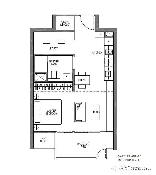
Seaside Residences海景轩 1+书房55平米户型
Seaside Residences海景轩2房1卫63平米户型
Seaside Residences海景轩3+书房101平米户型
Seaside Residences海景轩 大3房 117平米户型
参考价格
1房55平米 $105.2-108.8万新币
最后7间
1+书房55平米 $106.4-136.5万新币
最后17间
2房69平米 $138.2-142.3万新币
最后8间高楼单位
3+书房 101平米 $211-230.5万新币
最后12间
大3房117平米 $218.1-261.6万新币
最后13间
推荐理由:稀有,东海岸的地建差不多了,这块一线海景中大型新房项目在东海岸非常稀有,且买且珍惜,而且还有未来地铁和名校在附近,性价比也可以。喜欢海景的或者想在新加坡东海岸拥有新现房公寓的朋友可以考虑哦
美中不足:正海景临近高速公路比较吵,如果怕吵可以考虑侧海景。另外正海景大户型4房卖完了,但是其他户型还有高楼选择
需要了解更多详情可以和我联络(微信号:susie77808)
4. Martin Modern 玛庭豪苑
交房日期 预估2020年10月
有些朋友会问我说,介绍的都是中心区旁边地段的即将收房的新公寓房子,有没有更中心地段的房子呢?有,玛庭豪苑就是位于第9邮区,新加坡中心地段乌节路河谷公寓区的优质高端楼盘
新加坡主流房产媒体花大篇幅报道玛庭豪苑的优质奢华
用社区一景来窥见玛庭豪苑的古典植物覆盖的庭院之美
玛庭豪苑位于新加坡最核心的第9邮区,位于河谷小学(rivervalley primary school, 乌节路最好的小学)对面,是个超级学区房,并且离未来大世界地铁和商场走路只有5分钟。它的小区占地在乌节路属于中大型,有2座30楼共450间单位,由于乌节路寸土寸金,是乌节路稀有的2座楼且有地面小区的项目。值得一提的是玛庭豪苑的发展商是新加坡的精品发展商国浩,国浩一出手必出精品,许多有名的高品质项目如丽墩苑,新加坡第一高楼华利世家,都是国浩出品,每个细节都到极致,这个发展商我自己本人也非常的欣赏,也很期待玛庭豪苑建成的样子。按照设计图来看,这是一个像爱丽丝仙境一样布满古典植物的英伦风小区。
玛庭豪苑是目前乌节路新楼盘里面性价比最高的楼盘,没有之一。现在乌节路永久地契新楼盘大概价格在$3200-$4000新币每方尺,99年产权新楼盘价钱也在$3100或以上,玛庭豪苑是政府卖地,99年产权,价格大约$2700-$2900新币每方尺,比不如它地段的新楼盘还便宜10%左右,环境与品质又有保证,在看乌节路楼盘的朋友非常值得考虑
还有一点很大的优点是玛庭豪苑的户型与层高,玛庭豪苑的户型非常讲究,几乎没有什么浪费的空间,房间特别是主人房的大小是不错的,一般的公寓层高大概2.8米左右,玛庭豪苑的层高高达3.2米高,已经达到新加坡这边不算空气面积的极限,视觉上非常的宽敞大气
玛庭豪苑没有1房小户型,户型有2房,2+书房,3房,大3房,大4房等这几种户型,各种户型都还有最后的几间
Martin Modern 玛庭豪苑 2房 71平米户型
Martin Modern 玛庭豪苑 2+书房 79平米户型
Martin Modern 玛庭豪苑 3房 94平米户型
Martin Modern 玛庭豪苑 3房132平米户型
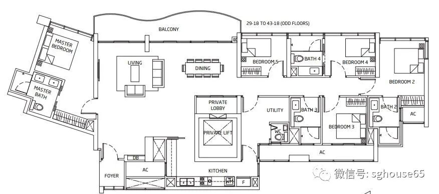
Martin Modern 玛庭豪苑 4房 161平米户型
参考价格
2房71平米 $189.34-224万新币
2+书房79平米 $247.3-247.9万新币
最后2间
2+书房的书房可以当成房间,可以作为小三房,自住出租都很合适
3房94,101,132平米 $310.89-415.94万新币
最后18间
4房161平米 $448.52-511.49万新币
最后10间
推荐理由:乌节路性价比最高的楼盘,没有之一。小区品质,学区,未来地铁,这个价位能买到非常完美了,考虑乌节路楼盘的朋友可以重点考虑
美中不足:地契是99年,因为乌节路的永久地契项目较多,只考虑永久项目的朋友可以考虑乌节路的另一个新现房项目名筑,只是价位要高一些。我曾经写过一篇文章比较99和永久地契的项目-99年VS永久产权的公寓到底要选哪一种 可以参考一下。总之,讲究生活品质与性价比的朋友,玛庭豪苑是个不错的选择
需要了解更多详情可以和我联络(微信号:susie77808)
这一期的介绍就到这里,当然有一些中心地段的已经交房的新房现房项目如位于新金融中心4个地铁上面的综合型海景项目滨海盛景豪苑 等也值得大家考虑,欢迎新老朋友和我沟通交流
觉得本文好的话欢迎点赞和转发,你的每一个点赞和转发都是对我莫大的鼓励和支持
作者个人微信号:susie77808
电话: +65 90283676
(长按扫描以下二维码,立即添加为微信好友)
相关阅读:
干货|预先从城市规划中看房产增值契机- 新加坡MasterPlan
初步了解新加坡房产(2) 新加坡房子一般有多大,面积是怎么算的?
初步了解新加坡房产(3) 新加坡最受外国人喜爱的居住地区之一 ——乌节路一带
初步了解新加坡房产(4) 中国人在新加坡能买的房产类型有哪些?哪些推荐,哪些不推荐?
初步了解新加坡房产(5) 低成本留学,移民新加坡,怎么可能?
初步了解新加坡房产(6) 新加坡的公寓分布及各区到底多少钱?
本文由【新加坡狮城房地产】原创。转载请注明(来源:新加坡狮城房地产 微信号:sghouse65)