微信号 niceliving
功能介绍 「好好住」旗下内容媒体,分享中国千万真实家庭的装修设计灵感、整屋案例、避坑干货、家居好物,带你发现家的千万种可能。
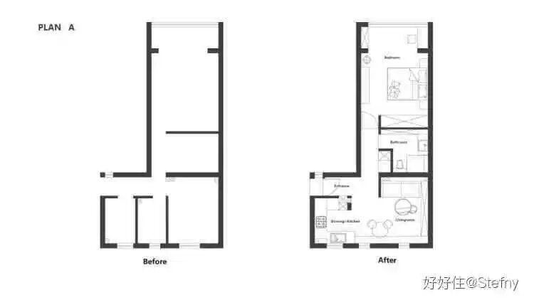
今天的好家是好好住认证设计师@Stefny的作品,屋主是一个95年上海女孩,多元化的教育背景和独自生活的经历使得她对于想要的基调有明确坚持——有些怀旧,温情且充满生活气息。经过设计,这套小房子变成了一个没有明确风格,看似矛盾却可以完美自洽的野生生长之家。下面一起来看看吧!
版权声明
好好住编辑部出品,未经许可不得转载
商业合作联系:ads@haohaozhu.com
如需转载联系:edit@haohaozhu.com
这个房子竟然只有43㎡?
一点也不像!!
👇👇👇
微信扫一扫关注该公众号