电视剧《安家》马上就要大结局了!整部剧到最后,你印象最深的是哪里呢?我则依旧还是电视剧的原点,最开始「房似锦大战奇葩跑道房」的那个桥段。
固然,有的人是因为无敌的景观而选择了奇葩户型,而更多的人,则是因为预算或现实原因,而「委曲求全」。但就算遇到了奇葩户型,我们也依旧相信,设计是可以弥补户型的缺陷的,甚至,设计可以让这些「奇葩户型」变成了家里最闪亮的存在。△ 好好住 APP 上部分奇葩户型一览,真是奇葩得各有千秋🙂以下,我们从好好住 APP 里精选出 9 个奇葩户型大变身的真实实例,看完或许你也会认同「没有糟户型,只有差设计」的这个观点。甚至,夸张点说,设计得当的话,异形户型可是比方方正正户型能出效果多了!![]()
![]()
扇形户型又如何?
6.3 米落地窗是王道!
住友@星辰和良子 家是十分独特的扇形空间,好处是拥有 6.3 米的超大落地窗,但全屋几乎没有方正的角落,扇形夹角的角落十分逼仄,又是再让人抓狂不过的硬伤了。至于为什么会买,@星辰和良子 是这么说的,「房价比周边便宜20%,还有超级无敌落地窗,虽然户型差到让人抓狂,但终究还是买回来了。」改造时,把房屋部分墙体打掉,用落地推拉玻璃门来连接空间。由此,原本这个房子只有一处光源,但但通过格局设计和大面积玻璃隔断的使用,户外的自然光可以穿透整个房子,让整个房子更为开阔明亮。小小 5㎡ 的儿童房,有床、衣柜、写字台还有窗户。在宝宝尚未出生前,利用衣柜和单人床的夹角空间,塞下一整套游戏设备,床上增加了可以 48° 调节的床上沙发,一侧放了个床头柜,可以瘫着玩游戏玩一整天不动窝,成了自己的「肥宅角落」。
而这个几乎等于三角形的角落里,则定制了书桌与搁板,宝宝房虽然只有 5㎡ 但也能有专门的写字台。![]()
客厅有个大钝角?
而在这个案例中,原户型是比较传统的广州老房样子,狭长的走廊连接主卧、次卧、厨房与卫生间。而同时,客厅里有一个十分碍眼的大钝角,视觉上很是让人不舒服。由于如今只有两个年轻人在这里居住,相比于隐私,更需要自己的生活,相比于一扇扇紧闭的房门,更需要开阔的生活。于是,改造时,先是打掉了书房三面墙,给予公共空间更大面积。再来,书房整体抬高做了榻榻米,两面是玻璃推拉门,如同一个置于大客厅里的玻璃盒子,既开放又不失私密性。而之前有伤观感的钝角则砌成了过渡圆柱,不再尖锐。同样,原本的走廊黑暗而深邃。如今,去掉了次卧,走廊被「打开」,做了「三角形」的屋顶,书房榻榻米靠近走廊一侧,还设计了储物空间。![]()
消防管道
不可拆不可包
怎么办?
住友@是小刘鸭 新买了一个超高层住宅,但在交房时,他立刻傻眼了!因为,这个房子,布局有点奇怪,而且,红色消防管道顺着屋顶爬进了家里的角角落落。这些消防管道不能拆也不能封,那可怎么办???还好,他找到了比较靠谱的设计团队,居然化腐朽为神奇,将家里这些奇葩管道改造成了有趣而独特的存在——将现有消防管道和室内明装线管结合起来,让裸露的消防管道成为家里的装饰。![]()
软装上,也选择了更工业风的餐桌餐椅,与红色相配的绿色沙发与黑色线条灯等等,由此,空间里无法规避的消防管道反倒成了大大方方展示出来的装饰了。![]()
![]()
异形户型天资不高
但也一定能
用生活来改造
by 好好住 APP 用户
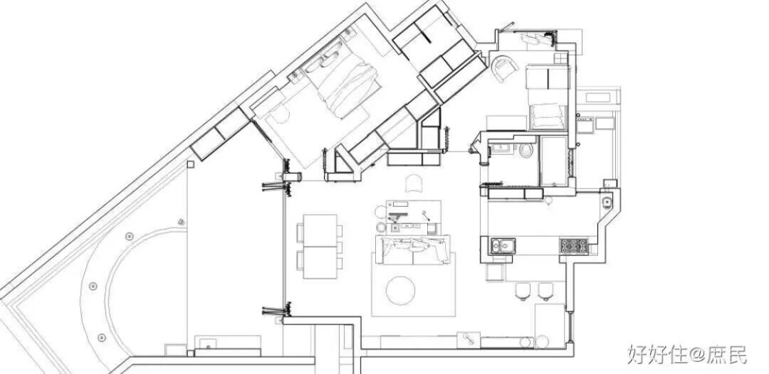
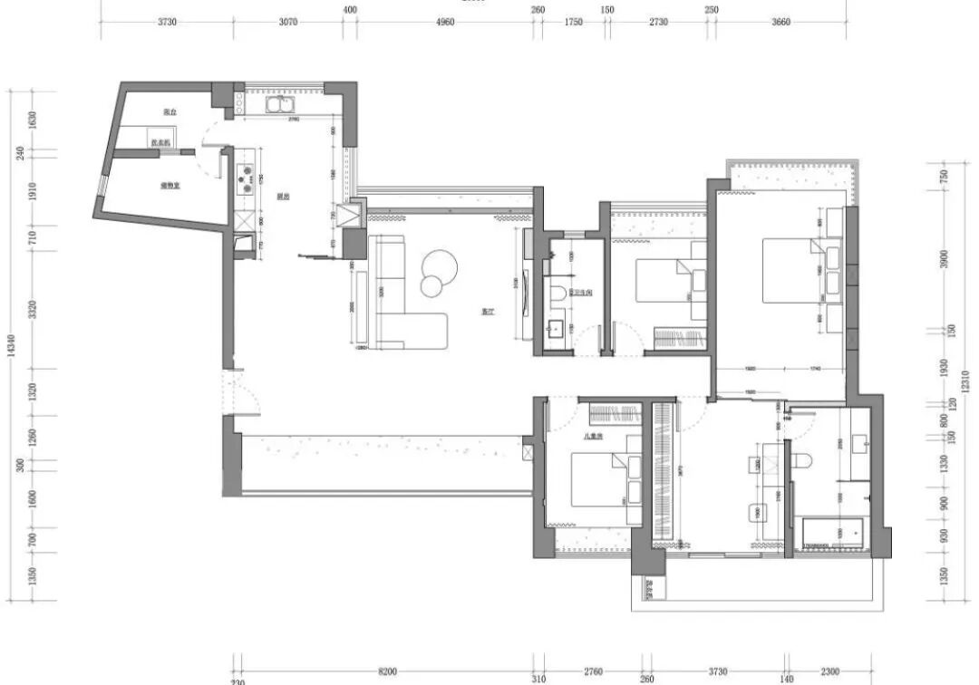
住友@庶民 这个房子是 10 年房龄的一个毛坯房,有几个户型上的 BUG:② 儿童房入门处为三角形,仅仅可以放下 1.5 米宽的床;③ 书房与儿童房差不多大,房间里有一个 45cm 的转角。改造时,拆掉了书房的墙壁,做成了整体开放的起居室,45 度转角的地方灵活运用成了主卧与儿童房的衣柜。
虽然儿童房只能放下 1.5 米的床,但飘窗也被利用了起来。![]()
进门右边做了一个早餐吧台,与厨房连通,传菜方便的同时,让家更为通透,而吧台也适合早餐或晚上小酌使用。
充分利用好这个大露台花园,慢慢栽培出了一道花墙与一片园林,好天气的时候,还可以把餐桌挪到花园中,就在户外用餐。
![]()
走廊堪称百米赛道
长长长长长
by 好好住 APP 用户
「现在想想为什么要没买这么奇葩的户型,可能最关键就是上班地方就在这个小区隔壁,另一个原因是这个错层户型赠送的面积多!」说到为什么购买这个超长的奇葩户型时,住友@SALLYGUO 如是说,终究抵不过懒和划算。她家的户型乍看并没有歪七扭八,但最大的 bug 就是特别长,从最左边走到最右边多走几趟运动量可不小。在改造时,她与设计师主要针对这两个重点来改造——首先,打通了楼下一个房间,做成了开放的休闲区,楼梯使用玻璃扶手很是通透,而同时,在楼梯的下半部分还做了一整面墙的乐高墙。其次,超长的走廊刷上了墨绿色的黑板漆,小朋友可以自由自在地在这个「走廊」里画画创作。![]()
手枪户型的逆袭
手枪户型可以说是人见人嫌的一种户型了,而住友@心居HOMECARE 分享的这个案例,不仅是如此,居然还是一把很多棱角的手枪户型。硬伤有两个,首先,几个卧室分布在狭长的昏暗过道一侧;第二,主卧很不方正,卧室里的家具特别难摆放。第一,设计师将客厅移至两个卧室间,利用移动门板来让客厅的功能更为机动,也让昏暗的过道拥有了被打开的可能性,过道不再死气沉沉。第二,主卧没有使用任何成品家具,全数定制家具,不仅有床、有大衣柜甚至还有一个小吧台,空间不整的问题再也不复存在。![]()
无玄关别怕!
厨房无收纳也别怕!
by 好好住认证设计师
@七巧天工设计
好好住认证设计师@七巧天工设计 遇到过这么一个 W 型的异形户型,有两个让业主十分头痛的硬伤:① 没有玄关,一进门就是客厅沙发区与餐桌,没有专门的换鞋地;② 厨房进门左侧是一个烟道与管道井,原格局有一个很浪费且容易磕碰的锐角,没有太多储物的空间。对此,他提出的解决方案颇为巧妙,很值得深受「无玄关」和「厨房无收纳」的人来借鉴!① 玄关处做了一个半通透的玄关柜,既能保持入门后的通透,又兼备换鞋储物的功能。② 将厨房里的锐角与尖角都去除,再将原本烟道与管道井的空间规划成一个电器高柜,逆袭了,这里居然成了储物功能极其强大的一个柜子!
![]()
以园林思路来改户型
只为获得钱塘江江景
住友@fuqj 自己便是设计师与建筑师,他在第一次看房时,被这个房子眼前的钱塘江风景瞬间吸引,立刻签下了合约。但事实上,这并非一个好户型房子,全屋找不到任何一个方正的结构,整体空间被划分得很细碎,拥有诸多曲折且浪费的空间。
![]()
于是,他对户型进行了比较大的改造,拆除了大部分墙体,而改之主要以柜体来区分空间,形成相对模糊的边界。![]()
![]()
![]()
![]()
户型 bug 多到数不清
但又怎样?
如屋主@大腿哥哥 所说,「懂房子的人一定不会喜欢这个户型」。因为它存在了太多问题——
在改造前,@大腿哥哥 一直无法理解,世界上为什么会有这么让人无法理解的户型,但改造后就「真香」了,他真正感受到这个户型的美好——「南北通透实在是太舒服了,整个家能从日出晒到日落,幸福地享受一整天的阳光。」
![]()
![]()
改造时,敲掉了除了承重墙之外的所有墙,把阳台封了起来,使之成为客厅的一部分,让客厅宽度达到 4.2 米,电视背景墙太短的问题就解决了。
而主卧,则大刀阔斧地将两个房间打通,以一间一年就用一两次的客房,换来了整个主卧真正的南北通透,巨大的独立空间使用起来,能量满满!
我们见过太多「把一手好牌打烂」的案例,而这些以奇葩户型为原点的改造,则都可以荣登「一手烂牌打成冠军」的殿堂,买入奇葩户型或许是受限于预算、便利程度、交通等复杂现实条件的选择,但事实上,这世界上似乎不存在无法被改造的户型。何必给自己设限,只要知道自己的需求,用心地去构思自己当下与未来的生活,谁知道当下的「奇葩户型」会不会就是你家未来最动人的角落呢?
👀
看完以上这些奇葩改造,
那👇👇
策划 | 好好住编辑部
![]()
![]()
商业合作请联系:ads@haohaozhu.com如需转载请联系:edit@haohaozhu.com
动心就给小黄花 ![]()