要说「蜗居」的痛,大概一线城市的人最懂。单身还能忍,可要是拖家带口,满身疲惫回到家,很可能家里连个喘息的地方都没有。
住友@查澍 是位平面设计师,常常加班到深夜。为了不打扰女儿和母亲休息,只能睡客厅沙发。40㎡、一室一厅、三代人,在这个狭小空间里,「拥挤不便」是生活的常态。
难,是真的难,好在设计师@大海小燕 接下这个棘手活,并结合家人的作息,利用空间折叠,妥帖安排好了每一个人的生活。
所有图片/描述均选自
好好住APP认证设计师@大海小燕
全文无商业合作
01
/
原来三口人挤在一个「紧绷」的空间中,没有丝毫隐私可言,人、物、空间相互侵占:
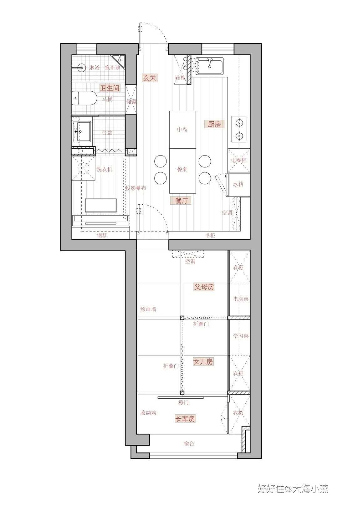
原始房屋户型结构简单,除了改变卫生间门洞方向,@大海小燕 没有过多进行空间划分。而是选择从家人居住习惯着手,抛弃繁琐的多功能家具,利用空间折叠法,实现居住自由。
02
/
当然了,睡眠舱能解决的不只睡眠问题而已。所有隔断打开时,休闲、聊天都可以在一个相对开敞的空间进行。
窗台除了晾晒衣服,也是猫咪休闲区。
03
/
将原有卫生间的门洞封起来做了双面柜,靠玄关这面用来收纳清洁工具,镜门的设计便于出门整理着装。
厨房增加了 4 米长的橱柜,也配备了洗碗机。水槽下方设计了全屋中央净水和软水处理器。把蒸烤箱、冰箱这类大件家电统统归到一处,腾出更多活动空间。
中心区域设计了岛台和餐桌,增加厨房操作和收纳空间,也形成了围绕中岛的环形动线。在大宅里才能实现的配置,小户型里也都实现了。
墙体上方隐藏了投影幕布盒,原来家里没有电视,现在坐在餐桌边,就可以实现了。
在餐厨客综合体中,设计了将空调、门、钢琴和洗衣机共同嵌入的书架墙,这个区域即是阅读区也作为补充收纳 & 展示区。
04
/
这是三代女性共处的家,屋主@查澍 不仅需要照顾年迈的母亲,还要考虑女儿的成长。
装修的半年时间里,她租住在隔壁,只为了亲身参与其中,和设计师一点点打磨,给家人创造一个真正舒适的居住环境。
同是女性的居所,这个家总让我想起电影「海街日记」里四姐妹在庭院点燃花火的场景——长夜路漫漫,只要有家人相伴,便无惧黑夜。
👇
编辑 | 路人饼
一键关注
获取你的家居指南
版权声明
好好住编辑部出品,未经许可不得转载。
商业合作请联系:ads@haohaozhu.com
新媒体合作请联系:edit@haohaozhu.com