小户型改造看过太多,这套我却偏偏忘不了。
为什么?因为它实在是太过特别。
别的小户型追求浅色调,它来个深色全套;别的小户型讲究方正,它偏把床斜着放;别的小户型实用至上,它倒好,处处精致得像画一样…
你还别说,在好好住认证设计师@Stefny 各种突破性的操作之下,这个家的确完美兼备了好看+好用,颜值爆棚,过目难忘。
所有图片/描述均选自
好好住 APP 认证设计师@Stefny
全文无商业合作
01
户型改造
/
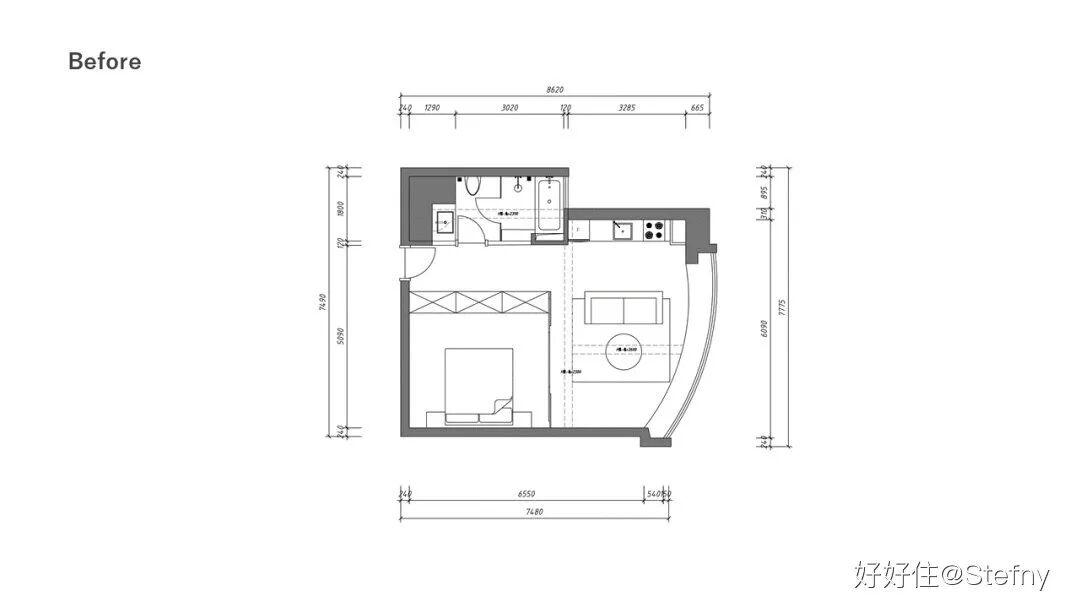
房屋是一间 48㎡ 不规则结构的酒店式公寓。
这原本是女主人的单身公寓,如今结婚后,男主人搬入,需要容纳两个人的物品与爱好,为此需要来一番大改造。
△原始户型
原始房型是标准的 1 室 1 厅,卧室有大量空间,其实使用的频率不高。为了让空间效率最大化,主要做出如下改造:
①旋转45度床位,释放出空间。
②台盆移至过道,卫生间变身三分离。
③打破卧室和公寓内其他空间的鲜明隔断,利用过道释放出大量的储物及展示功能。
除此之外,在有限的空间内,如何满足日常的储物及收纳需求也很重要。改造之后:
①玄关右边设置鞋柜。
②玄关左边为香水展示柜,后是洗衣机+烘干机。
③利用45度角的分割,打造步入式衣帽间。
④开放式岛台背后做了挡墙,分割的区域用于晾晒。
02
色彩基调
/
经典「三原色」,小户型也可以玩深色系
一般情况下,小户型都会采用浅色为基调。
但考虑到男女主人的鲜明个性与喜好,设计师@Stefny 决定将 Space Age、孟菲斯、包豪斯年代的元素融合,借鉴舞台的概念,用深色打造神秘、经典的氛围。
突破惯常认知里小户型只考虑实用的理念,既要做到满足生活所需,同时也得富有装饰性元素,能够彰显屋主的爱好。
提取最经典的「三原色」为主要色彩,利用胡桃木色作为串联,让看似浓烈的色彩在小公寓里和谐共存。
03
/
厨房的岛台长 2.1 米,台面与吧台皆采用杜邦可丽耐人造石,这种新型材料可塑性强,没有空隙,适合造型又容易打理。
△水磨石花纹也为复古感增色
红蓝黄装饰色块的展示柜,与厨房的 usm 柜相呼应。深色背景柜的包容度很高,一眼望去,杂物看起来不那么凌乱。
吧台后方的 usm 柜子上,是屋主从墨西哥搬回来的建筑大师 Lusi Barragan 的代表性玻璃球。以此为灵感,设计师在吧台的尽头设计了一块黄色亚克力透明隔板,区隔晾晒空间的同时,也增加了光影效果。
厨房使用了倍科牌暗藏式的冰箱,深度不足 65cm 的机身能够嵌入柜体,与厨房台面齐平。油烟机选用方太 19m³ 吸力的侧吸油烟机,适合开放式厨房。
餐厅窗台采用杜邦人造石材料,波浪板的造型增添现代气息。
由于房屋原始不能敲除窗台作为坐凳,便搭配蓝色玻璃圆桌,能容纳 4 人围坐用餐,轻巧方便,也能变化成一个临时的办公桌。
△圆桌包含了孟菲斯时期特有的几何玩具感,蓝色半透明的玻璃组合也颇有趣味。三原色的 Paul Smith 台灯也可以随时移动。
04
/
公寓进门一侧是一面鞋柜墙,用于储物,可以容纳 80 双鞋左右。
左手边的陈列架,则是女主人收藏香水的迷你博物馆。背后藏着洗干衣柜,用柜门阻隔,减少洗衣干衣的噪音。
△香水柜背后是一个洗衣柜,放置洗衣机+烘干机。
客厅以壁炉与展示书架做背景,放置了单人沙发以及主人收藏的 David Hockney 画册。
移开画册,可以再放置一把单人座椅。壁炉前聊天小酌,再惬意不过。
从卧室一边门洞看向客厅,别有洞天。
壁炉采用天然大理石作为饰面,搭配点缀黄色手工砖,与厨房背景砖呼应。
百叶窗的光影透过弧形门洞洒入,从卧室看过去,非常漂亮。
阳台则是通过吧台尽头的隔墙创造出了新的窗口,并且还拥有了一个可以晒干衣物的区域,也算是不放过任何一点空间。
05
/
旋转 45度 后的卧室,床体为了贴合墙体设计成了异形。
卧室两侧皆有圆角的门洞与门帘。而两侧的门帘被分成了蓝色和红色,即分别呼应了红黄蓝的主题色,也是双方喜好融入的表现。
将卧室 45度 旋转过后,释放出来的三角空间则成为了步入式衣帽间。
利用卧室旁一米宽的三角形区域,放置了中古的秘书柜,构造出一小块可以安静工作阅读的区域。同时,也可兼具梳妆台的功能。
走廊以两种色调呈现,一边是深色胡桃木为主基调,一边则是勒·柯布西耶居所的灰蓝色为主。
玻璃矮柜用来展示屋主各种收藏的有趣餐具。
06
卫生间将洗手台移至过道,洗手台背后一左一右两间分别是盥洗室+淋浴房,打造三分离卫浴。
黄铜色定制镜可以翻转 180 度,满足两侧使用的需求。台盆依然采用水磨石纹的人造石,制作了台盆一体的洗手池。侧面的波浪板与窗台再度呼应。
淋浴和盥洗室的门使用长虹玻璃,有私密性的同时,纹路也与波浪板形成呼应。玻璃门红色的边框与把手增添复古感,与红色布帘相辅相成。
淋浴背景砖参考欧洲老式浴场设计元素,用黄色手工砖制作了一个弧形壁龛,中间点缀中古壁灯,营造戏剧感和复古感。
地面采用水磨石元素,与家中其他水磨石元素呼应。
这是一个棱角分明、个性鲜活的家。
它没有执迷于极致的收纳,在色彩上大胆突破,有张有弛,将好看与实用结合——既满足生活所需,也丝毫不缺视觉上的强烈美学。
设计师@Stefny 将这个家命名为「忒修斯之家」,即勇敢踏上征程,在变化与成长里塑造家的无限可能。
\ 划 重 点 时 间 /
① 旋转45°床位:释放更多空间
② 风格确立:孟菲斯+包豪斯+Space Age
⑧ 巧用过道做展示:香水博物馆+餐具玻璃柜
⑨ 圆形餐桌:满足多人用餐的可能
👇
编辑 | 哆啦
一键关注
获取你的家居指南
版权声明
好好住编辑部出品,未经许可不得转载。
商业合作请联系:ads@haohaozhu.com
新媒体合作请联系:edit@haohaozhu.com