今天要介绍的这个房子,改造前是典型的 90 年代板式住宅,建筑面积写着 127㎡,但使用面积却只有 96㎡,屋主@11zhuzi 小时候与奶奶、父母一家四口住在这里。似乎许多人都会有这样的童年回忆,逼仄的房子被分成几个封闭的小区块,每个人到点了回房间睡觉,几乎没有可以惬意休息的放松公共空间。
![]()
△ 改造前的样子。
@11zhuzi 最近找来好好住认证设计师@栖斯设计,协助她对家里进行一次改造。因为这个家,未来仅仅需要满足她与男友两人的生活就够了。这个房子不仅是睡觉生存的场域,更是能放松生活的空间。如设计师所说,「原先的户型布局忽视了公共空间在家庭生活中的重要地位,只是满足一家多口人的硬性居住需求。」
![]()
△ 改造后的餐厅。
改造后的房子,其实只有一个卧室,其余空间则尽都是惬意的公共空间。以下,我们不妨一起来看看,如何顺应当下的生活居住需求,更好地「打开」房子,更好地让家能真正地让人休息。
![]()
△ 改造后的卧室。
![]()
房屋信息
户型 3 室
使用面积 96㎡
房屋位置 上海闵行
装修花费 50 万元
#01
开放厨房+卡座餐厅
=
家里就是优雅咖啡店
原房型中,餐厅与厨房空间严格划分,造成了空间的狭小闭塞。改造后,穿过玄关,即是一体的餐厨空间,完整而开阔。
![]()
原始的扇形墙面与竖向墙体形成的非垂直转角,既不好用,视觉上也不舒适。于是设计师利用倒圆角完成两侧墙壁的衔接,将非直角转角带来的不适感化解掉,也让整个空间更为和谐。
![]()
餐厅里,沿着墙设计了一整排卡座,橄榄绿的颜色与厨房里的整体柜颜色相呼应。卡座的设计,也增加了餐厅的可能性,营造出街边咖啡厅的轻松氛围,让这里不仅是餐厅,也是家里重要的交流平台与交流区域。
![]()
另一个「化腐朽为神奇」的细节是,结构上,原有一道无法拆除的竖向管道,干脆根据现场环境,设计一个带有弧形元素的装饰柱,让管道隐藏其中,也成为一个绝佳的装饰。
![]()
卡座下方设计了充足的电源口与储物空间,可以收纳猫食投喂机、猫的饮水机、扫地机器人等等。
![]()
#02
足够大、功能多的
起居空间
旧房子中,由于客厅与两个卧室空间相连,导致整个客厅几乎沦为走道与杂物堆放的地方,失去了可以让人长时间停留的稳定性。于是设计师对整个格局动线进行了大改造,原本的起居室被一分为二,仅保留靠窗的西侧空间作为公共区域,东侧则并入卧室区域。
![]()
于是,就有了这个功能多变的起居空间——影音室、工作室、客卧、阅读室等等。
![]()
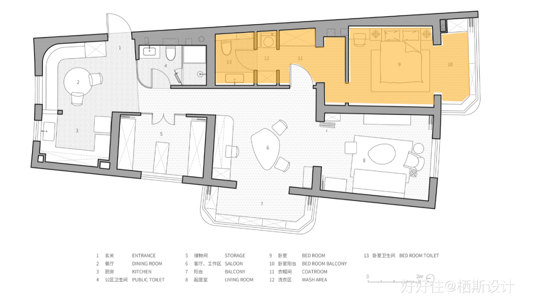
两个房间的隔墙被拆掉,替换成玻璃折叠门,不阻碍光线的流动,让整个空间通透而明亮。折叠门敞开时,两个空间合二为一,折叠门关闭后,搭配纱帘,南侧的房间又可以暂时恢复私密空间,成为临时的客房,十分灵活。玻璃折叠门两侧的空间,功能上却各有侧重,一侧偏向工作,另一侧偏向休息。工作室内,沿着墙面定制了「柜体+办公台面」的墙面办公桌,满足了日常在家办公的需求。工作桌的对面则是颇为壮观的 CD 收藏区,两个定制的松木原木顶天立地柜承载了超过 1500 张 CD。另一侧的房间更多是满足休息娱乐的影音室,整体颜色以大地色为主,家具也都选择了比较轻巧的款式,方便移动,从而方便整个空间的功能变化——可以是影音室,也可以成为客房。这个空间里,既有传统的沙发正对电视柜的格局,也在窗户的一侧藏了一整块投影幕布,选择哪种观看方式全凭当下的喜好。阳台是工作室的延伸。家里的橘猫,蛋蛋,陪伴了屋主多年,也是重要的家庭成员。于是,在阳台的一角,专门设计了专属于它的游乐场,包括猫爬架与猫窝。另一侧,装了一个折叠跑步机,由此,阳台也是运动角。不需要运动的时候,跑步机折起来,宜家的波昂躺椅满足闲暇晒太阳的需求。改造前,走廊狭窄黑暗,完全是由实体墙隔出的。改造后,拆掉了墙,筑起了一道弧形玻璃隔断,一改之前的狭窄闭塞,让空间通透、明亮且过渡流畅,还顺势引导了路径。玻璃幕墙后是卫生间,右边是衣帽间。走廊的天花板下同样一以贯之地藏着些许「弧线」细节。卫生间就被围合在这个毛玻璃弧形墙内,透光却不透视,让老房子里的不见光暗卫从此再不会「又黑又脏又逼仄」了。客卫同样是「绿+白」的搭配,格局上,一侧花洒淋雨,另一侧是特殊尺寸的坐式浴缸,墙上设计了几道壁龛来满足卫生间收纳。卫生间的另一侧则是兼具储藏室功能的衣帽间,衣帽间的隔墙同样被打开了,做了大玻璃门,又再次为走廊补充了光线。设计师将房子公共空间的东侧部分划入了主卧,打造出一个功能齐全的主卧大套房,以一道门作为区隔,区分出公共区域与私密区域。整个卧室区域包含阳台、卧室、衣帽间、洗衣区、卫生间,由南向北层层递进,舒适度与便利度直线上升。设计中,通过层层叠叠的弧形门洞,划分出不同功能区域,同时也打破了单调乏味的过道体验,让空间的层次感更为丰富。卧室阳台朝南,采光极佳。通过绿色半墙、藤编家具、人字拼地板等等元素,完全实现了屋主预想中「越南法式」的感觉,柔和放松,又不乏复古与端庄。一侧的床头还包括化妆区,墙壁内嵌入壁龛,成为化妆桌的补充。
另一侧的阳台,以一把椅子、一个小边几以及一盏落地灯,构筑了一个窗边阅读区。主卫与客卫风格一致,白色配绿色的竖砖组合、弧形的元素、长虹玻璃门等,清爽宜人。改造前的老房子中,洗衣机只能蜷缩在客卫的一角。改造时重新排布了下水管道,从而在主卫外屋主拥有了一个独立的洗衣区,包括叠放的烘干机与洗衣机,对面还有收纳柜与衣物整理台,动线很是流畅——洗完澡、脏衣服扔入洗衣机、烘干衣服、烘干完整理与收纳进衣柜。
![]()
新媒体合作请联系:edit@haohaozhu.com
喜欢这个家的
就点「在看」
![]()