今天这个家,有住友说是自己看过的整屋中,收纳规划最好的一个 。
不夸张。屋主@就是6 也是住过十年的小房子,才能把收纳抠到这个水平。虽然 67㎡ 的新家也不算大,但足够施展她这些年修炼的「收纳心法」。房屋信息
户型 2 室
使用面积 67 ㎡
装修花费 20 万元
房屋位置 北京 昌平
所有图片/描述均选自
好好住APP用户@就是6
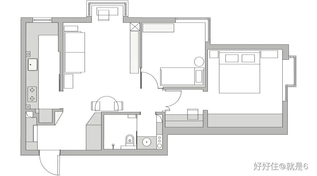
① 进门对着厨房,入户就是餐厅,典型的国内户型,卫生和私密性都堪忧;① 餐厅:移出玄关,客餐厅重组为起居室;
② 玄关:餐厅移出后玄关功能独立,使用空间增加近一倍,内置洗衣房;
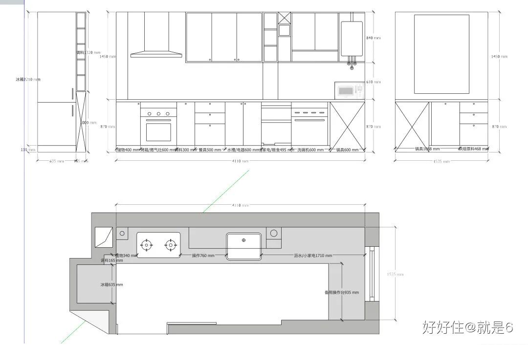
③ 厨房:门洞改向,纳入小阳台,一字变U型;
④ 卫生间:外扩40㎝,实现干湿分离;
⑤ 主卧:纳入过道空间做书房,形成小套房;
看到户型改造这里,我已经鼓掌了。但接下来,每个空间的收纳规划,才是她家最值得抄作业的地方。改造之后的玄关空间真的大,但也一点没浪费,功能、动线、收纳都堪称满分。入户大门不仅是一道安全防线,更是小户型不可忽视的收纳空间。随身小物挂在门上,拿取方便又不容易遗漏;门上鞋架节省空间,而且进门不落地,减少污染。玄关这排综合收纳柜,柜门关闭干净清爽,柜门打开后却很震撼。进门把东西放在中空置物区,口罩、消毒湿巾等日用品就近放在抽屉里。高柜内部预留电源,容纳下吸尘器和杂七杂八的工具五金。最右侧置鞋区的其实暗藏玄机,高柜里侧有一个转角,屋主利用这里,做成 L 型转角鞋柜,储物空间也不容小觑。卫生间安排不下洗衣机,放在玄关反而更符合生活习惯。脏衣进门直接脱下丢进洗衣机,不用穿行室内造成二次污染。洗烘套装右侧的是「次净衣柜」。隐藏在柜子里的抽拉旋转镜,使用时拉出来,可以 270° 旋转,玄关、客厅都可以照到。「洁癖」级别的玄关规划:一切可能的污染源都在玄关做好隔离。厨房
厨房门洞改向,向玄关外推 0.7 米,凹出一个冰箱位;生活阳台包进厨房,局促的一字型厨房生生改成了大 U 型。不足 1m 宽的过道,右侧无法再做任何柜体和隔板,但墙上收纳也不能浪费。封闭式厨房的第一眼颜值,选用整面无分隔的玻璃门,减少厨房内外的界限感,1㎝ 的极窄门框,视觉上更纤细高挑。冰箱安排在厨房入口处,厨房内外拿取食物动线都最短。嵌入式冰箱没有缝隙,就没有卫生和收纳死角。上方空间还可以收纳半年多的厨房囤货。灶台右侧是 75㎝ 操作区,为增加台面空间,选了尺寸相对小的燃气灶和单槽。灶台两侧预留出 30㎝,炒菜时临时放备菜特别方便。大单槽非常好用,直角设计不会浪费一厘米。56㎝ 的水池柜更是用到极限,塞进了垃圾处理器、净水机、前置过滤器,以及厨房必备清洁剂。![]()
调料收纳:90% 的调料放在拉篮里,这个位置备菜和烹饪时使用都方便;另外 10% 固体调料放在灶台左侧开放格中。这种统一包装的瓶子,不仅整齐好看,还能单手操作,大大提高做饭效率。小家电区:台面放置小家电,吊柜 90% 封闭区收纳相关配件,10% 的开放格是每天要用的工具和杯子。壁挂炉因为安装位置受限没法装柜门,定做了一个百叶窗帘,保证通风又遮挡住了不美好。下柜这里做了三层拉板抽,使用起来更方便,填米时不用再抱着大米桶做蹲起了。锅具收纳:位于转角的地柜原来安装了小怪物拉篮,由于滑轨占用大量空间,实际使用率不到 60%,今年把拉篮拆掉换成带轮塑料盒,锅子竖着放,增容一倍多!洗碗机上面这块空间,原本被一块封板封死,虽然只有 6㎝,让屋主放弃也是不可能的。钢板抽屉 + 阻尼滑轨,原来的封板加个把手,搞定超大工具抽屉!厨房动线:洗菜-切菜-炒菜-盛菜-上菜,一字排开,紧凑高效。
起居室
与厨房一墙之隔的客厅,基调也是白色,同时增加了一些黑色元素。投影替代电视,语音控制,完全告别遥控器。作为实用主义者,屋主对昂贵的家具和器物不敏感,却舍得砸重金在各类电器和电子产品上,追求极致的舒适与高效。电视柜一旁是零食小推车;客厅茶几也是带轮的,移开就能秒变运动空间。这些移动家具,都为客厅功能增加了更多可能。
前面说过客厅凸出来的 1.4×0.7m 小空间(所谓的阳台),是屋主对户型最不满意的地方。装修时把阳台窗户改造成整块落地窗,支起桌椅,也成为了一块「居心地」。
改造后的餐厅,从玄关「请」进了客厅,正对厨房入口,方便传菜。餐厅靠近走廊,处于交通空间的边缘。这款折叠餐桌,让玄关的斜向通道得以延续,也没有凸出的边边角角。餐桌旁的梯形柜和玄关洗衣区是一体的,因为不规则无法做抽屉,买了几个塑料抽屉一样好用,囤一些抽纸、桌布。台面这里用一块折叠小桌板拓展了台面空间,叠起来也可以挂一块茶巾。可折叠/能移动/会伸缩……屋主家有很多类似的小户型友好家具,还专门写过一篇文章,感兴趣可以移步@就是6 的好好住主页看看。卧室
与多数女生不同,屋主对独立衣帽间完全无感,因为衣帽间内的交通空间一般都浪费了。在主卧定制了整墙顶天立地的大衣柜,2㎡ 足以收纳两人四季的衣服、家里所有床品,还塞进一个「家政区」,以及藏了一个空调。衣柜内部,按使用频率和衣物种类合理规划。下面这套收纳图引起强烈舒适,答应我一定要滑!
衣柜内预留了电源,并安装了感应灯带。熨衣板+挂烫机也设计在了衣柜里,熨→晾→收,全部在卧室完成动线最短。大衣柜在晚上还可以充当投影幕布,便携投影仪放在床头,躺床上看 120 寸巨幕电影。与纯白色的公共空间不同,蓝色系的主卧,视觉上自带「降温」效果。冬季会换上暖色系丝绒窗帘和深色系的床品,增加温暖感。另一间卧室是未来的儿童房,目前布置得比较简单,刷了墨绿色。宜家的折叠床拉开有 1.6m,家人偶尔来住也够用。书房
书桌位于原户型的过道,改造时主卧门外推,把过道包进来改成书房,就变成了小套房的格局。整个书房 1.8×1.8m,其实够用了。两个人日常都是无纸化办公,书柜做成吊柜在书桌上方,抽屉柜精简成一个置于书桌底下。书桌附近基本都是细碎的小件,需要统筹归类来高效收纳。每一格抽屉用塑料盒做分隔,按使用频率分为上下两层。![]()
书柜右侧的门通往客厅,特意做成子母门。平时子门关闭不影响书房抽屉使用,如果是单开门,使用抽屉时就会和门扇冲突。卫生间
卫生间的马桶和淋浴在湿区,洗手台独立出来,早高峰期间效率最高,如厕、洗漱不冲突。入墙式水龙头、壁挂香皂盒、壁挂纸巾盒,卫生间内的一切都尽量不落地。谁还能没受过颜值的蛊惑?屋主装修时没做封闭式储物柜。半年使用下来,全家唯一缺收纳的地方就是卫生间。
用这个百姓储物柜换掉原来的「颜值党」,顿时感觉这才是我们实用主义该干的事儿!
原本卫生间又黑又小,改造后白色系的墙面地面视觉上干净清爽,金色腰线条是点睛之笔,「天窗」给暗卫引入光线。浴室置物架水渍难清洁,有卫生死角,换成「快捷酒店同款沐浴瓶」,舒服了!便宜实惠,简洁清爽,而且特别方便清洁墙壁,顶部平台还能放些小件,不要太实用啦。家政区:清洁刷、清洁剂、拖把、盆,全部上墙,卫生间就是要一个死角不留!
屋主@就是6 一直坚信,每一件物品都应该拥有属于自己的位置,对于收纳规划这件事上投入真的不少。而入住两年半以来,她说自己最庆幸的决定,就是没有把所有钱用来买房——![]()
好好住编辑部出品,未经许可不得转载。
商业合作请联系:ads@haohaozhu.com
新媒体合作请联系:edit@haohaozhu.com
喜欢今天这个家吗?
来🙌 分享、点赞、在看 🙌 三连击 ![]()