今天给大家介绍的这套作品,来自好好住认证设计师@住范儿zhufaner 。
这套 130㎡ 的房子位于北京海淀,设计师拆除厨房的隔墙,又借用客厅部分面积,扩大了使用面积,改造成开放式客餐厨一体设计,空间开阔明亮,新增了长吧台,增加操作台面,餐桌挨着吧台摆放,既满足多人聚餐的需求,也能在此办公。
一起来看看吧!
*以下图文来自
好好住认证设计师@住范儿zhufaner
房屋信息
户型 2 室
使用面积 130 ㎡
装修花费 55.0 万元
房屋位置 北京 海淀
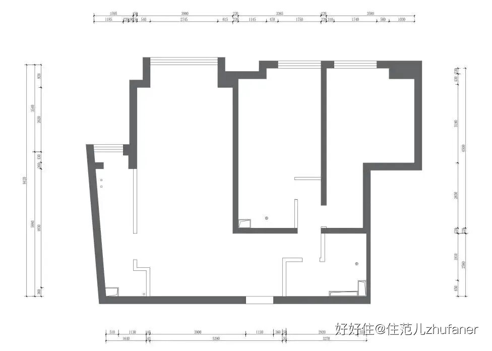
户型图
房子位于顶层,户型算不上周正,而且 80% 的墙体为承重墙,无法拆除。但好在各个房间均有采光面(除了卫生间),通风也不错,省去了很多后期改造上的麻烦。最难解决的,还是顶部存在感极强的梁体。
仔细勘察后,设计师结合屋主的需求,对整一房子做了以下改动:
●压缩一部分卫生间的面积,用以布置深度达 45cm 的门厅柜;
●拆除厨房原隔墙,改为客餐厨一体化设计;
●恢复主卧内部的上下水布局,以增设马桶区与洗漱区;
●调整客卧门洞位置,避免「开门正对卫生间」的尴尬格局;
●全屋的梁体,均运用弧线造型来弱化存在感。
玄关
门厅改造前后对比。在北京传统四合院的布局里,大门常正对着一面「影壁墙」,而非其它室内门。这样能起到遮挡视线的作用,避免客人来访时,一眼将屋内的情形看到底。屋主家改造后的门厅,颇有这样的布局韵味。进门两侧用通顶柜、屏风分隔空间;正对着的墙体,则采用挂画+日落灯的装饰配置,提升整一空间的颜值。
极具特色的屏风,由橡木、长虹玻璃与藤编组合而成,是屋主根据自家户型,在网上定制的款式。前期安装时,也是费了一番周折,「它是一整片送到的,巨大,差点还进不到电梯。」屋主说。所幸成功安装后的效果很出彩,而且没有与木地板的色泽产生偏差,让门厅拥有了和谐、统一的视觉美感。
门厅柜尺寸参考。门厅柜内部设有挂衣区与吸尘器收纳区,不将外衣带入屋内,又能及时拿出吸尘器清扫。
厨房
厨房改造前后对比。改造前的厨房,为窄长 L 型格局,基本只能容纳一人活动,使用起来十分不便。确定隔墙可拆除后,设计师便决定借用客厅一部分面积,以将厨房外扩,增加使用面积。
仅有一个色调的空间,对家具的材质、颜色很「苛刻」,加入一小块亮色都会觉得突兀。但若像屋主家这般,吊柜与地柜分别选用不同的颜色搭配,可以打破单一色系带来的「单调感」,让配色变得自由,也让空间更有趣、生动。不过,地柜有嵌入电器的缘故,屋主也是花了一番功夫,才找到颜色近乎白色的家电,这才实现了完美的「木白」搭配。
另外,不用单一色泽的瓷砖,改用更具设计感的水磨石地砖,以及能呈现不同光泽的亮光釉面砖,足以让厨房摆脱无趣、古板的观感。除了拆除隔墙,将厨房变为开放式,设计师还增加了长度近 3m 的吧台,用来作为操作台面的补充,平常在此吃简餐也很方便。
餐厅
原户型里因为有储物柜与冰箱妨碍,餐椅的移动范围特别小,坐在里边的人想出来,还得外边的人起身。现在将餐桌挨着吧台摆放,不止扩大了餐区面积,提升用餐舒适度,还可以腾出空间摆放餐边柜、双门冰箱和梳妆台,实现收纳面积翻倍。
同时吧台还是一个绝佳的「传菜口」。试想餐桌还是原来的靠墙布局时,装盘完还需步行端至餐桌;现在只要放到吧台上,其他人接过来就可以啦。
吧台下方布置的轨道插座,屋主甚是喜欢。不止聚会吃火锅、烤肉方便,在此办公时,还可用于笔记本电脑充电。
客厅
厨房外扩之后,起居室的面积会比原户型的小。为此,设计师尽力保持了屋子原有的结构,强调收口的统一,和利用具有「膨胀效果」的乳白色,让空间显得更为通透。地台上方有安装电动晾衣架,可作为家里的临时晾晒区。
改造前后对比。令人头疼的梁体,设计师也处理得十分巧妙。应用弧线造型,让梁与梁之间的过渡更自然,从而弱化其存在感。搭配设计简洁的白色系吊灯,可以让人少把目光放在顶上,更多关注屋主精心选配的软装单品。
改造前后对比。当华丽且厚重的电视背景板被去除,加上樱桃木家具,以及绿植三两株,自然、大气的空间氛围就可被呈现出来。
沙发背景墙的设计颇有讲究,远看觉着平平无奇,近看却是惊喜满满。走向自然的纹理,并非艺术漆刷出的效果,而是先由海吉布打底,之后上漆涂刷而成。
卫生间
改造前后对比。门厅柜占据一部分空间的缘故,卫生间的面积实际比原户型的小。因此,洗手台的位置由原先的靠门,改为正对门。添置的大台盆浴室柜,屋主十分推荐,可谓是提升卫生间幸福感的利器。「原先洗漱像游泳,现在都看不见水渍。」屋主的先生说。
改造前后对比。除了洗漱区,内部其它功能区的划分依然如旧,往里走的路线为「洗衣区→马桶区→淋浴区」。储物空间的设计上,新建的两层壁龛替代了原先的落地置物架。地面不留任何物品,平常用水一冲即可清洁,为家务做减法的设计最为实用。
卧室
原户型里,主卧留有上下水布局,但并未加以利用。改造之后,主卧被「一分为二」,增设了新的马桶区与洗漱区。着急出门时,屋主与先生可一人使用一个卫生间;加装的两扇室内门,能有效隔绝噪音,起夜时不用担心打扰到家人。
硬装上,主卧同样为「白墙 + 浅木色地板」的配置,用最简洁的装饰,勾勒出空间的形态,从而达到显大的效果。同时,落地窗带来的优秀采光,也为这一空间增彩不少。看前后对比,主卧可谓是「判若两室」!
面对上方存在感极强的梁体,设计师依旧运用弧线造型来化解。另一方面,比对地面至梁体的高度而设计的异形通顶柜,舍弃了普通的拉手设计,这样能在纵向上拉伸视觉高度,随之也就可以减少梁体带来的压迫感。
客卧
客卧的门洞,原本和主卧相对。但改造之后,主卧分出一部分空间用来布置卫生间,客卧门便变为与之相对。为了避免「开门即卫生间」的尴尬,设计师将客卧门洞位置移到内部,接着加入拱形设计,让空出的走廊更具纵深感。
戳一戳图片,可欣赏屋主收藏的精美手办。
改造前后对比。客卧的布置,依旧沿袭「轻硬装、重软装」的原则,特别是在换上巨幅窗扇后,整一空间显得极为宽敞。接近窗边的空间,层高有近 5m ,对于吊灯、窗顶弧形遮帘的安装都是一个挑战。屋主的先生还分享,为了准确测量顶部的弧度,装窗帘的师傅前后就来过好几次。
改造前后对比。原本结构错乱的梁体,后续被设计师设计为「海浪」造型,一层一层向上变换,最后将视线指引至窗边,让空间不再显得阴暗、逼仄。
改造前后对比。较为低矮的斜角空间,则成为步入式衣橱。我们初进入客卧时,还误以为那是一个薄柜,因为从视觉上看,完全没有厚重感。想不到内部的深度除了满足储物需求,还可以容纳一人进入,极其精巧。