最近发现,「独居」是个很有意思的词。
年轻人嘛,一个人住,那是真香。但要换作老年人,好像多少有点凄凉。毕竟一写独居,我们不免会收到这样的留言:一个人住,老了迟早要后悔!
一个人住,老了真的会后悔吗?
在 好好住App 上,我们就看到了一些越过刻板印象的独居阿姨——她们不被年龄限制,热爱生活,对居住怀有热诚,不凑合不妥协,充沛而自由地过上了许多人理想中的退休生活。
1
她的神仙退休生活,
都在86㎡的小家里了。
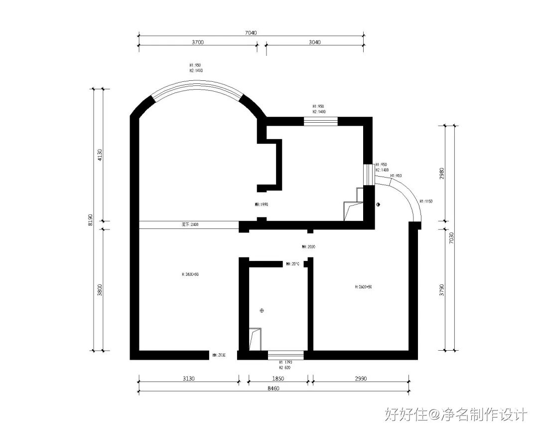
上海长宁·86㎡·1室 | 设计师@净名制作设计
这个家的屋主,是一位年纪 60+ 的阿姨。
曾是教师的她,退休多年,卖掉了郊区的大房子,给自己和女儿分别在市区置换了一套小房子。如今她的新家,使用面积 60㎡ 左右。
改造前
小房子,没有限制阿姨对好居住的追求。相反,她的居住理念非常年轻。连设计师都惊讶,头一次见面,阿姨就很确定地说「想要奶油法式风」。
与此同时,阿姨对房子的布局需求也很明确:①格局要通透,动线要流畅;②要开放式厨房+岛台;③卫生间要做干湿分离;④储物空间不能少,最好有个独立储物间。
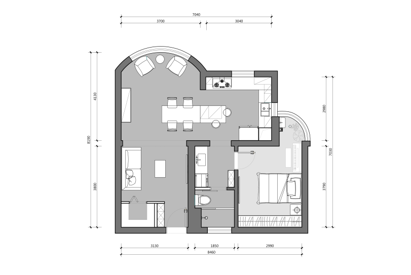
改造后
格局重塑之后,一进屋就有了足够的收纳。因为阿姨很喜欢旅行,设计师专门把储物间放置在了靠近玄关的位置,一次性解决了行李箱、小家电和杂物的储放。
客厅则按照阿姨的意愿,将法式元素与奶油色相融,形成轻复古。同时把原本进入卧室的门封闭起来之后,电视背景墙也更加完整。
退休之后,阿姨的生活依然忙碌又充实。她开始学习钢琴,还给自己报了老年大学。
遵从阿姨的爱好,设计师把阳台空间发展为她的「自习室」。餐边柜换成了电钢琴,休闲区变成了阅读角。好像回到了年少的学生时代,即便宅家,练琴、看书、烘焙也样样不落。
餐厨区也按照阿姨的想法,实现了餐厨一体。
在开放通透的环境里,做饭再也不是孤独的苦差事,朋友家人上门聚会,也能一起热气腾腾地边做饭边聊天。
至于过道的空间,也没有被浪费。洗手台外置后,还放下了洗烘套装。为了视觉的统一,设计师用百叶柜门的方式,将电器隐藏处理。
卫生间干湿分离,下沉式浴室做了半玻璃隔断,最大化释放空间,也不造成多余的阻碍。
像现在独居的年轻人一样,阿姨很大胆地只保留了一个卧室。奶油色延续到睡眠区,再搭配原木藤编,非常温馨。
考虑到阿姨的生活习惯,小阳台也贴心预留了洗衣池和晾晒区,实用性很强。
阿姨的家,几乎看不到年纪的痕迹。她积极乐观的心态,一样投射在这个家里。它很年轻,没有被任何的定式所束缚。
连设计师也说,和阿姨合作的过程里,自己也被刷新了认知。在年纪之外,标签之外,更重要的是独立的、不可取代的个人特质。
🖥 案例设计师
点击卡片👆🏻
找ta答疑&咨询吧!
2
70岁快乐养老房,
我看了也想住!
湖北武汉·90㎡·3室 | 设计师@武汉青木兮设计
另一个家的屋主,是一位 70 岁的退休阿姨。
她本打算和闺蜜找一个养老院抱团养老,可是女儿担心无法就近照顾,便提出将老房重新装修的计划。
改造前
金阿姨性格开朗,喜欢旅行、看书、拍照,最近还迷上跟孙辈们一起拍短视频。她喜欢的家,是舒适的、轻松的,最好还能保留一些曾经的老物件。
面对房龄高达 30 年的老房,结合阿姨的喜好,设计师主要做出以下调整:
1.增加玄关:入户打造收纳柜+步入式收纳空间。
2.保留次卧:平时独居,但女儿家偶尔会过来。
3.厨房扩大:将飘窗纳入厨房做玻璃封顶,扩大成 U 型。
玄关,是金阿姨回家的缓冲地带。进门后旁边是两面顶天立地的衣柜,前方是一个木质收纳柜。旅行的物件、家人朋友的合影,都集合在这一方小小的空间,到处充满着她的痕迹。
收纳柜也是客厅的电视背景墙,整个客厅都以白色和原木为主。
客厅茶几很灵活,玻璃台面拿下来就是一个互动空间。外孙和外孙女一来,客厅就成了他们的游乐场。
曾经的一个卧室改成了书房。平时是阿姨的阅读空间,节假日还可灵活变为外孙和外孙女的卧室。
外扩后的厨房变为 U 型,使用效率得到了较大提升。玻璃封顶后,光线也被引入了室内。
餐厅与厨房相连,能促进做饭人与家人的交流,也减少了传菜的动线。
卡座下方的黑色柜子是阿姨自留的家具,因为很有意义,便以此为基础,设计了卡座。
经过了重新规划后,洗脸盆外置,集收纳为一体,非常素雅。
卧室是放松空间,整体朴素。原有的阳台被纳入主卧,变为三面玻璃窗环绕的采光格局,不再昏暗。
为了庆祝金阿姨搬入新居,闺蜜还专门送上自己做的画,挂在阳台的位置。天气好的时候,阿姨就会坐在这里看看书,开窗还能和锻炼的老邻居们打打招呼。
为了方便子女以后照顾,卧室的门框进行了增高和扩大,方便轮椅进出。洗衣机也被移到了次卧的阳台,不会打扰阿姨的休息。
金阿姨的家,不止为自己考量,也考虑了儿孙的需求。快乐独居,也期待家人们常回家看看,这是金阿姨的幸福生活哲学。
🖥 案例设计师
点击卡片👆🏻
找ta答疑&咨询吧!
3
66岁一个人住,
她比年轻人还洒脱。
北京朝阳·60㎡·2室 | 住友@想后来居上的人
和其他两位阿姨不太一样,波儿阿姨的家,是自己装修的。66 岁的她,北大毕业,独居,活得很年轻,对许多事都充满着好奇与热情。
开工当日的波儿阿姨,退休前,她曾就职于中华书局图书馆,是资深图书馆专家。
去年,波儿阿姨卖掉了市区老破小,置换了一套改善型住房——整体朝南,光线充足;主次两居,使用面积约 60㎡;近而不入,距离儿子家只有一站地。
户型改造前后对比
像是一种天赋,从一进门,就可见波儿阿姨的用心。玄关不到 1㎡ ,墙面宽度窄,她把宜家的毕利书柜再利用,改成鞋柜,不到一千元,放下所有的鞋。
内部也不凑合,自个儿研究了不少收纳神器。三组小抽屉用来存放日常杂物,鞋子也利用工具摆放整齐。
多数老年人不接受的开放式厨房,她也一再坚持。还特地把一字型厨房改成了 U 型,动线更加顺畅。
家电的选择也很现代化。洗碗机是必备,多功能料理机也是狠心买下的,咖啡机和桌面饮水机这类年轻人的小家电,她家也一样不少。
厨房的收纳,也非常极致。分门别类,好拿好放。
并非样样都得求新,丈夫离世多年,波儿阿姨仍保持着念旧的部分。
老照片摆在电视机上,餐桌椅是从老房搬来的。桌布和坐垫是自己用缝纫机做的,一抹绿色,跳出不少的生机。
餐桌背后,是自己规划的烘焙区。深度 60cm,台面够用,也好囤货。
虽然会定期断舍离,但为了保留家的烟火气,她把卧室门口的一面墙当作自己的旅行纪念品陈列馆。
她说,家嘛,还是得让人知道你是谁,喜欢什么,去过哪里。
客厅,她也有坚持:不要茶几,只保留沙发和悬浮电视柜。榻榻米飘窗,是为了给喝茶听书留一个小小的空间。
卧室很素净,除了玻璃隔断的衣柜,只有一张简简单单的床。阳台目前保留了一把椅子和几盆植物,以后波儿阿姨想在这里学学画画。
波儿阿姨在有限的预算内,靠自己实现了家的种种构想。中央新风、新款洗地机、戴森吹风机,这些看似是年轻人的专属,都能在她家找到痕迹。
关于波儿阿姨的生活+收纳哲学,我们写过一篇很详尽的采访。想要了解她更多,点击即可阅读全文喔~👇
三位阿姨的家,三种不同的独居样貌。
但它们的核心都极其相似——遵从自我的内心,不设限,不以年纪作为衡量生活的标尺,乐自己所乐,爱自己所爱。
对我来说,她们的存在,像是一种真切的鼓励:只要认真活着,老去便没那么可怕。
行业 TOP 全案家装设计师平台
50,000+ 全案设计师
6,000+ 好好住付费认证设计师
遍及全国 300+ 城市
帮你梳理需求,规划空间,把控进度,安排预算
👇👇👇
一键匹配
最适合你的设计师
好好住编辑部 | 策划
哆啦 | 编辑
好好住App用户&好好住认证设计师 | 图片
为这些可爱的独居阿姨
点亮「在看」吧!
👇