让别墅之家「垂直流动」,这才是高阶的化零为整 !| 营造家
原创
营造家
营造家
营造家
微信号
NicelivingDesigner
功能介绍
由好好住APP发起的中国新生代职业设计师成长平台
发表于
收录于合集
#营造家·佳作
88个
这是营造家为大家推荐的
第220套私宅作品
来自好好住认证设计师
@金晶-良人一室设计
这是位于杭州余杭的一栋别墅空间,南北走向的长条户型,每层占地不大,上下四层如山岭层叠。为了打破多层空间带来的零散布局,设计师@金晶-良人一室设计 利用
垂直堆叠空间的流动性
,通过
打造多处垂直交通
实现空间之间的交叠与连贯性,将布局化零为整,最大限度的发挥出别墅空间的户型优势。
垂直流动之造型楼梯
连续的白色体块造型楼梯打造出空间的连贯性,入户层的玄关「窗口」设计则引导人们的视线穿过餐厅延伸到猫屋和花园,从而串起完整连续的空间,弱化错层带来的突兀感。
垂直流动之猫屋&茶室
一层和二层之间的猫屋融合茶室的垂直流动空间,打破了楼上楼下的物理壁垒,也从视觉上增加了一层客厅与二层餐厅之间的互通性。
垂直流动之顶层儿童房
利用顶层的挑高优势,设计师将两个儿童房以上下错层的方式分布,并以阶梯和垂直梯子两种方式来联通两个房间,构建出一个富有想象力和趣味性的儿童空间。
一起来看看吧!
《邸达》
“ 一路筑梦也终将抵达,之后,关于和「家」的相处便开始了。”
—— 金晶-良人一室设计
项目户型 3 室
项目面积 450 平米
项目位置 浙江 杭州
以下图文均来自
好好住认证设计师@金晶-良人一室设计
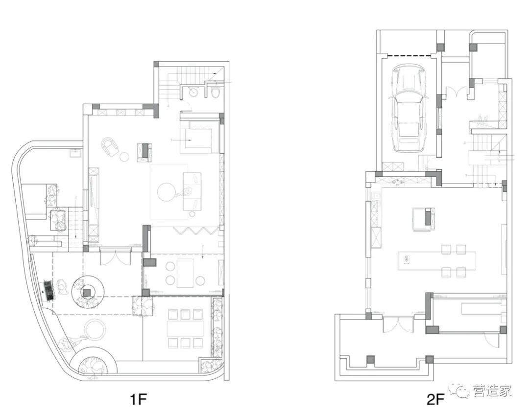
户 型 图
一二层平面布局图。
一二层剖面图。
三四层平面布局图。
三四层剖面图。
一层 · 猫屋&茶室
将一层阳台纳入整体布局,空间得到最大程度的延伸。同时,
将一二层空间相互联通的猫屋设计融合茶室功能,打破了楼上楼下的物理壁垒,最大限度地连接了两个垂直空间
,增加了客厅和餐厅之间的互通性。
完全向客厅开放的茶室和猫屋,像一个透明的容器,在开放和封闭之间切换,空间的开合和聚拢满足了不同的使用场景。
一层 · 客 厅
下沉式卡座设计
化解了原户型卫生间存在的地面高差,在整个敞开连续的客厅空间中,营造更有深度的空间层次感,同时让室内拥有更好的采光和与众不同的空间视野。
包裹立柱的柜体设计
自然分离出两条动线,功能区在不影响整体空间的通透性的基础上,适当的剥离,完成了空间的功能区隔。
具有深度且富有弹性的灰色和深色胡桃木色
,在具有包容度的同时能更好的衬托出空间结构。
二层 · 玄关
入户层的原始高差切断了空间的连续性,
过道末端的造型墙,压低的「窗口」即是玄关空间的视线交点,也是视觉起点
,引导人们的视线穿过餐厅延伸到猫屋和花园,从而串起完整连续的空间,弱化错层带来的突兀感,空间得到自然的过渡。
地面炫目的大理石花纹,如同万花筒般梦幻,在这极度的张扬中,简约的黑白线条始终贯穿其中,张弛有度。
连续的白色体块呈现出别样的建筑美感。
二层 · 餐厅&厨房
橱柜设计和立柱结构结合
,嵌合厨房储物和功能,削弱了立柱的存在感,使得厨房动线更流畅合理。运用构成设计的手法,通过调整窗户和柜体之间的比例、材质、肌理,赋予空间更多的细节。
餐厅细节。
三层 · 主卧
主卧大胆的使用
双动线布局
,床头两侧的
两扇弧形门洞
在整体内敛稳定的的氛围中增添了灵动的一笔。
黑色地板和包容性极强的灰色
构成低调极简的卧室空间,承托出落地玻璃带来独一无二的视野,每次拉开窗帘都如同展开一幅风景画。
卧室地面的抬高以及地面材质的变化
暗示空间的切换,确保衣帽区和卧室作为独立空间且互不打扰。
独立的浴缸区。
顶层 · 儿童房
顶层拥有挑高优势,设计上运用了
大面积浅色温润的木色和明朗的线条
构建出一个富有想象力的空间,撕掉儿童房的固有标签,营造出符合儿童的天性的自由空间,也是一个可以和小朋友一起成长的空间。
儿童房实景照片。
顶层 · 儿童专属卫生间
高低台盆,四分离,彩色瓷砖
,打造出一个实用又兼具趣味性的儿童卫生间。
设计师还晒了更多作品
长按二维码去
看看吧
👇
编辑 | 小药
素材 | 良人一室设计、好好住APP
NICELIVING DESIGNER
· 往期精彩
·
加入营造家设计师俱乐部
新作解读、设计干货、行业动态
与
5万+
优秀家装设计师共同进步!
一键加入
100%
认证设计师收到业主私信咨询
在好好住流量扶持下
1000+
个人设计师成立了自己的设计公司
· 超多福利,就等你来
·
1500万+装修业主
精准流量匹配,接单不发愁!
高频次同行交流
跟高手过招,让你光速进步
年度赛事「营造家奖」
为你搭建专属上升通道!
点击图片,了解「营造家奖」
我们是
由好好住APP发起的
中国新生代职业设计师成长平台
- 这里有一群终将改变行业的设计人 -
CONTACT US / 联系我们
设计师入驻:haohaozhu02(微信)
投稿 / 合作:pro@haohaozhu.com
「垂直流动」的别墅之家,惊艳到你了吗?
欢迎
分享、点赞、在看三连击
!
预览时标签不可点
微信扫一扫
关注该公众号
知道了
微信扫一扫
使用小程序
取消
允许
取消
允许
:
,
。
视频
小程序
赞
,轻点两下取消赞
在看
,轻点两下取消在看