△ 入口空间 摄影:赵奕龙
项目名称 / 渔乡茶舍
竣工时间 / 2018.11
建筑面积 / 2463㎡
设计单位 / gad · line+ studio、浙江绿城建筑设计有限公司
在江南典型的乡村山水环境中,通过对体量的消解、对材料的再思考,对施工的深度介入,让建筑与环境的关系呈现出一种耐人寻味的亲密关系。传统与现代、厚重与轻盈、消解与挺拔,似乎是几对相互对立且矛盾的词汇,却在同一个建筑中呈现。
△ 行人初抵达,建筑从场地中挺拔而出 摄影:赵奕龙
△ 五层体量,通过形态消解,藏匿于自然一隅 摄影:赵奕龙
△ 顶层景观平台,与水天相接 摄影:赵奕龙
△ 内部空间,人与建筑的尺度 摄影:赵奕龙
场地与形态
△ 江景 图片转载自网络
渔乡茶舍位于浙江省杭州建德市,建德古为百越地,历史悠久,山川秀丽,旅游资源丰富。建德政府提出“全域旅游发展战略”,计划投资打造一个江南秘境主题景区,渔乡茶舍属于其中最先启动的公共建筑,承载着接待和休闲的功能要求。“渔乡茶舍”这个名字,顾名思义,便是在有山有水、烟雨朦胧的渔村水乡中,营造一个喝茶的地方。
△ 区域位置 摄影:赵奕龙
场地位于富春江、兰江、新安江三江交汇处,江面开阔;拥三江,观乌龙山,望双塔,山水相映。周边散落分布着一些小村庄,建筑的典型特征是青砖白墙,给人质朴清新的感觉。民居形制无论是平面、立面还是室内外装饰,都明显地与皖南、赣北的住宅近似。
△ 九姓渔村现状
△ 概念草图
△ 场地
基地位于一个山坳,直面江水,风景界面最大化和体量融于环境是设计之初的两个基本出发点。方案没有追求一个焦点式的视觉形象,而是以消解体量的片层形式呈现,并且以巧妙的动线设计将游山观山的情趣引入了建筑的室内空间。
△ 概念草图
△ 形体演变
△ 整体形态模型照片
设计利用地形高差,将茶舍与接待两个功能,分为主次两栋贴合地形延展的退台建筑,逐层叠退,不仅视觉上弱化建筑体量,同时产生了大量的一线江景的露台场所。主楼实际为三层,为保证更好的景观视野,将整个建筑体量由高向低逐层下挂。顶层地面标高与后山平齐,与村落相接,底层通过两层毛石垒砌的灰空间与滨水道路相连,有效减少行人对使用空间的干扰。
△ 厚重与轻盈 摄影:赵奕龙
△ 沿临山楼梯拾阶而上 摄影:赵奕龙
河边的杉树与坡上的樟树,分别作为入口提示,坡下围绕杉树做了圆形的院子,入口处通过片墙延伸,将空间蔓延至周边,模糊了建筑与自然的边界。这样“双入口”的设计也是建筑师在业主功能不能明确的情况下,保证未来使用灵活性的一种应对策略。
△ 刚刚完工的建筑,似乎已历经岁月洗涤,有着时间的厚重感
摄影:赵奕龙
△ 沿阶梯空间向上 摄影:赵奕龙
摄影:赵奕龙
沿着毛石砌筑护坡拾阶而上,建筑体量隐藏在山坳中,沿江面展现的是数层宽阔的观景平台,来访者在深远的挑檐下几经转折,视线在江面与临山楼梯间转换,空间时而开阔时而幽狭。
△ 临山楼梯,拾阶而上 摄影:赵奕龙
△ 正面朝向开阔的江景打开 摄影:赵奕龙
△ 靠山的背面,与山体岩石保持着亲密关系 摄影:赵奕龙
材料与构造
传统坡屋顶、分散布局、乡野材料、木构工艺是在当前乡村环境中建筑创作的习惯性选择。可当前国内绝大多数施工队伍更熟悉的是工业化建造工序和技术,传统手工艺由于匠人的缺失导致施工成本和时间周期都难以控制。
△ 混凝土材质与整体设计策略最为一致 摄影:赵奕龙
line+对材料和形式的思考是同步的,选择混凝土来建造这样一幢坐落于乡村环境中的公共建筑有多重考虑。首先混凝土材质与设计师的整体设计策略最为一致,作为一种在自然环境中介入感比较强的材料,能够与建筑整体谦和的体量策略达到一种平衡;而木模板特有的纹理又赋予了混凝土材料特殊的尺度和质感,能够弥补单一材料在趣味性上的缺失。
△ 顶部纹理 摄影:孟凡浩
△ 木模板特有的纹理赋予了混凝土材料特殊的尺度和质感 摄影:孟凡浩
建筑师设想,当建造活动结束后,在温润潮湿的环境中,茂盛植物逐渐攀附混凝土墙面屋顶。若要使建筑真正成为景观的一部分,那长久的契合于场地必须借助时间的力量。这或许是在当下不断呼吁“乡土材料”、“传统符号”、“东方性”的大背景下,存在于江南山水环境中建筑风格的另一种可能性。
△ 材料肌理与光影 摄影:赵奕龙
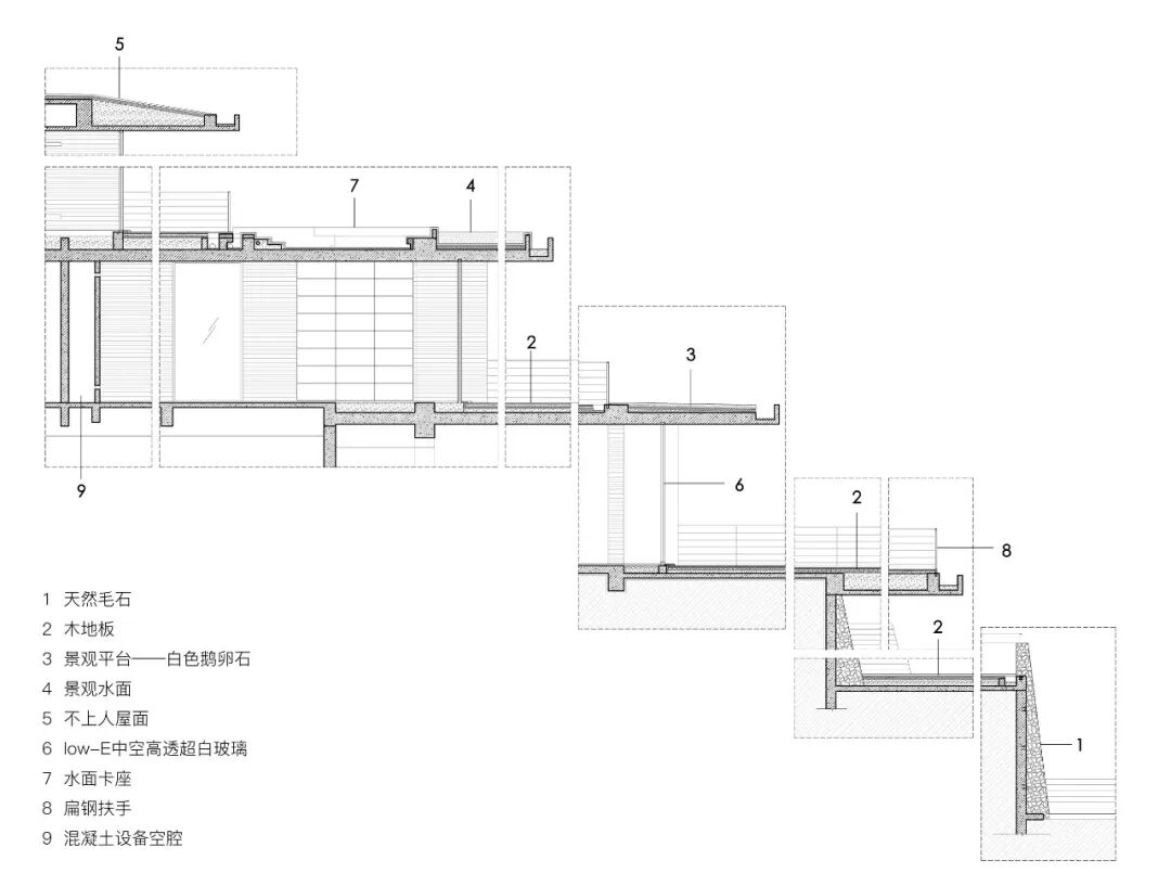
选择混凝土这种一次成型材料,也是对建筑设计深度与施工配合的一次考验。建筑师希望通过对结构设备的细致处理,强化空间的纯粹性。因不设置吊顶,为了隐藏管道与空调风口,针对建筑的不同部位,分别设计了400mm、600mm及1000mm三种不同厚度的混凝土夹心墙系统,分别对应保温层、管井、设备空腔三种功能。为了保证概念的延续,建筑师将室内景观一体化设计,灯具、开关面板、电线统一提前预埋,入口处的景观座椅、嵌入式扶手、排水口等细节也进行整体设计。
△ 室内空间 摄影:赵奕龙
△ 混凝土夹心墙系统(依次用于保温、管道、设备)
建造与实施
△ 厚板之下的山景 摄影:赵奕龙
项目从 2017年9月份开始施工,2018年8月整体拆模,历时近一年,设计工作贯穿着整个施工过程,建筑师希望在大尺度的山水环境中突出材料相对强烈肌理感,在正式浇筑前,经过多次实验,选择了纹理较为清晰但成本并不高的碳化木板作为模板。为把控施工效果,采用同一模数错缝拼装的折中模板方案。施工完成后,建筑师刻意保留了一些瑕疵,希望手工建造的痕迹能被感知。
△ 工地照片 摄影:赵奕龙
△ 室内空间
渔乡茶舍从形式创作的手法上来看,它始终是简洁的,简洁到只剩板、柱、剪力墙等作为建筑的必要要素,但从技术细节的角度来说,它又是复雜的,实现了设备、室内、景观的一体化设计。通过对地形的借用,接近完工的渔乡茶舍依偎在富春江畔的山坳中,薄而深远的挑板与粗粝厚重的混凝土产生的“薄”与“厚”的对比,在光影的调和下,已频频打动亲临现场的人们。
△ 厚板之下的江景 摄影:赵奕龙
△ 透过厚板瞥见山林 摄影:赵奕龙
△ 随山体缓坡抬升的建筑 摄影:赵奕龙
△ 混凝土的木纹肌理
△ -1F PLAN
△ 1F PLAN
△ 2F PLAN
△ 3F PLAN
△ ELEVATION
△ DETAILS
△ 模型照片
The 2018 Architecture MasterPrize
Honorable Mention
Recreational Architecture category
项目名称:渔乡茶舍
地点:浙江省杭州建德市
设计时间:2017.05~2018.11
建筑面积:2463㎡
设计单位:gad · line+ studio、浙江绿城建筑设计有限公司
主持建筑师:孟凡浩
设计团队:何雅量、陶涛
结构设计:吴映栋、叶小萍
机电设计:崔大梁、姚国财、李芳芳(暖通)、任飞宇、王跃(电气)、张斌、胡挺(给排水)
业主:建德市江南秘境旅游发展有限公司
建设单位:杭州祥麟建设有限公司
摄影:赵奕龙、孟凡浩