![]()
互联网时代,在功能性、美观性、经济性之外,建筑的媒介性也是一股不可忽视的力量,因此在东西门村活化更新项目中,我们尝试跳出传统建筑设计范畴,与特定社会语境和政策相结合,整合上下游资源,架构一套从策划设计到建设、运营、传播的项目运作流程,摸索一种以设计为引擎的创新开发模式,让建筑师成为各个领域间的枢纽和链接,从而实现从“赋形者”到“赋能者”的角色转变。
![]()
2017年,党的十九大报告中提出乡村振兴战略,“乡村振兴”成为了全党全社会的共同行动。同年,我们在浙江的回迁安置房项目——东梓关回迁农居在网络平台上迅速传播,获得了10亿+的点击量,更是接连登上了央视春晚片头、《人民日报》等主流媒体,持续的社会影响力与经济效益使其成为乡村振兴的典型案例。当一个无人问津的村子通过一组建筑的力量被重新激活,我们意识到互联网时代,建筑作为媒介所产生的空间之外的价值外延。东梓关之后,大量的乡村项目接踵而来,有改造,有新建,多半的诉求就是希望能为网红村,带动经济发展,然而根据我的经验,乡村振兴的成功需要“天时、地利、人和”,缺一不可,同时乡村问题极为复杂,很多困难都在专业领域之外,所以我们一直保持敬畏之心,并没有冒然展开大规模乡村建筑实践。![]()
△ 东西门村改造前后对比
2018年10月,鲁商集团党委书记高洪雷、首席战略官赵衍峰及朴宿文旅创始人马春涛一行专程来浙江考察了我们在杭州、松阳、莫干山等地的一系列乡村项目,并来访我们事务所,邀请我们在山东做一个类似于东梓关影响力的乡村振兴样板项目。高书记人文情怀与决心以及赵总的执行魄力促使我下定决心,与他们一起迎接这次挑战。
11月,我跟随鲁商团队来到山东泰安市岱岳区道朗镇,泰山余脉九女峰脚下的十九个村落被一条蜿蜒崎岖的盘山道路所串接,近年来,因交通闭塞、土地贫瘠等问题,村子里的年轻人大多被迫背井离乡,空心化日趋严重。面对棘手的现状,鲁商集团下定决心,希望能通过一定的前期资金投入和产业导入,实现零散小村的集群振兴。我的建议不要均匀投入,寻找至痛点,集中发力,以点带面,在短期内创造爆点,实现价值外延。经过大家的讨论,最终决定选择位置最偏僻、难度最大的省级贫困村东西门村作为突破点,展开更新改造。![]()
△ 东西门村旧貌
02 策略的并行
在上位乡村规划中,希望以文旅为切入点,将九女峰十九个村整体打造成集田园文旅、康养度假、高效农业、研学游学于一体的乡村生态旅游度假区,其中东西门村的改造后业态被定位为高端度假民宿,但由于并没有太多增量用地指标,设计范围被限制在现有的宅基地内。场地为典型的坡地村落,植被茂密,一条小河穿过其间,登至村落山顶,可遥望泰山,尽揽壮阔景色。项目启动之初,地块内已经没有村民居住,只留下十二组石屋,以及一些残破的石头墙壁和少量曾被作为猪圈使用的生产用房,有的为近期新建,有的已有多年的历史。
![]()
面对多重挑战——如何将存量宅基地及集体建设用地有效利用?如何为贫困村引流,产生经济效益,使其可持续发展?我们提出双线并行的设计策略,一是做针灸式的改造,在保持宅基地边界不变的情况下,以存量建筑的空间激活和原有环境的生态修复为切入点,从而实现旧村落的新生,二是通过建立公共空间来激发可以引流的媒体效应。将场地内现有宅基地改造更新为度假酒店,利用少量的集体建设用地指标打造一组具备媒体引流效应的公共建筑,兼顾酒店的公共配套。03 设计的矛盾
━
设计之初面临的矛盾,主要来自以下三个层面:
一是“新”功能与“旧”场地。成规模的项目开发,大多会选择将基地上的建筑全部铲除,整体新建,用标准化的客房来取代丰富而有微差的民居,只保留了乡村的外部自然环境。但由于国家宅基地政策,每一幢房子只能限定在现有的宅基地轮廓内,如何在保留原有村落肌理的同时,在内部功能上实现突破,进而满足 “新”的客房需求。二是“新”要求与“旧”施工。作为新建项目,业主及当地居民都对其寄予厚望,城市里那些精美的建筑,成了业主心中的理想目标。然而地理位置偏远,交通不便,现代的大型的施工机械无法展开,施工人员素质普遍不高,在城市中已经普遍使用的建造工艺(幕墙等)很难实现等等,这是很多乡建面临的真实情况。设计如何将这些施工因素考虑在内,保证建筑的完成度和设计品质?三是“新”建筑与“旧”传统。在现代建筑文化的语境下,建筑师面对传统建筑的形式语境,应该如何延续整体风格?建筑师面对新的空间需求与材料条件,又应该如何反映当代?04 设计的回应
东西门村旧建筑所遗留的传统石墙,来自村内石头匠人娴熟的手工技艺,而设计的首要问题,便是如何处理这些石墙,毛石墙不仅是乡村风貌的重要特征,同时也是乡村肌理最重要的痕迹所在,因此我们的设计深化及材料运用均围绕石墙展开。
![]()
△ 旧建筑的石墙
设计前期仔细地测绘了现场留存的石屋和石墙,选择质量比较好的部分进行标注和保留。由于质量问题无法保留的石墙,也将石头堆放保存,再按照原来的位置重建。我们将这些旧的石墙视为“锚固”新建筑的重要依据,这样,新与旧,自然而然的有了一种延续与传承。
石构建筑的特点,墙体厚重,保温性能好。但也有材料浪费大,防水性能较差,抗震效果不佳的缺点。现场完全按照旧的石屋做法已无可能。我们在设计中将原来毛石墙体的承重作用去除,转化为围护结构,这样,原来承重的石墙获得了形式上的自由,得以充分的展示材质本身。毛石墙的内侧增加了砌块墙体,砌块墙体与毛石之间依次加入保温层、防水层、保护层,以提高新建筑的热工性能,保证新建筑满足现代的使用要求。![]()
新的建筑则以钢框架的形式植入旧的毛石墙中。仔细考虑了现场的施工条件后,我们选择了建材市场上最常见的工字钢做为主要建材。梁和柱均采用200x200的工字钢,檩条则采用100x148的工字钢,便于现场采购及加工。同时在设计中仔细设计了框架的组合和材料的交接,主体的框架采用刚接,檩条与主体框架采用搭接。![]()
这种框架体系可以根据不同的宅基地,灵活地采用一字型,L型,U型等布局,很好的应对了复杂的宅基地和场地特征。小尺度的框架成了廊,大尺度的框架便成了房间。这种由原型框架生成单体,再生长为整体的方式,与传统聚落的构成方式完全一致。![]()
这种框架体系在施工过程中也取得了非常好的效果,清晰简单的结构体系不仅节约了造价,同时也让施工人员能够准确的理解设计者的意图,将现场施工犯错的空间控制到最小。
05 十二个院子的新生
![]()
△ 二期改造前航拍图
十二个院子的具体策略如下:
一、二、四号院,场地现存建筑为近期新建的石屋。设计保留了部分毛石墙体,梳理了建筑和场地的关系。一号院有一棵树木,建筑围绕树木形成内庭院。二号院和四号院形成L型的围合院落。
![]()
![]()
三号院,现存一些体量较小的石头房屋,为以前老民居的仓储生产辅助用房。设计利用现存的毛石体量,在其之间植入了玻璃盒体连接,每一个石头盒体分别承载卫生间、卧室等功能,玻璃盒体则是供儿童玩乐的游戏共享空间。![]()
△ 三号院子生成图
![]()
内与外,大与小,实与虚、封闭与开敞在此形成了强烈对比。![]()
△ 三号院子剖透视
![]()
![]()
![]()
![]()
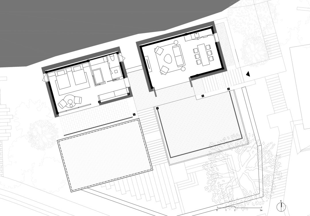
五号院,原建筑共有两部分,南北平行布置。南边部分为长条形农民新建石屋,长度过长,造型呆板,与地形结合生硬。我们将旧的体量打断,分为两部分。西侧保留一字型布局,形成两间客房。东侧则结合地形置入竖向体量,在底层区域建立服务于客房的公共空间,并依据高差走势在内部设置大台阶,使得室内空间层次丰富、功能多变。![]()
△ 五号院子生成图
![]()
△ 五号院子改造前
原建筑北侧是旧民居,旧建筑为L型布局,我们的设计保留了这种空间格局,形成L型的庭院。
![]()
![]()
△ 五号院子
![]()
△ 五号院子内部空间
六号院原为近年新建的建筑。此处位置临近上山的主要道路,功能定义为民宿的会议聚会空间。考虑到功能的差异性,也希望在形势策略上跳出传统坡屋顶,以金属铝板为材料,以“折叠”作为设计概念,墙、屋面和栏板整体连续,并与化解场地高差的台阶融合,整个建筑表皮呈现出轻薄的折纸效果,再加上角部完全打开的结构形体,更加消解了建筑的重量感。以一种异质的姿态与厚重的客房建筑形成对比。
![]()
![]()
![]()
△ 六号院子
![]()
△ 六号院子内部空间
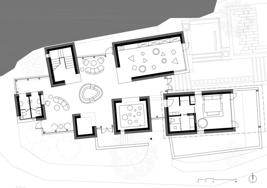
七、八、九号院,原始建筑均为围合布局的老民居。新建筑顺应旧的建筑肌理及空间形态,做三面围合,在原有空间逻辑上增减体量,形成室内外融合、高差变化的院落空间。
![]()
△ 七号院子生成图
![]()
![]()
![]()
△ 七号院子
△ 七号院子内部空间
其中八号院基地上的古树被完整保留,建筑框架则灵活地围绕其在四周展开,退让之间形成庇护于树荫下的外部庭院及功能整合的内部空间。
![]()
△ 八号院子生成图
![]()
十号院,原为新建的L型布局建筑。设计则顺应原空间格局,采用与五号院相同的L型围合庭院,沿地势创造拾级而上的入口关系,形成高于坡面的室外平台,不受任何视线遮挡,直接与远山对话。![]()
△ 十号院子生成图
![]()
十一号院,原建筑为近年新建的建筑,南北两条布局,前后有三米的高差。设计顺应了原建筑的空间布局,调解了前后建筑的视线高差。局部的屋顶增大,增加了共享的公共灰空间及屋顶平台,增加了空间的丰富度。![]()
△ 十一号院子生成图
![]()
十二号院位于整个场地的最西侧,考虑其相对比较独立的地理位置,我们将其定位为民宿最高端的独栋客房。场地现存建筑为旧民居,已经破败不堪。![]()
△ 十二号院子生成图
新建筑保留了老建筑的毛石墙,植入二层的钢结构双坡屋顶体量。坡屋面简化了做法,大量采用平板水泥瓦,同时但采用现代材料和工艺做法进行诠释。屋顶瓦与檐口的交接采用金属收口,提升设计的精致感,也减少各种瓦屋面装饰配件,降低成本。
![]()
![]()
![]()
△ 十二号院子
建筑主要采用的简洁玻璃界面与粗粝的毛石墙形成对比,屋檐及层间用精致的铝型材收边。再加上屋檐下暖色的竹木墙板,试图营造质朴而不失精致的当代乡村新审美。最终,有别于其它院子以石头质感锚固于大地的稳重,十二号院子以轻盈的姿态在二层悬挑出了大面积的L型转角灰空间,与环境中的原始树木相融合,使来访者可直接与自然对话。
![]()
![]()
![]()
06 单体系统与建造细节
━
林徽因先生在《中国营造学社汇刊》第三卷1期《论中国建筑之几个特征》中提到,“中国架构制既与现代方法恰巧同一原则,将来只需变更建筑材料,主要结构部分则均可不有过激变动,而同时因材料之可能,更作新的发展,必有极满意的新建筑产生。”基于一直以来对传统民居和聚落的研究,我们从中汲取营养,从最基本的材料和建造开始思考。
平面尺度上,建筑框架优先考虑毛石墙围合的空间,并通过调节满足0.3米的模数布置。垂直方向,建筑单体框架在2.7米高度有一道横梁,界定了门窗的上沿和毛石墙的高度。单坡屋顶主梁外挑,檩条直接搭接在主梁之上,间距0.6米。檩条上面设置木望板,防水,保温等构造层。最上面选用陶土瓦覆盖屋顶,屋顶周边采用铝板收边,可以更好的保护木望板和防水层。
![]()
单体建筑的围护界面共有三种,毛石墙体,玻璃门窗,木饰面或木质格栅。每种材料都有清晰的位置和构造对应。毛石墙位于框架外侧,包裹着钢框架。同时毛石墙面均用10mm钢板收边,钢板与钢框架焊接,进一步提升外墙的防水性能。
安装在钢框架之间的填充体共有两种,一种是填充砌块,一种是玻璃门窗。
![]()
△标准墙身大样
填充砌块位于毛石墙的内侧,或框架2.7米以上建筑不需要采光的位置。木饰面或木质格栅均存在于框架2.7米高度以上、屋檐以下,分别对应室内的实墙和高窗。在细节层面,木饰面与木格栅采用同样的模数,增强建筑的整体感。工字钢的凹槽之间镶嵌木头,再加上木饰面与木格栅,整个建筑的外表还是呈现出木为主的质感,而工字钢的凹槽又清晰地交代了木头的装饰意义。钢结构框架主体,毛石墙体与玻璃的围护界面,再加上木饰面和木格栅,简单的组合产生了丰富的变化:轻和重,虚与实,封闭与开放。同时整个建筑将结构框架完全暴露,追求一种真实的结构美感。
![]()
设计将最简单的工业材料,以灵活的构成原则形成原型框架,再结合场地丰富的原始痕迹——石墙,最终由单体组合成群体,进而形成一个坡地聚落。梳理场地的痕迹,保留原始的肌理,传承民居的构架体系,利用现代的工业体系及材料进行更新是我们在设计中的基本策略。
07 结语
━
现如今,曾经的省级贫困村东西门村在民宿投入运营后已实现全面脱贫。项目所包含的25间客房、1间餐厅、1个书房,单月营业额最高超100万元,来访游客络绎不绝。△ 2020年五一黄金周的九女峰东西门村
九女峰的乡村振兴之路引起了广泛的社会影响力,包括央视一套《新闻联播》、CCTV共和国发展成就巡礼山东篇、学习强国等各类媒体均对其进行了的报道,该项目被列为乡村振兴齐鲁样板省级示范区,成功打造了山东省乡村振兴的新名片。国家、省、市等各级领导纷纷带队考察,至今已来访团队已达数百个,将这里乡村振兴经验传递给全国,真正做到让百姓在家门口吃上“旅游饭”,让百姓都能奔向富裕路。
![]()
近年来,“乡村振兴”的大背景下,城市资源溢出,大量的涌入乡村,本项目就是典型的国有资本与当地政府合作开发,以由局部带动整体的乡村振兴案例。乡村振兴需要各方的支持,但是如何借力这些资源,成为一道摆在建筑师面前值得深思的课题——政府的诉求是探索乡村振兴模式;资本的诉求是投资回报平衡;村民的诉求是改善生活品质、增加收入;而建筑学自身的诉求,是文化传承与村落激活,几者缺一不可,建筑师作为一个调解者,需要做的则是兼顾各方利益,实现共同目标。
▽ 技术图纸
![]()
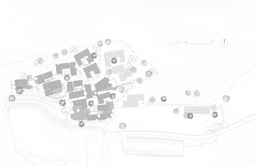
△ 总平面图
![]()
△ 二号院子平面图
![]()
△ 三号院子平面图
![]()
△ 四号院子平面图
![]()
△ 五号院子平面图(290.500标高)
![]()
△ 五号院子平面图(293.600标高)
![]()
△ 七号院子平面图
![]()
△ 八号院子平面图
![]()
△ 九号院子平面图
![]()
△ 十号院子平面图
![]()
△ 十一号院子平面图(297.400标高)
![]()
△ 十一号院子平面图(293.800标高)
![]()
△ 十号、十一号院子剖面图
![]()
△ 十二号院子一层平面图
项目名称:泰安东西门村活化更新
项目地点:山东,泰安
建筑/室内/景观设计:gad · line+ studio
主持建筑师/项目主创:孟凡浩
专业负责:陶涛(建筑)、祝骏(室内)、李上阳(景观)
设计团队:胥昊、黄广伟、袁栋、李三见、谢宇庭、郝军、徐天驹、邓皓、张思思、邱丽珉、金剑波、池晓媚
软装陈设:杨钧设计事务所
建筑面积:2216 ㎡
设计时间:2019/3-2019/8
竣工时间:2019/8-2020/9
业主:鲁商朴宿(泰安)文化旅游发展有限公司
结构:钢结构
撰文:孟凡浩、陶涛、付钰
摄影:章鱼见筑、潘杰
![]()