光影自在
光影自在,最恒久的
Light and shadow are eternal ornaments
白色之‘白’绝不仅是它自身,它总是随着光线和天空、云层与日月等变化着的事物而改变。……‘白’是锐化感知、强化视觉形式力量的一种方式。
”
—— 理查德 · 迈耶
在一白一黑间,是精确的秩序、严谨的模数对位,威星智能总部给人以素雅简洁的初印象。我们无法找到黑白灰以外的色彩,但威星智能总部深沉含蓄的迷人之处恰巧于此。光影能以它最自在的方式在其中自由来去,于是我们捕捉了这座建筑中最恒久的诗扉。
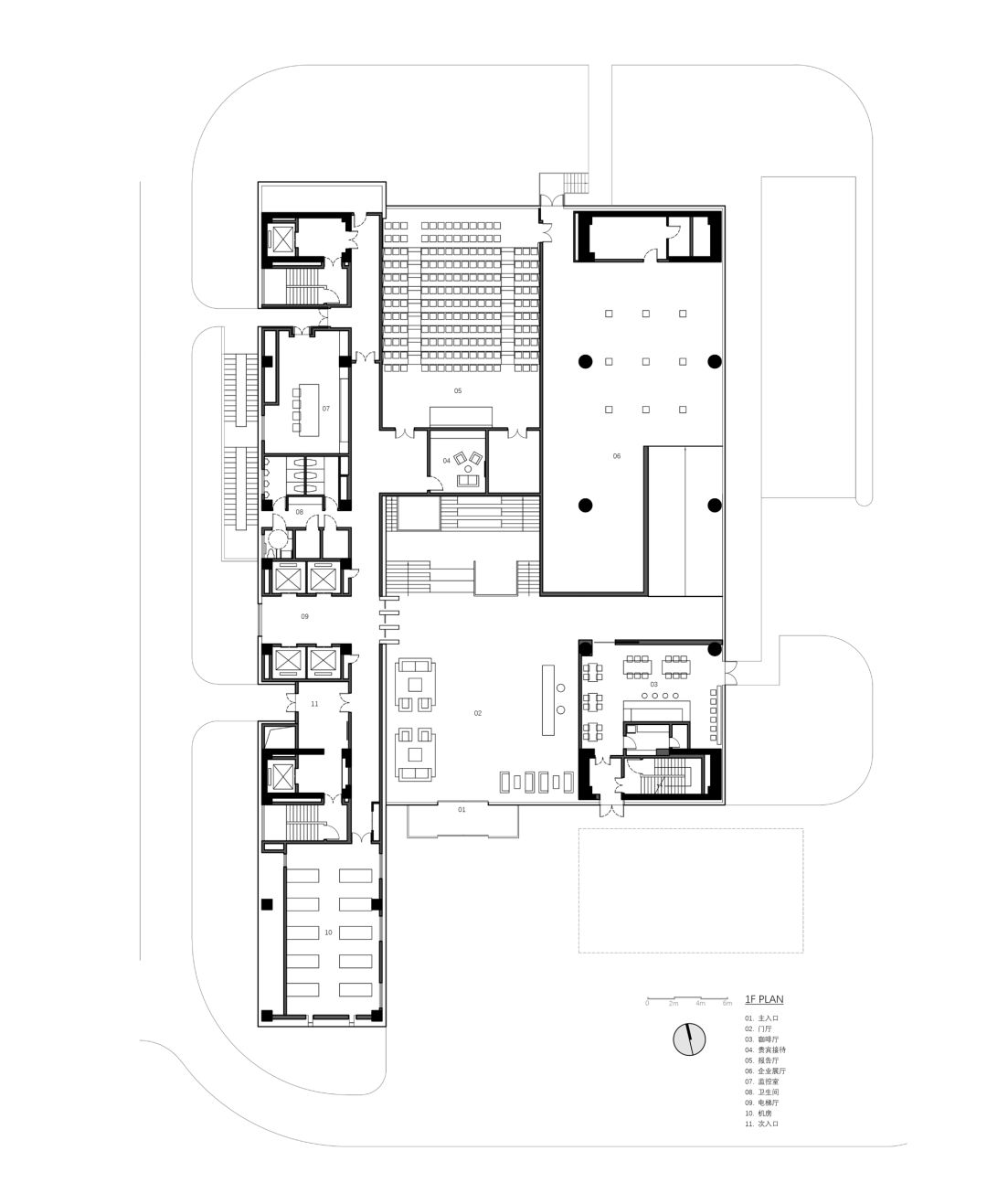
当你由主入口步入门厅,左右两侧中庭界面在深浅的对比中静谧流淌,在一明一暗间,接待、前台、展示依次徐徐展开。
入户即见的中央大台阶,由入口跨越两层与其后的连廊相接,似“瀑布”随光影倾泻而下。由阳极氧化铝包裹的展示台与休憩座椅错落跳跃于“光影瀑布”之上,邀往来者休憩闲坐、漫步拾级。
在灵动的节奏变化间,大台阶由此成为集企业展示、员工交流等复合功能一体的多变空间,展现企业对员工及来访者的欢迎与拥抱姿态。
办公空间和辅助功能分离的策略在建筑形式上外化为两个独立的体块。对于由两个体块分离所形成的中庭,我们并非常规地以其自身的中心性为设计出发点,而是将体块形成的虚实关系在中庭内如实呈现。
中庭西侧直接采用辅助功能体块的外立面材料,深色穿孔板由幕墙单位统一深化落地,最大程度突出该功能块的体量感和整体性。
东侧水平向的连续超白玻沿用了外立面的单元式幕墙,加强了办公空间与中庭的联系,实体部分采用混凝土漆面,保有空间的简洁性。内外材质延续性,虚实材质的对比,同时强调出办公空间侧的秩序感。
东侧的玻璃小盒子,在纵向上延续着台阶体块的错落感,在横向上将办公空间向中庭延伸,为员工营造了一个视野相对开阔的交流小空间,也让不期而遇的惬意交流得以在此发生。玻璃小盒子同样采用了透亮的超白玻璃与混凝土漆面,与办公侧的虚实秩序相衔接。
透亮的小盒子与西侧辅助功能体块的开口相对,让中庭在严谨的秩序中,形成了错落有致的生动韵律。
在黑白两色的对比间,建筑设计的分离策略在室内空间得到了强化。外部的深浅对比在内部空间自然延续,中庭在内外之间的边界由此模糊。当日光洒下,光在室内的痕迹亦模糊了内外边界。内即是外,外不止于外。
Define a new definition
我们将办公建筑看作混合组织,办公建筑不再是单纯的工作场所,从工作模式延伸出来更多的行为需求,也催生办公空间要容纳更多元丰富的工作场景。
在此混合的组织内,为规避未来需求变更致使空间反复调整而带来的不便,我们将辅助功能剥离至西侧体量,形成连续一体不加分隔的大办公区来应对未来划分的不确定性。我们不定义空间,由使用者定义。
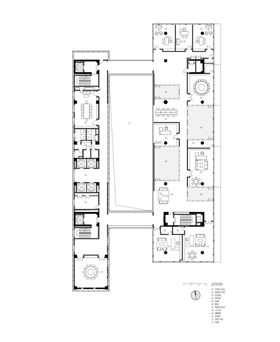
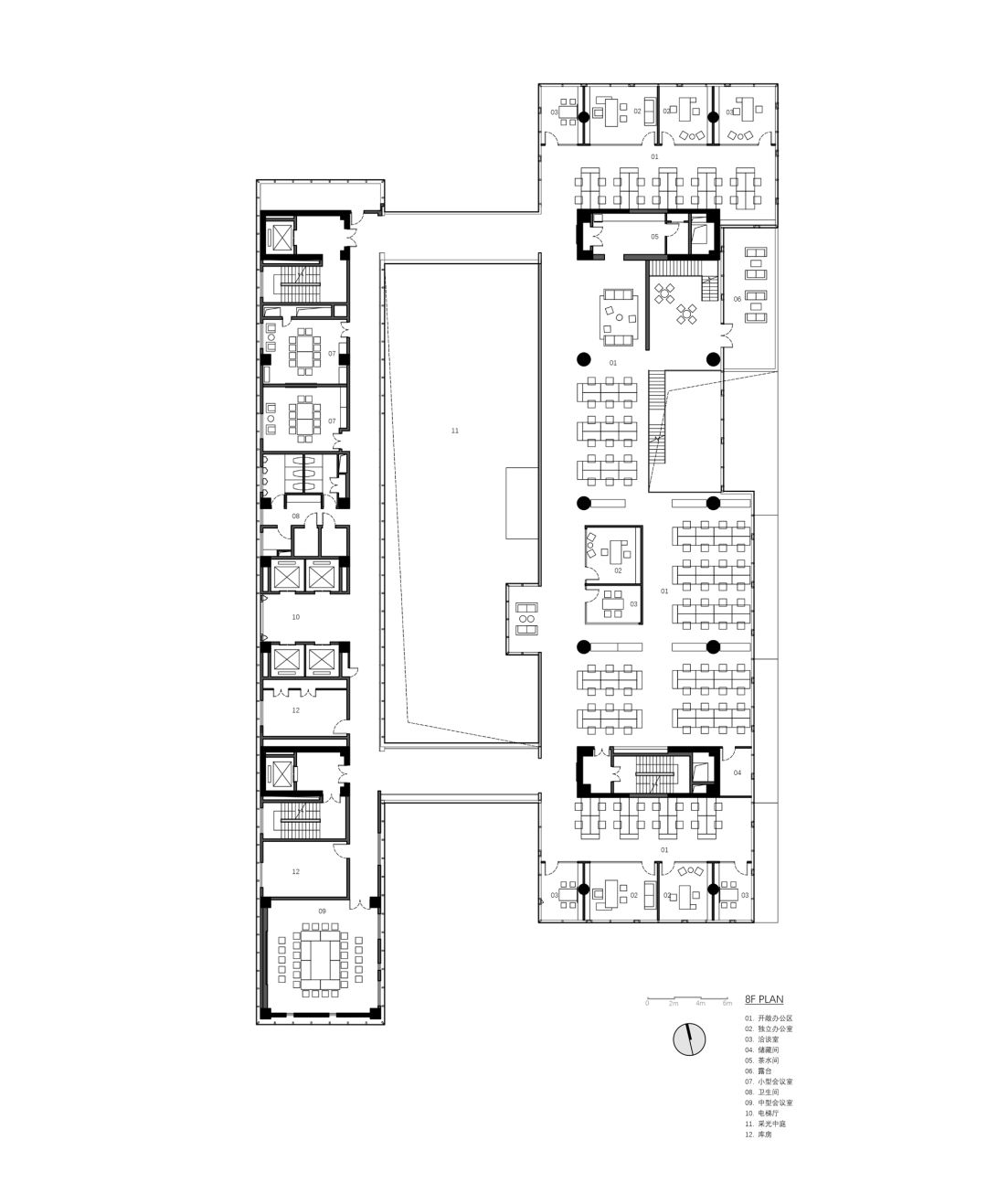
办公空间3至11层都采用“大比例开敞办公”与“小比例独立办公”的模式。我们将独立办公及会议室设置在南北两端,保证中部开敞区域的完整性,以适应未来灵活多变的需求。
模数的应用是设计最终品质的保证。我们将单元式幕墙的水平向距离作为标准办公层内部空间的基本模数:天花板金属拉伸网板的板幅及独立办公的开间划分皆以此为准则。既保证内外空间品质,也利于在后期使用中调整。
连廊作为连接黑白两个体块的纽带位于中庭的南北两侧,这是员工在日常工作中穿梭频率最高的交通空间。浅色的PVC地面结合两侧通透的界面,让行人可以在穿行时浸润在中庭阳光和外部景观中。透过灵透的玻璃,借景远观,驻足停留,感中庭之阔。此时建筑中的人亦是建筑外之景:你站在桥上看风景,看风景的人在楼上看你。
我们用最原始的光影来装饰西侧辅助空间内的走道,光影源于建筑本身,无需刻意塑造。中庭的阳光透过西侧的黑色金属面,将单元式幕墙的序列感由立面转译至地面。穿孔铝板的细节则装饰了墙面和地面的斑驳表情。
位于顶楼的高管层廊道引入户外庭院,微景小庭既是走廊的一道风景,亦是管理者独立办公室的小型后花园。以小景联结远景,值此着眼伏案之事时,也足以心怀繁华旖旎。建筑室内外景观在此融合,内外在此产生互动。
区别于素净的办公空间,管理人员的独立办公室、会议室以及报告厅引入温润的胡桃木与深色木饰面,以雅致的空间氛围延续整体空间的简约风格,拉近与会者的心理沟通距离。
自2021年秋季竣工至今,各部门尚在入驻中。室内设计力图还原本质空间,希望可以激发使用者更自由地迭代出使用端的更新。伴随企业发展,此极简但不失温度与细节的基础空间将在与使用者的不断互动中衍生出其独有的生动色彩,不定义即为定义。
△ 12F Plan