学无止境·马不停蹄
![]()
![]()
现代办公的意义已不在于单一的解决了协同工作的问题,云澜谷项目意如其名,我们希望创造一个与自然与人能交流的空间。无论哪种设计,最后都会回归于人和自然,最初的原点才能让一切事物回归于最好的状态。1974年,列斐伏尔在《空间的生产》(The Production of Space)艺术中提到了一般公众所感受的“可感知的空间”(perceived space)、设计师的“构思空间”(conceived space)和市民的“居住空间”(lived space)。他将空间定义为一种基于价值和社会意义的社会建构。对空间的社会意义的反思深深地影响了办公空间设计原型的演变。尤其是近年来的公司更加强调共享空间、花园办公、休闲配套等空间,来满足当代人们对工作生活弹性、协作、高效的要求。另一方面,年轻一代的工作者对工作区域的休闲需求和精神需求增加,也同样要求设计者通过多种功能和文化元素的植入,展现公共区域的共享精神,空间的社会建构被纳入设计思辨的过程之中。![]()
![]()
![]()
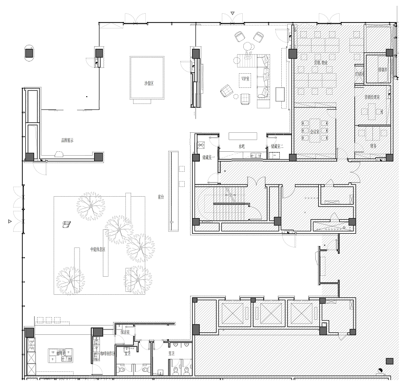
西投绿城·云澜谷商务中心坐落场地东北侧,主入口位于景观视线通廊在最初的思考中,希望找到一种适合现代办公的室内美学风格,或者如何体现现代办公的形态,最终设计师认为设计一个延续自然空间,让静止的庭园成为空间的核心精神依托,在功能之外亦是美学表达的设计思维,打造一片让人在精神上得以休憩之地。![]()
![]()
![]()
![]()
![]()
![]()
![]()
![]()
![]()
![]()
现代办公空间的使用者已经从单纯的工作者、客户,逐步走向多元化。更多的功能模块需要植入到这个空间之中,形成工作、休闲之外的“第三空间”,来回应容纳旧时工作的单一状态。![]()
![]()
![]()
![]()
![]()
![]()
![]()
![]()
![]()
风格,不是形式的,而应是自由的,对内心的自然关照,让人觉得这是一种自然而然的心灵感动。沉寂,远离工作生活的繁杂拥挤,静默体现于日常。简单、不复杂、质朴,体现简约之美。看不见的,隐藏的余辉后是有深度,有想象的空间。![]()
![]()
![]()
![]()
![]()
![]()
设计团队|袁笑雨 武彦 余玉俊 王立诚 朱培琳 李圆圆设计团队|张微 王晓夏 华任杰 孙力 杨雪剑 杨伟勇* 本宣传资料所有文字、数据、图片及所标尺寸等仅为项目及项目销售展示区域设计效果的表达和示意,非本项目交付标准,为要约邀请,不构成要约内容,相关内容不排除因政府相关规划、规定及其他原因而发生变化,一切有关房屋的具体信息以书面合同及政府最终审批文件为准。本资料的发布时间为【2022】年【5】月,有效期【6】个月,本公司保留对本资料修改的权利且不再另行通知。本项目开发商【杭州西投绿深实业有限公司】。最终交付以政府部门核准文件及双方商品房买卖合同约定内容为准。一切未列举事项或更改,不再另行通知。
![]()
WJ STUDIO万境设计注重建筑内、外空间的延续性和创造性思考,从理解建筑、周边环境以及产品核心内容出发,探索空间、人与自然的联结,为使用者创造实用性、互动性、个性化的室内、外空间。
WJ STUDIO万境设计擅于整体性设计服务,运用规划、建筑、景观专业资源和经验,在商业、房产、办公、酒店及特殊探索型项目上具有丰富的实践经验。
作为一个年轻、多元性和创造力的团队,万境设计在创始人胡之乐的带领下,屡次获得国际设计奖项,包括美国Architizer A+奖(2022)、亚太房地产大奖(2022-2023)、巴黎设计大奖(2022)、世界建筑节WAF/世界室内设计节INSIDE(2022、2020-2021、2019、2018、2017)、美国IDA国际设计大奖(2021)、柏林设计奖(2021)、IAI设计奖(2021)、伦敦杰出地产大奖(2020)、德国国家设计奖(2020、2017)、AD100最具影响力设计机构(2019、2017)、标志性设计奖·创新建筑奖(2019)、香港A&D Trophy大奖(2018)、日本优良设计奖(2018)等。
![]()
【首发】矩阵纵横 ……
![]()
【首发】明德设计……
![]()
【首发】诗意空间设计……