© Roland Halbe
在一家专门生产建材的老工厂内,委托方要求为一家名为E2E的新型工业化建筑解决方案公司改造仓库与一系列附属的棚屋。设计旨在回收利用旧仓库并拆除其他小棚架,以增加绿化面积,并在一组现有树木旁设置新的办公室。
© Roland Halbe
© Roland Halbe
© Roland Halbe
建筑通过两层紧凑的体量,实现将自然融入工作空间的目的,设计将其中一处立面完全打开,面向背阴处花园的最大区域。
© Roland Halbe
© Roland Halbe
© Roland Halbe
© Roland Halbe
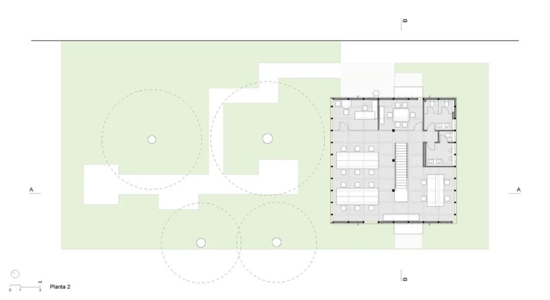
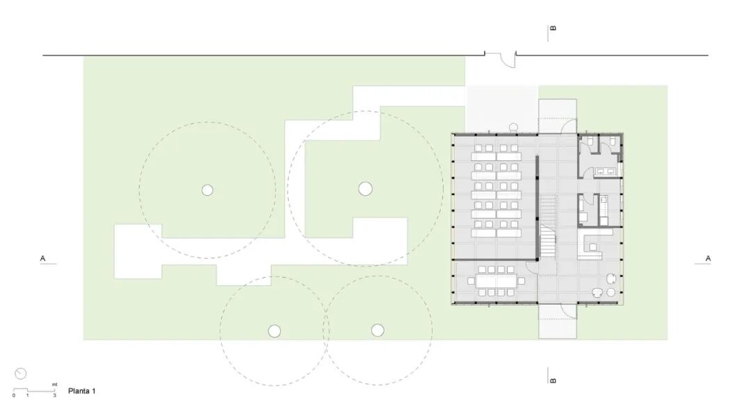
通过一个12 x 12米的正方形平面图,并使用1.2 x 1.5米模数网格,我们发展了一种基于方木与CLT面板的大面积木材结构,该结构位于一系列边缘柱上。该结构系统减少了横梁截面积,并将支撑力与支撑构件集中在边缘上,从而在内部提供了更大、更灵活的空间。
轴测图
© Roland Halbe
© Roland Halbe
© Roland Halbe
© Roland Halbe
整体的木质结构向内呈现,而外部则与玻璃幕墙相结合,并使用木材作为竖框;通风的外立面采用水泥纤维板与服务区域材质相同的格栅。因此,建筑物展现了E2E生产中使用的主要材料,如水泥纤维与木构架。
© Roland Halbe
© Roland Halbe
© Roland Halbe
项目图纸
总平面图
平面图
平面图
立面图
剖面图
细节图
项目信息
建筑师:57STUDIO
地址:Camino a Melipilla 10803, Maipú, Región Metropolitana, 智利
项目年份:2019
摄影师:Roland Halbe
面积:315.0 ㎡
主创建筑师:Maurizio Angelini, Benjamín Oportot
设计团队:Reto Züger, Cristián Alviña, Daniela González
客户:E2E
工程师:Natale Albertani
景观设计:Cristián Eguiguren
编辑:莫因同;译者:马傲雪