© Youngsung Koh
© Youngsung Koh
在一个入春的潮湿雨天后,我们在基地见到了这对年逾五旬的丁克夫妇,这里开阔且温暖,有着怡人的气候及和缓的山丘。他们梦想着能过一种远离城市的田园生活,即便只有不大的空间,也恬静自得。他们希望在庭院边开辟一处种植植物的小花园,喜欢喝咖啡的丈夫想在自家屋檐下品尝滴漏咖啡。
© Youngsung Koh
© Youngsung Koh
“我们想要在家里的任何地方都能看到对方。”
这对夫妇在设计伊始便提出了特殊的要求,即“想要在家里的任何地方都能看到对方”。我认为这是极不寻常的需求,因为我以为他们这样做的目的是为了监视对方。然而随着时间推移,听过他们的故事后,我才知道这只是他们作为丁克夫妇习惯于干什么事都在一起的具体表现。
© Youngsung Koh
© Youngsung Koh
© Youngsung Koh
尔后我意识到他们想要的是反映他们生活方式的空间构造。我再一次感受到设计住宅这件事的迷人之处:相比其他建筑更为精心细致的安排都是因为住宅表达了居者的生活方式。我刻意让住宅拥有没有尖角的顺畅流线,并让房间内充满与庭院一样的温暖阳光。一副意向图在我脑中渐渐清晰:夫妻轻微的话声穿越房间,于房内各处消散。
© Youngsung Koh
© Youngsung Koh
© Youngsung Koh
庭院和室内的有机空间结构
这栋住宅没有明确的房间划分。首层的所有空间秉持有机的形式和结构,并面向庭院开放。庭院是扩展住宅所有功能的底板,亦是住宅向心的指向。厨房-入口-起居室的连贯空间面向庭院开放,因此这些空间都是明亮且温暖的,并从视觉和空间上与庭院紧密交织在一起。
© Youngsung Koh
© Youngsung Koh
© Youngsung Koh
© Youngsung Koh
屋檐出挑1.2m到2m不等,防止夏季日光的过度入射,也使观看雨水从檐下滴落成为一种消遣。需要特别指出的是,考虑到树的位置以及彰显季节变化的需求,建筑师与客户一同挑选了杏树,并置于庭院中心。
© Youngsung Koh
© Youngsung Koh
© Youngsung Koh
通过卧室隐门遇见新的空间
二层是为这对夫妇设置的私密卧室空间。他们于此能看见庭院最美的景致,这与首层的空间印象大相径庭,并为夫妇提供了视觉上的延伸。当坐在高于地平的双人床上时,他们能免受房内物件的干扰,眺望远方。
© Youngsung Koh
© Youngsung Koh
二层采用低山墙屋顶的形式,给这对夫妇一种驻扎于舒适且景色优美的营地的错觉。他们可以通过卧室后的隐门登上铺设甲板的屋顶,屋顶是这栋住宅中最开放的空间,可以欣赏周边的美丽景色。根据可能发生于屋顶平台的部分活动以及不同的使用率,例如园艺和食材晾晒,我们规划了屋顶平台大致的占地面积。
© Youngsung Koh
© Youngsung Koh
即便是在夜晚,内部庭院也能保护隐私
此住宅周边环绕着不同式样和空间结构的普通乡村住宅。相比较平素的北楼南院,这栋住宅被围墙和直径60mm的烤制竹子环绕,这些产自Damyang的竹子环绕了整个场地。有别于南向采光,整个室内空间环绕庭院,使得同样的阳光可以射入室内空间。
© Youngsung Koh
© Youngsung Koh
此外,二层的视线被悉数引导向斑斓的景观。这对夫妇可以通过内化的庭院安全地同他们的家人和宾客享受室外空间,而不受他人的干扰,他们甚至不用合上百叶或拉上窗帘。另一方面,当竹制隔断被打开时,庭院成为了与村子沟通的通道。使用附近地区易获得的天然材料竹子构建立面也使住宅无缝融入了周边环境。
© Youngsung Koh
© Youngsung Koh
某天下午,当我们征得户主同意拍摄项目的照片时,户主安静地坐在床上凝视远方的景色。片刻后,他说:“我太喜欢这处空间了。”这句话瞬间解开了我心中的郁结,作为建筑师的我感觉得到了最棒的奖赏。
© Youngsung Koh
© Youngsung Koh
© Youngsung Koh
项目图纸
总平面图
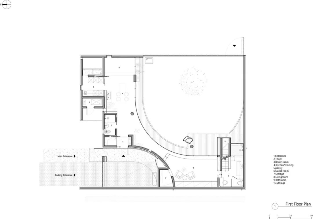
首层平面图
二层平面图
屋顶平面图
正立面图
左立面图
背立面图
右立面图
剖面图
剖面图
剖面图
剖面图
剖面图
剖面图
剖面图
剖面图
项目信息
建筑师:Formative Architects
地址:Muchang-ri, Okgwa-myeon, Gokseong-gun, Jeollanam-do, 韩国
项目年份:2020
摄影师:Youngsung Koh
建筑面积:131.0 ㎡
主创建筑师:Sungbeom Lee, Youngsung Koh
设计团队:Sujeong Han
结构工程师:Teo Structure
工程师:GM EMC
景观设计:Gardendam
编辑:莫因同;译者:Haoyuan Du
*本文由设计团队投稿,标题及板式由编辑编排
转载或任何形式的引用请联系设计团队
点亮“在看”和“点赞”,
将创意灵感放在第一位👇