© Quang Dam
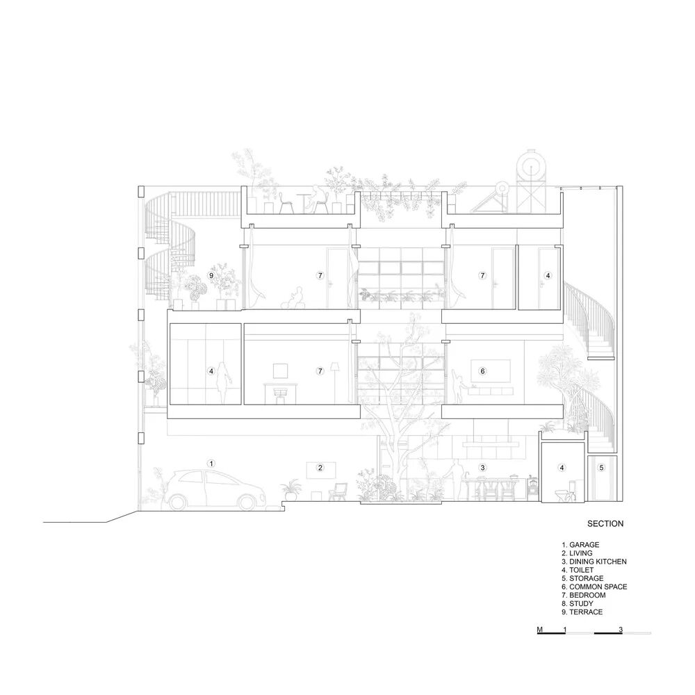
这块土地的面积为 4 米×17 米。住宅有三楼。一楼有车库、起居室、厨房和餐厅;二楼和三楼有卧室和公共休息室。
© Quang Dam
© rear studio
© Quang Dam
© Quang Dam
© Quang Dam
© Quang Dam
© Quang Dam
© Quang Dam
这些功能空间与挑高空间交错,创造了横向和纵向的联系。
轴测图
© Quang Dam
© Quang Dam
© Quang Dam
© Quang Dam
穹顶型结构是该建筑的特点。通过这种结构,我们希望能尽可能地创造原始的空间,以获得安静的氛围,并为居住在其中的人们感受到‘厚实’的感觉。
© Quang Dam
© Quang Dam
© Quang Dam
项目图纸
平面图
剖面图
模型
项目信息
建筑设计:rear studio
地址:Ho Chi Minh City, 越南
项目年份:2021
建筑面积:204 平方米
设计团队:Ho Quoc Dan, Nguyen Anh Viet, Lu Nguyen Y Xuan
摄影师:Quang Dam
责编:韩双羽;编辑:邵珠琦;译者:张馨予
*本文内容来自建筑事务所
翻译、标题及版式由 ArchDaily 整理
转载或任何形式的引用请联系 ArchDaily
点亮“在看”和“点赞”,
将创意灵感放在第一位👇