© Arash Akhtaran
Dasht-e-Chehel 别墅是一栋可以在寒冷气候中给人“内外兼修”的空间体验的建筑,它的设计主旨是为人们在风雪大雨中提供一处庇护所,并帮助人们“远离”建筑。这栋别墅设计的一大挑战在于如何让人们身处内部的同时,不失去与外界连接的感官、视线和心理联系。因此,建筑需要模糊内外界限,并有着极大的自由度。
© Arash Akhtaran
© Arash Akhtaran
© Arash Akhtaran
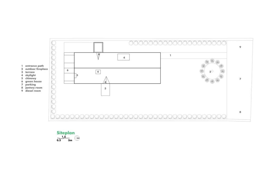
场地长约 50 米、宽约 20 米,因此在设计之初时,建筑师决定将别墅沿场地北侧长边设计,以此让人们更好地欣赏北面的美景。
© Arash Akhtaran
© Arash Akhtaran
© Arash Akhtaran
© Arash Akhtaran
© Arash Akhtaran
© Arash Akhtaran
© Arash Akhtaran
© Arash Akhtaran
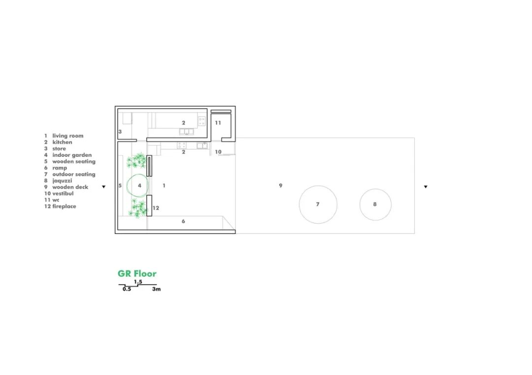
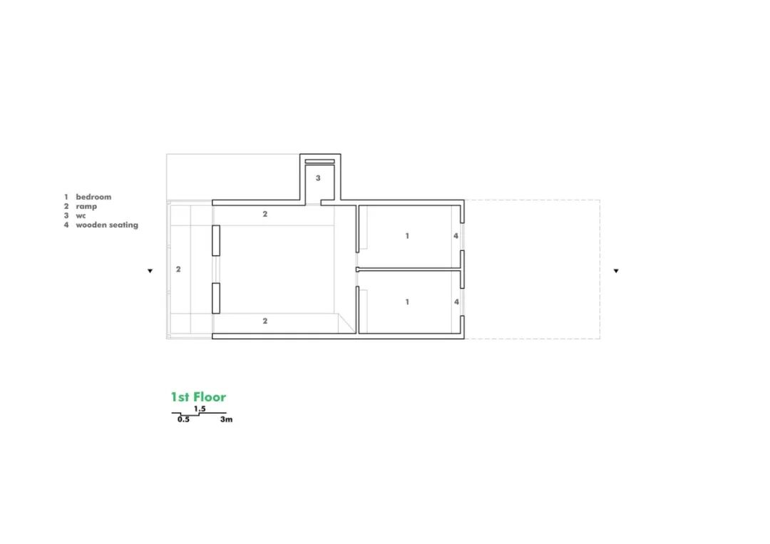
建筑师将最初的基本体块沿立面对角线切割,由此将朝北的视野引入建筑核心区域,同时为其打造了一个面向庭院的户外有屋顶空间,从而让住户在享受院落时可以免受正午直射阳光的酷热,同时还可以亲身体验到雪和雨的酣畅。另外,居住者在寒冷些的季节不会被限制在房屋的界限内,而是可以享受更大范围的院子。
© Arash Akhtaran
© Arash Akhtaran
© Arash Akhtaran
© Arash Akhtaran
© Arash Akhtaran
此外,建筑物南侧有着一个“玻璃室”,其后方则是厚实的石制集热墙。因此,温室和集热墙可以储存白天日照下的热能,并在夜晚运用这些收集到的可持续能源。
© Arash Akhtaran
© Arash Akhtaran
© Arash Akhtaran
设计的最后一步则是将场地水平和垂直方向的通道打造为坡道,从而避免扁平化或台阶化斜坡场地。坡道的设置也为整个建筑提供了更顺畅、更舒适的动线,同时也增强了空间使用的自由感。
© Arash Akhtaran
项目图纸
场地平面图
一层平面图
二层平面图
首层平面图
剖面图
项目信息
建筑设计:35-51 ARCHITECTURE Office
地址:莫沙,德黑兰省,伊朗
项目年份:2019
建筑面积:440 平方米
主创建筑师:Hamid Abbasloo , Abbas Yaghooti , Neda AdibanRad
建筑师:Mohammad Reza Aghaie
摄影师:Arash Akhtaran
责编:韩双羽;编辑:邵珠琦;译者:黄菁菲
*本文内容来自建筑事务所
翻译、标题及版式由 ArchDaily 整理
转载或任何形式的引用请联系 ArchDaily
点亮“在看”和“点赞”,
将创意灵感放在第一位👇