NO°
/1
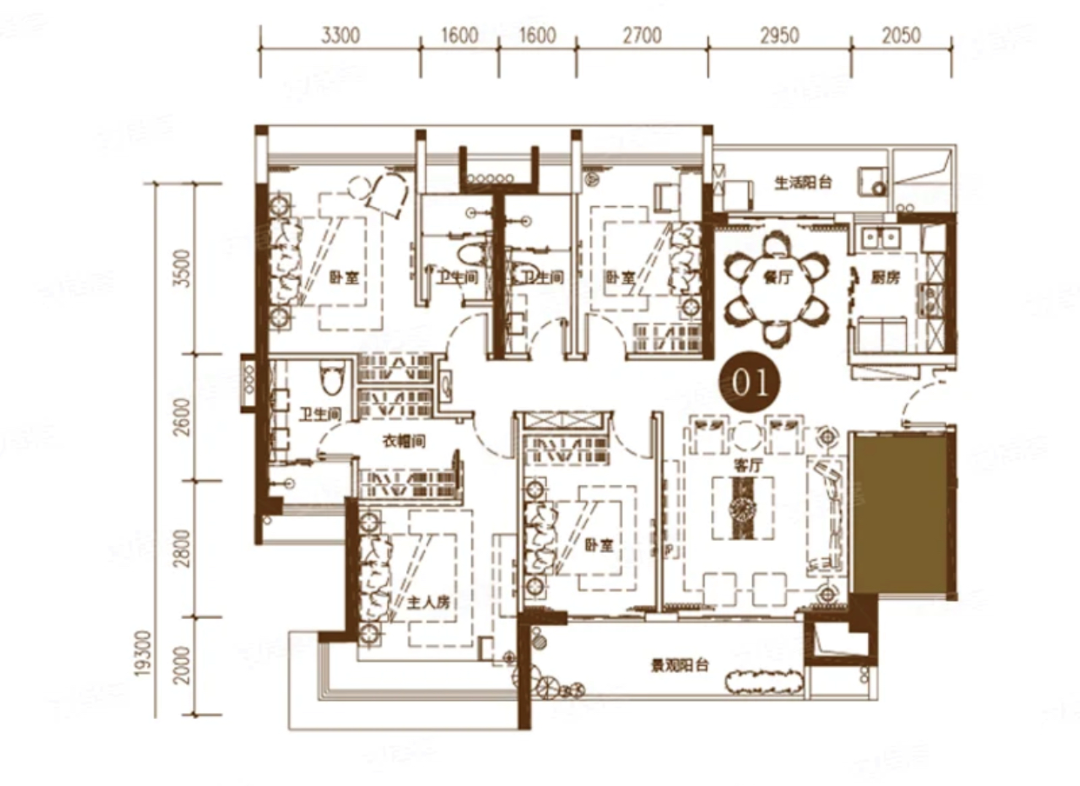
A盘,约85㎡三房两卫
90㎡以下面积段的“尖子生”
去年百平以内的小户型市场,竞争十分激烈。中小户型基本是各盘的标配,这意味着小面积神户型的选择就更加苛刻。
因此,三房一卫、两房两卫等常规设计早已入不了买房者的法眼,而去年一款三房两卫、主卧还是套间的户型横空出世。
A盘约85㎡,就是是楼市少有一款,在小面积里做出惊喜的户型。
在日常生活的模拟上,户型设计还综合考虑到了诸多动线场景。
比如,玄关、换鞋处,兼顾入户与进厨房动线;又比如,公共卫浴洗手台位置,同时也是进入卧室的动线,最大程度的节省掉过道浪费。
当然,A盘的神户型不只是85㎡,诸如87㎡和93㎡,就有专梯入户、大面宽短进深等优点。
对于该盘的神户型,有人认为85平三房已经完美,也有人觉得93㎡四房更加出色,你怎么看?
NO°
/2
B盘,约89㎡四房两卫双阳台
“四房”小户型,有限空间无限可能
除了A盘外,去年还有个新盘在小户型上足够亮眼。
它就是位于东区的B盘约89㎡3+1房。
通常,这个面积段里,能称之为神户型,无非是利用率较高,做到三房两卫已经相当不错。
| 约89㎡4房户型图
但B盘的约89㎡户型,不但做到四房两卫,还有市面罕见的小户型南北双阳台,且带一个多功能房。
当然也有人吐槽该盘非知名开发商、体量较小。但东区毛坯1.7万/㎡的均价,还能把刚需户型做到四房两卫双阳台,确实罕见。
NO°
/3
C盘,约115㎡四房两卫
五开间朝南+6.5米大阳台,堪比复式
说完小户型,再来看看改善户型。
市面上的四房,有部分算是“假四房”,小房间基本住不了人,做杂物间使用感觉可惜,用来住人又过于局促。
| 约115㎡创意样板空间展示
C盘这款115㎡四房,亮点之一,当属四个房间空间的恰到好处。
4个房间,大小均好,即便是最小的房间,都可以摆放床、书桌、衣柜三件套,不仅“住得上”,还“住得好”。
除此之外,让房叔心动的点还有三个。
其一,户型设计灵活,不喜欢阳台连通次卧,甚至可以做成大横厅;
其二,开间约6.5米的大阳台,长辈的品茗空间,孩子的玩乐区,可以轻松兼容。
| 约115㎡户型图
其三,户型做到五开间朝南,南北通透,通风采光俱佳。
NO°
/4
D盘,约128㎡3+2房两卫
超100%实用率,赠送空间约34㎡
D盘约128㎡做到了3+2房两卫。户型内飘窗、平台全赠送,阳台赠送一半。
在空间布局上,入户花园、平台可改成大五房;7米大阳台,横跨客厅和客卧,这些设计非豪宅不能拥有。
| 约128㎡3+2房户型图
NO°
/5
E盘,约104㎡四房三卫
中山少有的咬合复式
| 约104㎡4房户型图
104㎡复式四房三卫,通过咬合式的设计,观感上让空间尺度更为阔绰,当然使用率也更高,除了符合购房者对得房率的看重外,也可以适当提高溢价。
NO°
/6
F盘,约127㎡四房两卫
楼王与王牌户型相结合
| 约127㎡4房户型图
2020年,F盘在火炬中心区杀出,直到现在还是板块内最贵的新盘。
它有着望湖景的优势、火炬政商中心的地段和高配的精装品牌,以及一个个出彩的户型。
该盘的王牌户型127㎡出现在望湖2栋楼王上,价值更是拉高了一个层次。
四开间朝南,餐客厅、次卧和主卧套房一字排开,做到完美的动静分区。进门处还带入户花园,可被设计为房间使用。
另外,南向超大的景观阳台,配合湖景,有着不俗的居住体验。
NO°
/7
G盘,约425㎡五房六卫全套间
室内无承重墙,可灵活打造
五房六卫全套间设计,就连保姆间都带独立卫生间,干湿动静分离,主佣互不干扰。
四个阳台位居主卧、客厅、厨房和客卧中,其中主阳台面宽高达约26米,中山城区景观尽收眼底,堪称完美的取景框。
仅客餐厅面积就超100㎡,相当于一套3房的总面积,而约90㎡的主卧套间,仅一个衣帽间的面积就堪比一间卧室。
NO°
/8
H盘,约535㎡大平层
一层一户,光玄关就有一个主卧大
| 约535㎡户型图
接下来是中山豪宅的代表作。
一层一户,两梯一户,每户配备空中私家泳池,每个关键词都彰显奢华,说是中山最出色的豪宅都不过分。
景观方面,两个 4.1米270°主卧转角飘窗+ 两个14.4米超长景观阳台+7.9米私家泳池。搭配窗外的园林景观,简直不要太惬意。
值得一提的是,这种产品仅有7套,可谓是卖一套少一套。
NO°
/9
I盘,153㎡四房三卫
超15米景观面,俯瞰湖山高尔夫
| 约153㎡4房户型图
作为中山楼价的天花板之一,I盘在户型上也是下足功夫,此次房叔列出的这款153㎡户型,可谓是大面宽、短进深的代表作。
户型总体面宽达到14.2米,进深只有10.9米,全屋的采光通透明亮。
三个房间均有观景飘窗,甚至连两个套间的卫生间也做了飘窗,空间利用率较高;尤其是南向长约6.8米的大阳台,能将万亩湖山高尔夫景观尽收眼底。
另外,该盘还有470㎡的联排别墅,打动房叔的点也不少。
| 联排别墅户型图 源:贝壳
其一,算上天台、夹层、负一层,共设计有6层,足够“豪横”,就连工人房都是套间设计,做到互不打扰;
其二,项目创新性采用3个采光井,据说在地下一层,都能看到星空;
其三,南北双入户。主人可由前花园入户,买菜回来的保姆,可以直接从后门直接进入厨房,不必穿厅而入。
NO°
/10
J盘,330㎡四套间联排
核心区中的“稀有物种”
细数目前东区和东区旁的在售项目,楼盘集中为高层洋房,而低密度、带花园或高使用率的产品愈发少见。
毕竟在市中心地段,联排、复式或带花园的住宅,都意味着更高的打造成本。
而此次上榜的J盘,位于火炬邻东区板块,户型更是市中心少见的前后双花园联排。
| 约330㎡联排户型图
乍看之下,只是一款普通的联排,只不过是尺寸舒适些,面宽做到7米,进深16米。
细看之下,暗藏玄机。每户门前都有大量绿植覆盖,入户处设置遮挡板,保证私密性。
当然,打动房叔的除了私密性外,还有开发商在户型上的设计。
其一,赠送面积高达200㎡,户型图上灰色部分均为赠送面积,也就是说前后花园、电梯井、采光井等都是赠送空间;
其二,四个卧室均是套间,带衣帽间和独卫,每个卧室带阳台、露台,直接拓展了卧室面积。
其三,采光井可以灵活打造。如果留下采光井,联排里有足足三个庭院;若不需要采光井,作为房间使用,又能空出几个小孩房。
写在最后
房叔视频号上线了
最新资讯、买房知识、美女看房
通通都有
↓ ↓ ↓
(有购房问题可以免费咨询!)