在房价日益飙升的时候,小户型以低总价,成为刚需一族的首选,直接为他们减轻不少上车压力。
可是以往80㎡两房、110㎡三房又不能满足家庭的需要。
为此,房叔统计了中山在售住宅的小户型(≤80㎡三房和≤110㎡四房),我们一起来看看。
80㎡以下(包括80㎡)做到三房,每一寸空间都被运用到极致,实用率相当高,加上超低的门槛,是投资客必看房型。房叔粗略估算,市面上≤80㎡的三房户型至少有14个。
区域
| 项目
| 三房最小户型
| 价格
|
马鞍岛
| 中山粤海城
| 78㎡
| 2.6-3万/㎡ |
马鞍岛
| 招商臻湾府
| 79㎡
| 2.9-3万/㎡ |
马鞍岛
| 万科西海岸
| 79㎡
| /
|
民众街道
| 融创深悦府
| 75㎡
| /
|
民众街道
| 万科城市之光
| 79㎡
| 11999元/㎡起 |
民众街道
| 远洋山水
| 77㎡
| 1.45-1.55万/㎡ |
南头
| 长虹华悦府 | 75㎡
| 0.85-0.95万/㎡ |
南头
| 中山星河盛世
| 79㎡
| 1.4万/㎡ |
西区
| 中南时方境
| 76㎡
| 1.2万/㎡ |
西区
| 越秀天樾湾
| 80㎡
| 1.8-1.9万/㎡ |
神湾
| 远洋繁花里
| 76㎡
| 0.95-1.2万/㎡ |
沙溪
| 雅居乐华盈尚雅轩 | 77㎡、80㎡
| 1.1-1.2万/㎡ |
东区
| 天丰御品
| 79㎡
| 1.8万/㎡ |
东升
| 信业尚上名筑
| 80㎡
| 0.8-1.05万/㎡ |
市面上,80㎡以下三房的户型有很多,但是80㎡以下除了三房,还可望江海的户型屈指可数。其中,中山粤海城78㎡户型就可以做到。该项目全部户型都做了调整,通过点式排布,错位观海的设计,实现每一栋,每一户均可望江海。
![]()
| 中山粤海城78㎡三房
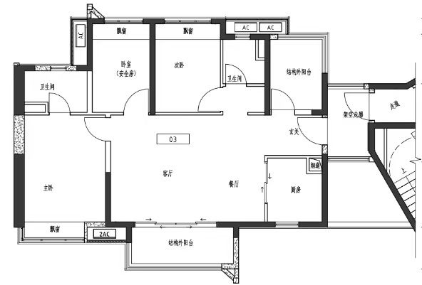
然后是招商臻湾府79㎡三房,难得的南向设计,主次卧均带全景飘窗,玄关的内嵌式收纳柜,最大程度上保留了玄关位置面积,同时,也方便业主收纳生活小物品。
![]()
| 招商臻湾府79㎡三房
最后是万科西海岸79㎡三房,东南朝向,U型厨房,交标是方太(燃气灶、抽油烟机)和摩恩(橱柜)。
![]()
| 万科西海岸79㎡三房
其次,是目前在售面积最小的三房户型——融创深悦府75㎡户型,位于民众快线旁。
75㎡三房(其中一房为阳台改造),还是三开间朝南,搭配“U”型厨房,卫生间干湿三分离。最亮眼的是主卧双飘窗设计,南北对流。
![]()
| 融创深悦府75㎡三房
还有南头的长虹华悦府75㎡户型,也是目前在售最小的三房户型。75㎡三房,竟然是两梯三户,这可以说是“豪宅”的标配。
![]()
| 长虹华悦府75㎡三房
西区的中南时方境,约76㎡三房户型,不仅做到了餐客厅南北对流、动静分区,还做到了主卧带270°转角大飘窗。
![]()
| 中南时方境76㎡三房
神湾的远洋繁花里76㎡与民众的远洋山水77㎡,小三房户型布局相似,卧室分布在餐客厅两边。
![]()
| 远洋繁花里76㎡三房
![]()
| 远洋山水77㎡三房
位于沙溪的雅居乐华盈尚雅轩,简直就是刚需盘中的战斗机。
约77㎡三房做到双阳台,双卫生间(主卧有赠送面积,可改造成卫生间),四开间朝南,动静分区,且主卧带全景飘窗和南向的L型飘窗。
![]()
| 雅居乐华盈尚雅轩77㎡三房
当然,该项目还有约80㎡三房,与上一户型互为镜像,但主卧少了南向的L型飘窗。但有一点缺陷,由于阳台朝北望制衣厂,低楼层的景观有所影响。
![]()
| 雅居乐华盈尚雅轩80㎡三房
同样是双阳台,天丰御品79㎡三房,为东区住宅上车门槛最低,首付约43万。
![]()
| 天丰御品79㎡三房
民众的万科城市之光也很极致,79㎡三房,主卧搭配270°观景大飘窗。更绝的是,两个次卧均采用270°大转角全景飘窗,三个房间的景观面跟上百平的大户型能有一拼。砍掉过道打造成洗漱区,实现卫生间干湿分离的同时,进一步减少了面积浪费。
![]()
| 万科城市之光79㎡三房
而南头的中山星河盛世79㎡三房,南向的景观阳台,还有超越市场标准的精装交付。
![]()
| 中山星河盛世79㎡三房
当然,小三房也有横厅设计。如小榄镇东升片的信业尚上名筑,80㎡三房,阳台连通餐客厅,保障了采光。
![]()
| 信业尚上名筑80㎡三房
同样是横厅设计,同样是80㎡三房,西区的越秀天樾湾竟送超22㎡面积。全屋入户花园、景观阳台、创意空间送一半面积,7个全景飘窗全送,产品力完全不输100平。最重要的是,该户型还带入户花园,餐厅、主卧有南北飘窗对流。
![]()
| 越秀天樾湾约80㎡户型
进入三胎时代,三房已经满足不了居住需求,大户型的四房预算又不够,由此紧凑小四房应运而生。
据房叔粗略统计,≤110㎡四房的户型有24盘满足。
| 区域 | 楼盘 | 四房最小户型 | 价格 |
| 东区 | 天丰御品园 | 109㎡ | 1.8万/㎡ |
| 东区 | 保利天珺 | 105㎡ | / |
| 西区 | 中南时方境 | 96㎡、106㎡ | 吹风1.3万/㎡ |
| 石岐区 | 润达幸福汇 | 95㎡ | 1.7-1.8万/㎡ |
| 西区 | 美林假日 | 104㎡ | 1.28万/㎡ |
| 西区 | 越秀天樾湾 | 93㎡、105㎡ | 1.8-1.9万/㎡ |
| 西区 | 宝嘉誉峰 | 100㎡ | 1.65万/㎡ |
| 西区 | 棕榈彩虹 | 108㎡ | 1.7-1.9万/㎡ |
| 西区 | 花海湾 | 90㎡ | 1.5-1.75万/㎡ |
| 西区 | 骏珑汇景湾 | 103㎡、106㎡ | 1.6万/㎡ |
| 南区 | 海伦堡玖悦云府 | 110㎡ | 备案1.5-1.7万/㎡ |
| 南区 | 懿臻山 | 107㎡ | 1.75-2.4万/㎡ |
| 马鞍岛 | 保利天汇 | 102㎡、104㎡ | 2.7-3.2万/㎡ |
| 马鞍岛 | 保利天汇左岸 | 106㎡ | 2.6-3万/㎡ |
| 马鞍岛 | 招商臻湾府 | 105㎡ | 2.9-3万/㎡ |
| 五桂山 | 万科四季花城 | 106㎡ | 11999元/㎡起 |
| 神湾 | 龙光玖誉山 | 108㎡ | 0.98-1.05万/㎡ |
| 三乡 | 钰海美筑 | 108㎡ | 1.08-1.1万/㎡ |
| 南头 | 长虹华悦府 | 95㎡ | 0.85-0.95万/㎡ |
| 东升 | 龙光玖誉府 | 108㎡ | 1.1万/㎡ |
| 民众 | 水韵名门 | 107㎡、109㎡ | 1.15万/㎡ |
| 民众 | 万科城市之光 | 109㎡ | 11999元/㎡ |
| 民众 | 融创深悦府 | 105㎡ | / |
| 小榄 | 远洋天成 | 99㎡、108㎡ | 1.3万/㎡起 |
保利天汇全南向板楼,96/97/102/104㎡四房,咬合复式设计,更显整体空间开阔透亮。
(请调整姿势看一下高清户型图)
![]()
![]()
![]()
![]()
位于马鞍岛的第二座保利,除了延续保利的WELL社区主题之外,保利天汇左岸的户型还是更接近生活的平层。![]()
招商臻湾府105㎡3+1户型,整体偏刚改,四开间朝南,餐客厅为横厅布局,朝南出大阳台连通次卧。
![]()
再来看看110㎡以下四房户型中面积最小的西区花海湾。虽说是90㎡做到四房,但从户型图中我们可以看到,两个阳台以及餐厅的面积仅计算了一半面积,且三间卧室里的飘窗不计入总建面。
![]()
| 花海湾约90㎡
另一个西区盘越秀天樾湾,93㎡和105㎡这两个户型同样做到了四房。
与花海湾做法相同,越秀天樾湾这两个户型同样赠送了不少面积。
除此之外,约93㎡户型为横厅设计,主卧还做到双飘窗;约105㎡户型餐客厅南北双阳台,通风对流。
![]()
| 越秀天樾湾约93㎡
![]()
| 越秀天樾湾约105㎡
同样是南北双阳台的户型还有:幸福汇约95㎡、长虹华悦府约95㎡ 、龙光玖誉山约108㎡、钰海美筑约108㎡。
![]()
| 幸福汇约95㎡户型图
![]()
| 长虹华悦府约95㎡户型图
![]()
| 龙光玖誉山约108㎡户型图
![]()
| 钰海美筑约108㎡户型图
虽然没有做到双阳台,但兼顾了南北对流的有:中南时方境约96/106㎡、宝嘉誉峰约100㎡。
其中,中南时方境的两个户型还做到主卧带270°飘窗,而且约106㎡的户型南向阳台连接客厅和次卧。
![]()
| 中南时方境约96㎡户型图
![]()
| 中南时方境约106㎡户型图
![]()
| 宝嘉誉峰约100㎡户型图
东区的保利天珺约105㎡四房,景观阳台约5.7米;民众的融创深悦府约105㎡四房,餐厅位做了飘窗;万科城市之光约109㎡四房,书房带L型飘窗。
![]()
| 保利天珺约105㎡户型图
![]()
| 融创深悦府约105㎡户型图
![]()
远洋天成约99㎡和108㎡户型都是3+1房设计,约108㎡户型要更方正一点。
| 远洋天成约99㎡户型图
![]()
| 远洋天成约108㎡户型图
而西区的骏珑汇景湾约103/106㎡户型,同样做到了四房设计。其中,约103㎡户型还带有双阳台,形成南北对流。
![]()
| 骏珑汇景湾约103㎡户型图
![]()
| 骏珑汇景湾约106㎡户型图
房叔在搜集110㎡以下四房户型时,发现有两个盘的户型相当独特。
西区的美林假日约104㎡和棕榈彩虹约108㎡户型,都是分割主阳台面积,改造成多功能房。
![]()
| 美林假日约104㎡户型图
![]()
| 棕榈彩虹约108㎡户型图
除此之外,万科四季花城约106㎡户型整体来看没什么特别之处,但生活阳台安置在客卫一侧。
![]()
| 万科四季花城约106㎡户型图
除了以上介绍的小四房之外,还有懿臻山约107㎡、水韵名门约107/109㎡、天丰御品约109㎡、海伦堡玖悦云府约110㎡、龙光玖誉府约108㎡户型,房叔在此就不一一详述。
![]()
| 懿臻山约107㎡户型图
![]()
| 水韵名门约107㎡户型图
![]()
| 水韵名门约109㎡户型图
![]()
| 天丰御品约109㎡户型图
![]()
| 海伦堡玖悦云府约110㎡户型图
![]()
| 龙光玖誉府108㎡户型图
最后,楼盘具体信息,以售楼部销售口径为准。由于楼盘较多,且整理不易,难免有楼盘未统计在列,欢迎大家在下方留言和补充。
![]()