供稿:Wutopia Lab
本文已获得授权
51㎡ = 5个人居住 + 1个客房,
建筑师能做到吗?
▍ 最微弱的声音
出于推动我创办的城市微空间复兴计划的缘故,我在微信公众号中答应如果条件合适可以免费为需要的家庭改建他们窘迫的居住环境。于是滇池路100号202室的王小姐通过微博找到了我们。
▼ 滇池路100号202室改造前外观
▼ 总平面图,项目距离外滩仅100米
滇池路100号落成于1908年的维多利亚风格的红砖大楼,1949年前是金融机构办公楼,1949年收归政府后改建成公寓楼,是上海政府认定的优秀历史建筑。建筑外立面还能维持些许当年风光,内部已经破败不堪有如废墟。没有卫生间,堆满杂物,四面漏风,仿佛许久不用的仓库。
▼ 落成于1908年的维多利亚风格的红砖大楼
▼ 改造前项目内部原状
王小姐患有风湿性关节炎,先生也刚刚做好甲状腺癌的手术,但两人都保有积极愉快的态度。他们家并没有购置房产,而是租住在外,这次他们想搬回滇池路,是因为孩子需要就近上幼儿园,他们看到了我的信息,便来求助。
王小姐的故事让我们注意到了这个城市中容易被忽视的阶层。大城市总是聚焦所谓的成功者的生活,或者尽量安抚低收入阶层。王小姐的家庭被看成中产阶级,他们努力地在大都市里挣扎奋斗,羞于展示他们的窘迫,几乎没有人听到他们的呼声。建筑师需要听到他们的声音,应该以建筑作为工具去帮助他们。
▍ 日常的英雄主义
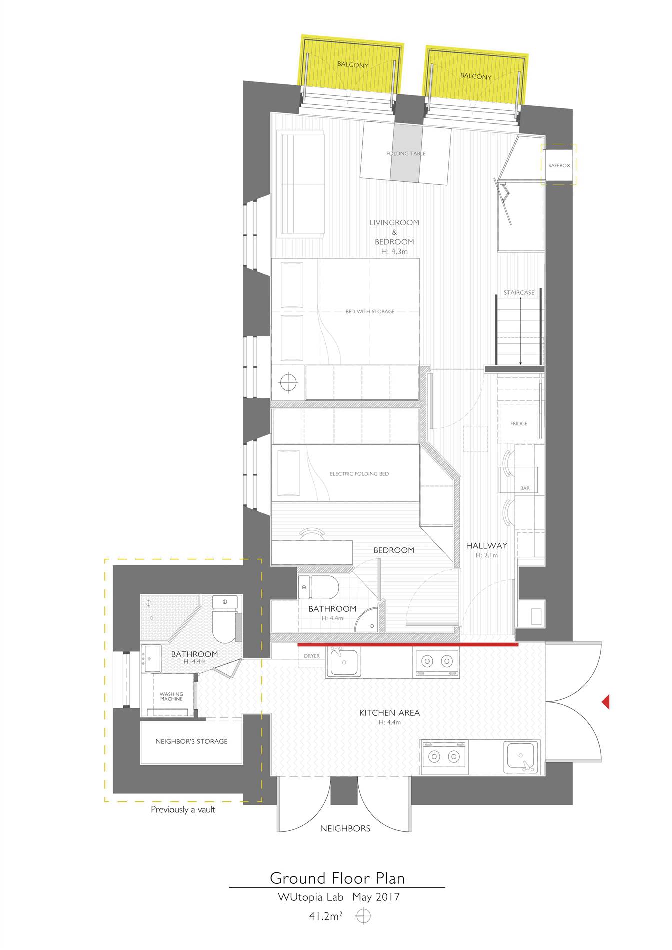
设计本身并不复杂,室内设计也是建筑学试验。我们把室内空间看成两层次,从立面向内第一层次是起居空间,第二层次分成两层,夹层是可以通过推拉门分隔变成卧室和儿童游戏区两个区域,一层分两部分,一是独立房间,装有电动床,合可以为书房,打开就是卧室;二是公共走廊和利用柱子空当形成的公共吧台区。
▼ 项目轴测图(gif)
▼ 入口处公共厨房
▼ 入口处公共厨房及房间入口,红线暗示着背后改建的阁楼轮廓线
▼ 多功能橱柜(gif)
▼ 玄关及吧台区
▼ 项目草图 - 客厅
▼ 客厅回望吧台区
▼ 顶天立地的客厅高柜,解决小户型储物痛点
▼ 客厅全景,兼具主卧及餐厅的功能
▼ 可折叠的餐桌,适应不同人数的用餐需求,也可用作书桌。
▼ 明黄色的雨棚点亮了室内空间
▼ 阳台上安装了伸缩衣架
▼ 通至二层楼梯
▼ 二层空间仿佛一个深入起居室的盒子
▼ 起居室天花板
我把两个层次的这道界面设计成躲在立面背后的第二道立面,充分利用两边四扇拱形门窗形成的通透感,尤其在光照充足的时节,立面的内侧更像外侧,和第二层次的立面让起居室有了一种半公共性。第二层次的空间更像一个深入起居室的盒子,就此我还特地在走廊用红线把这个盒子边缘标识出来,红线同时成为走廊厨房的一个装饰。其实我把202室看成了一个微型城市。
▼ 拱形门窗带来的通透感
▼ 通向二层的楼梯
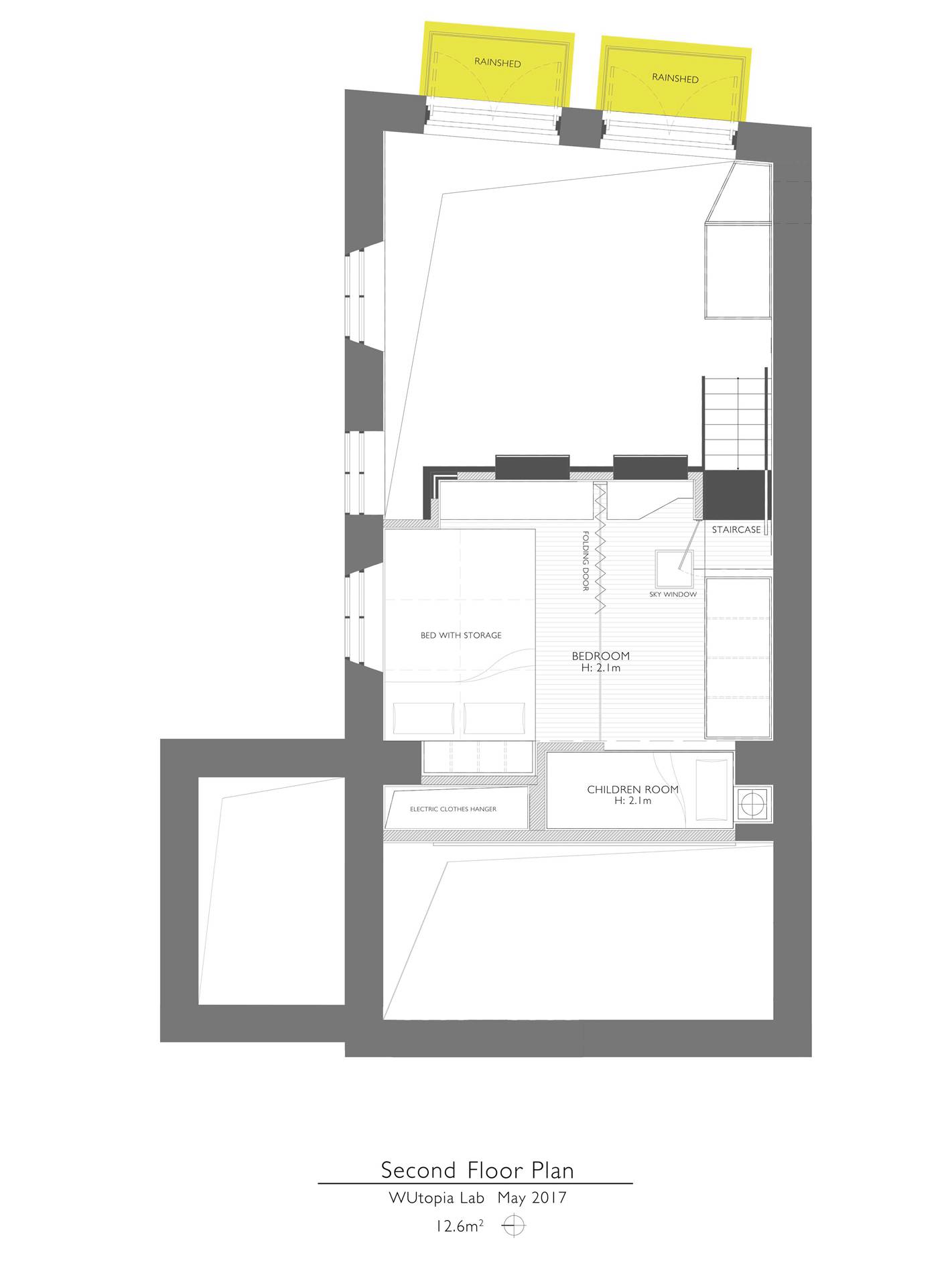
▼ 二层卧室,无法使用的梁下空间变成了儿童的地铺,也可以是儿童的游戏空间(gif)
▼ 镶嵌在地面的小窗,丰富了一二层间的关系
▼ 二层主卧,通过推拉门分隔变成儿童卧室和独立卧室,拉开后两者合为一体(gif)
▼ 被保留的樟木箱,改造成酒柜算是物尽其用
▼ 挑高客厅光线可直接从玻璃进入,提升卧室明亮度。
生活首先是一堆琐事。我们制订了详细的功能清单,并精致地把这些功能收纳到我的微型城市的每个角落,无一处不完备。此外我把原大楼的金库一半改建成卫生间,另一半属于邻居的储藏室。原本作为厨房的走廊重新设计成一个完整的公共厨房,并一并改建了邻居的厨房设施,这个厨房是可以交往的场所。我藏在202室的微型城市更是一种暗示,每个人都可以是自己生活的英雄。
▼ 原大楼金库的一部分改造为卫生间
▼ 小小的三角区域,却安置了马桶、洗衣机和淋浴房
▼ 卫生间兼具了洗衣的功能
▼ 项目一层平面
▼ 项目二层平面
▍ 室内设计必须关照城市空间
由于滇池路100号是保护建筑,这次室内装修是不能改变建筑外立面的。我坚持在临街的拱门上安设了两个明黄色雨篷,并重新制作了门窗。我希望立面的有限微小改动来激活这个衰败的立面。阳光或灯光会通过黄色雨棚反射在拱券上形成金色的光晕,这让改建后的202室在立面上,昭示了新生。尤其在晚上,这金黄色的灯光仿佛荒漠般街道一个温暖人心的象征。
▼ 项目草图 - 外立面
▼ 希望立面的有限微小改动来激活这个衰败的立面
▼ 改造后的滇池路100号202室,金黄色的灯光昭示了它的新生
▼ 项目剖面
▍ 创造新的收入
如果仅仅改善业主的居住环境,这是一个短期的公益,并不能解决业主家庭的经济压力。我在一层设计了一个有独立卫生间的小房间,它可以通过airbnb分享获得额外收入。经过测算,这间屋子可以为业主带来每月1万元的收益。这份额外的收入缓解了业主的经济压力。这样建筑师就可以用设计真正帮到业主。
▼ 用作bnb的次卧入口,门口的电子锁保证了安全和隐私。
▼ 用作bnb的次卧全景
▼ 柜子闭合时,是一个相对完整的空间
▼ 柜子打开,卧床提供了用于bnb分享住宿的可能。
▼ 墙面的彩绘正如滇池路100号外立面的温暖基调
▼ 次卧内含的卫生间,升降的晾衣杆解决了衣服晾晒的问题
▼ 这个狭小的升降空间,是从二层借来的,还做了人造光。
▍ 滇池路100号是城市微空间复兴计划一个新系列的开始
这个改造不是孤例,王海和我决定把这改造发展成一个系列,收集有需求的业主,召集有雄心的年轻建筑师,在我们的统筹和指导下,去改建和复兴那些家庭。滇池路100号便是这个系列的第一号。
▼ 男业主及他的儿子
▍ 什么是城市微空间复兴计划
城市微空间是指城市中被废弃遗忘或者粗暴对待的微小碎片空间,是高架下,是某个被忽视的角落,也可以是日常所见但衰败的垃圾房,候车亭或者废墟,也是因为失修但不得不栖身的居住空间。城市微空间复兴计划由俞挺和戴春发起,以身作则号召建筑师发现身边的负面空间并改造成为积极的正面空间。计划从2015年6月发起,慢慢微更新了上海十几处空间,一部分为公共空间包括废弃的售楼中心,街角公园,废弃的花园等等,一部分为内部空间包括女性bnb,水塔之家和这次的改造。城市微空间复兴计划的初心很简单,通过建筑学实践,让城市变得人人所爱。
▼ 滇池路100号的改造,对于城市来说,也是一次小小的复兴(gif)
▍ 拯救滇池路100号也是拯救我自己
生活并不尽如人意,我有时会沮丧,有时会烦躁,我当然搞砸过许多事。我也没有想到滇池路100号如此小的项目经过了漫长的6个月才落成,我看来挑了一件不容易的事来做,有时想想会怀疑自己。交房的那天,我在楼下看到孩子愉快地在床上蹦跳,我不由得想建筑学真是一件有意义的工作,用设计去作画,去作诗,去歌唱,实现它的过程就是我在拯救自己。
▼ 建筑师俞挺与二更王海在现场
项目信息
项目地址:滇池路100号202室
完成时间:2017.05.17
项目面积:51㎡(包括公用空间11.3㎡)
主持建筑师,项目总策划:
俞挺 WUtopia Lab
项目总策划:
王海 二更视频
◆
项目设计团队
项目建筑师:
WUtopia Lab 孙悟天
WUtopia Lab 蔡承泽
上海华汇建筑设计有限公司 蒋宁博
上海华汇建筑设计有限公司 宫婷钰
WUtopia Lab 潘大力
WUtopia Lab 王思哲
水暖电测绘: 俞晓明
◆
项目策划团队
二更视频, 周文君,乔永志,李婷,冯箐筠
◆
项目摄影团队
CreatAR Images 清筑影像(艾清,毛盈晨);二更视频;红星美凯龙摄影团队
◆
项目施工团队
总施工:陈绍清
家具定制:陆炯
木结构工程师:SKF思卡福木作,胡愚,龚晓丽
墙绘:安娜
◆
赞助商
家具建材赞助商:红星美凯龙
木结构搭建赞助商:SKF思卡福木作,庄晓峻
电动翻床赞助商:上海海维斯五金有限公司,黄静
二更视频
日常的奇迹(上)
那些被城市落下的魔都人
(视频来自:©二更视频)
日常的奇迹(下)
蜗居新生
(视频来自:©二更视频)
彩蛋
▼
地主是谁
(照片由王海拍摄)
建筑师俞挺
建筑师、美食家、作家、业余历史学者、重度魔都热爱症患者、身体力行的都市生活家实践者、兼具高逼格思维与表达的话唠,金陵路梦幻空中别墅“水塔之家”改造者,女性bnb创造者,城市微空间孜孜不倦的强迫症修正师。
俞挺认为建筑应该刺破形式主义的皮囊,坦诚人的七情六欲,并继续深入,刺醒久已沉睡的灵魂。俞挺的建筑,精致的拙朴,是他追求的建筑境界。如果这个世界不够美好,我们就给他创造一个新的世界。
敬请期待
Wutopia Lab的下一个作品
画家之宅
↙点击阅读原文了解更多背景故事