供稿:Wutopia Lab
本文已获得授权
建筑就是一个堡垒,它能在生活不够公平的时候于他人不怀好意的目光下保护你。
▼ 堡垒上的红色灯塔
画家李斌想把我设计的第二画室改成自己的画库和居所。一楼是大小画库,门厅,起居室含餐厅厨房,二楼是男女主人卧室,当中是书房。在建造过程中,希望书房可以兼做佣人卧室,要有朝南的阳台供洗衣晾晒,要用天桥把住所和矶崎新设计的第一画室联系起来。他希望通过第二画室的改建,把第一画室的居住功能置换出来,最后变成李斌的个人美术馆。这就才是画家之宅,他可以在这里战斗,他可以终老于此。
▼ 北立面(原第二画室)
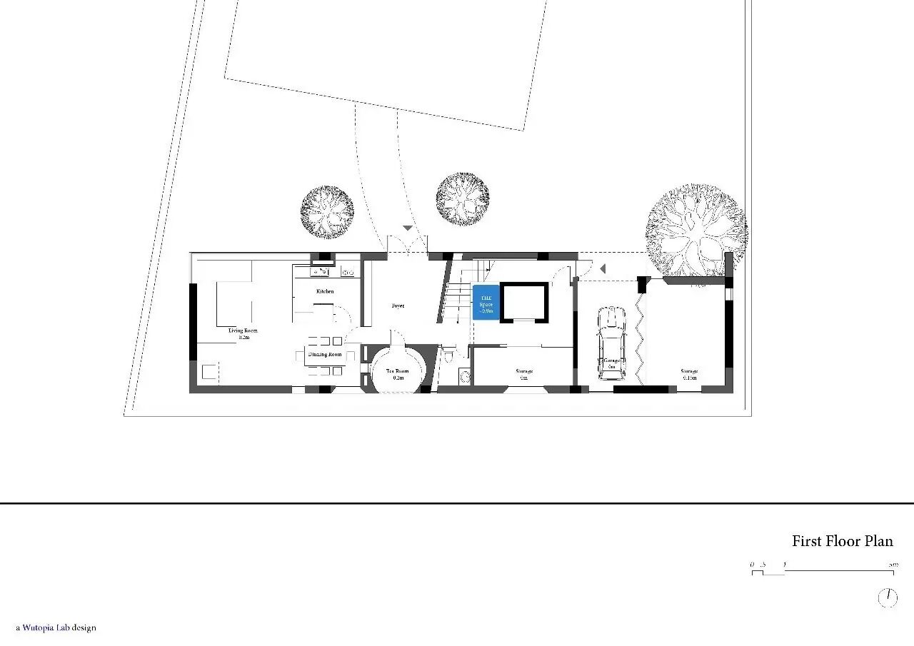
▼ 一层平面
▼ 轴测
▌ 对偶
我坚持在设计中建立一种对偶的关系,我和李斌,矶崎新和我,我的旧作和新作,周边建筑和画家之宅,李斌的画作和居所,所有现在的信息会综合成上句,下句就是我要创作的建筑。上句在形式上的丰富和内容的贫乏,决定了下句在形式上的朴素和内容丰富得以成立。既然画家之宅的邻居们都是财富精英,但朴素的居所反而在财富面前显得从容。李斌外表平静,内心丰富壮阔,这房子就应该是他人生最佳写照。
▼ 基地鸟瞰
▼ 朴素的居所
▌ 节俭持家旧物利用
李斌希望第二画室的窗子包括天窗都可以利用到新建筑上。我立面的原则是按需开窗,窗洞由业主几个建筑废弃的旧窗大小决定,旧窗用完了,就根据需要设计新窗。因此这个立面上的窗分两类,线性窗是新设计的,方窗是旧窗加以利用,所以尺寸各异,仔细看,窗框颜色也有些差别,位置则是根据室内家具按需求确定。就是这些窗子,最后决定了画家之宅的屋顶和立面。画室旧有的各种天窗让画家之宅变成了天光之家,不同尺寸的光线有如瀑布倾泻到室内,强化了室内的内向性气质。
▼ 建筑南立面,大小不一的窗户
▼ 角部的天窗
▼ 各扇天窗让画家之宅变成了天光之家,强化了室内的内向性气质
▌ 我在与骄傲不间断的肉搏中看到了光
李斌质疑过建筑师白色的偏好,他在我设计的第三画室室内使用了灰色作为背景,事后证明很好地烘托了画作。建筑师的确有不少建筑学成见,有时被成为职业骄傲。在新的项目中,我试图和我的骄傲做一下搏斗。
画家之宅外立面上,我选择了一种很少用的精致浅灰,并在涂料未干的时候,用木模根据设计压出肌理,试图表达一种有意克制的情绪。意外的是在日光下,这灰色的房子看上去闪闪发光,尤其下过雨后,比白色的第一画室看上去还要亮。
▼ 外立面的精致浅灰及肌理
▼ 在日光下,这灰色的房子看上去闪闪发光
我觉得李斌就是画家堂吉诃德,我为这样的骑士创作一个堡垒。而起居室则是堡垒的圣殿,李斌在这里沉思,回忆,或者积蓄力量企图再战。我把李斌常用的红色粉刷了起居室。在西南角天花上引入天光,这耀眼的光和红色把起居室变成画家的神圣空间。
▼ 粉刷成红色的起居室
▼ 西南角的天窗引入天光
▼ 耀眼的光和红色把起居室变成画家的神圣空间
▌ 偶然的神圣空间
楼梯和电梯之间形成了一个多余空间,屋顶安装了天窗后就像一口井,这是个多好的冥想空间,我对李斌说你可以画一些壁画,坐井观天。但李斌只刷了一层天蓝色。结果天光把蓝色反射得到处都是,无法回避,于是这个多余空间变成了控制性空间,变成了一个偶发的神圣空间。
▼ 建筑剖面
▼ 楼电梯之间的多余空间
▼ 天光把蓝色反射得到处都是,无法回避
▼ 一个偶发的神圣空间
▼ 坐井观天(视频:尹明摄)
▌ 即兴
画家之宅建造周期很长,画家在监工的过程中会对功能做出调整。一开始他觉得居所要和画室分开,独自一体。后来觉得不方便,就要求架设一座桥,似乎可能会破坏最初设计的完整性,但在不改变已有格局的情况下顺手确定的曲型桥梁却是意外的生动。
南面阳台的立面纹样是李斌自己设计的图章,原来用图案的铁板遮住阳台是处于保证采光同时兼顾视线阻挡和防盗。现在这个图章纹样成为南立面重要的标志。
入口门厅后面藏着个灰空间,原来是设想一个内凹空间作为茶室,现在看来更像是吸烟空间。李斌希望面对一副壁画,临近结束后发现,围墙的斑驳痕迹本身就是一幅画,于是作罢。
▼ 曲型桥梁(苏圣亮摄)
▼ 一层所见曲型桥梁
▼ 被围墙遮挡的南立面
▼ 吸烟空间中所见,围墙的斑驳痕迹本身就是一幅画
庭院里有棵大香樟,所以画家之宅的北面以树干为界。但树冠影响到了二层,我和李斌都不愿意修建树枝来保全建筑气候边界,最后我把这面墙做成了斜墙。为了突出树,作为在树的背景的局部立面改成了钢板。
▼ 从邻居家看到的东立面
▌ 一些意外
由于造价,我们没有选用耐候钢,钢板的锈蚀的过程中一度呈现美丽的金黄色,后来刷上防锈漆后,就变成目前的深咖啡色,这个变化的过程让我意识到建筑就是一个过程,竭力维持建成的初始状态,或许是建筑师的偏见。
在构想红色室内的时候并没有考虑到红色在立面的扩张影响,建成后发现,无色的玻璃被染得分外夺目,立面由此被室内改写了。从衰败的临近会所看过去,西南角的天窗就像是这个堡垒的红色灯塔。
▼ 钢板的锈蚀的过程中一度呈现美丽的金黄色
▌ 容错
由于国内的大多数土建工人的基本学历在初中,读图的基本依赖工头。尤其像画家之宅这类的工程是做不到图纸和建造严丝合缝的。在22年的职业生涯中,我逐步摸索出一套容错的设计策略。节点设计要便于理解和施工,不去纠缠构造,大的策略和效果毫不放松,细部则允许可控的施工错误,在这些错误上重新设计,来刻意暴露这些错误。比如立面避让窗户而折线的落水管,车库里对暖通管线的遮挡等等。这些暴露有时会展现不可思议的趣味。
▌ 被遗忘的小心机
我用萤石以干粘石工艺设计了墙裙,希望它在夜色中能够如银河闪闪发亮。我在立面肌理中加了落叶的印记,东侧山墙还做了一个切口来呼应斜墙,但这些小伎俩在缓慢的建造中都变得不是很重要,时间把荧光变得暗淡,把叶子的痕迹变得不容易辨识。时间最终把画家之宅变得简单朴素。
▼ 用萤石以干粘石工艺设计了墙裙
▼ 时间最终把画家之宅变得简单朴素
▌ 漫长的建造是一种修行
这个房子造了四年才完工。漫长的建造是一场修行,期间经历许多意外,帮助我认识了自己。
我原本希望一个重要的作品来证明自己,但落成之后,我则觉得证明给其他人其实不那么重要。在朋友圈发布画家之宅的时候,有的人看到了斯卡帕,有的人看到了巴拉甘,有的人看到了蒙德里安,更有人看到了方形的朗香和安藤。都没错,一个作品有足够多的解读就能证明它的丰富性,每个人看到的是自己所想看的,那么我看到的一定是我种种过去以及决心新生的未来。假如这个世界不够美好,就让我们创造一个新的吧。
四年间建筑师的草图
▼ 2013年
▼ 2014年
▼ 2015年
▼ 2016年
▼ 建成(陈颢摄)
项目信息
主持建筑师:俞挺
项目建筑师:俞挺
建筑设计:夏慕蓉,黄河
室内设计:宋梦娇,潘大力
业主:李斌
建筑面积:250㎡
结构形式:钢筋混凝土框架
设计时间:2013
建造时间:2014-2017
摄影:CreatAR Images 清筑影像
(艾清,毛盈晨,史凯程)
苏圣亮
陈颢
尹明
你看到了矶崎新设计的第一画室,
也看到了被改建的第二画室,
现在你可以看一眼第三画室
▼
WutopiaLab设计的第三画室(2012年建成)
彩蛋
▼
地主是谁
俞挺(油画由李斌绘制)
▌ 建筑师俞挺
建筑师、美食家、作家、业余历史学者、重度魔都热爱症患者、身体力行的都市生活家实践者、兼具高逼格思维与表达的话唠,金陵路梦幻空中别墅“水塔之家”改造者,女性bnb创造者,城市微空间孜孜不倦的强迫症修正师。
俞挺认为建筑应该刺破形式主义的皮囊,坦诚人的七情六欲,并继续深入,刺醒久已沉睡的灵魂。俞挺的建筑,精致的拙朴,是他追求的建筑境界。如果这个世界不够美好,我们就给他创造一个新的世界。
敬请期待
Wutopia Lab接下来的作品
为无人驾驶设计的迷宫
instant asgard
▼
苏州钟书阁
▼
?
苏 州 钟 书 阁 会 是 什 么 样 ?