供稿:Wutopia Lab
本文已获得授权
大叔需要用设计创造的惊喜去抵抗日常的平庸
▽ “微型城市”上空“孤独”的俯瞰
▽ 旧场里的微光
建筑师找建筑师设计
著名建筑设计公司联创的老板薄曦希望我把UDV联创上海设计谷里的一个前身是健身房的场所改建成尖叫实验室,尖叫是薄曦创立的家居电商,这个实验室就是尖叫的线下体验店。为什么一个有着成百上千建筑师雇员的建筑师去找一个非典型建筑师来设计他精心培育的跨界新品牌?按照薄院长的讲法,被称为上海地主的我,俞挺,本身具有公共性和生活性,这是尖叫实验室这个生活品牌所需要的。
▽ 犹如舞台开幕般的立面
任何室内设计都要去刺激城市公共空间
健身房现状就是一个玻璃盒子。透明玻璃制造了一个开放的幻觉,但其实是牢笼,我决定去打破它。我把尖叫实验室看成一个可以成长的复杂系统,它需要突破自己边界。我首先在南侧设置了一个标志性的入口,直接将南侧主路人流截留进入实验室,其次保留北侧的入口,再次在利用固定家具分隔开展厅和办公区后保留两者之间的联系过道。在东侧我用一个悬挑的透明玻璃空间打破建筑界面去接近东侧树林。最后我审视了建筑的屋顶,决定设计一个微型的中庭,在里面安放一个升降梯,就可以突破天花占据屋顶,俯瞰控江路。
▽ 黄色“穿破”幕墙,成为入口
▽ 阿尔瓦•阿尔托的椅子独享着悬挑的玻璃空间
▽ “迷雾”里的玻璃中庭
▽ 北侧入口成为黄昏时分最有魅力的空间
一个室内可以是一个微型城市
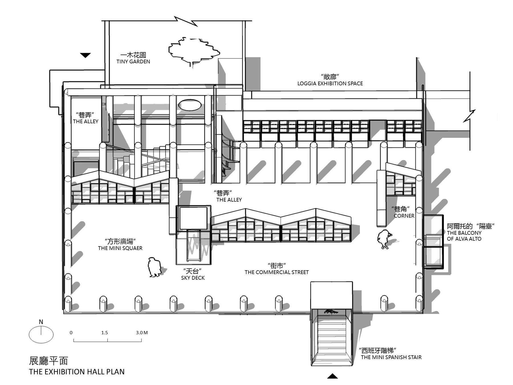
尖叫实验室究其本质首先就是个家具展厅,建筑师决定用家具去创造一个微型城市。这个城市由广场,商业街,露台,电梯,大台阶,街道立面,天际线以及一些边缘空间组成。建筑师试图用家具的设计和组合来实验《建筑的模式语言》的某些结论。
▽ 微型城市的建构逻辑
表现主义的幽灵
在我的绘画学习中,中国元代山水的笔墨和德国表现主义情绪化的色彩是两个重要的范本。长期的现代主义建筑学教育,让我慢慢将色彩隔离在建筑设计之外。从紫一川别墅售楼中心(←点击)开始,我重新尝试在建筑上使用饱和度高的颜色,并由此复活了德国表现主义种植在我内心的色彩。在二更之眼(←点击)中,我尝试将建筑里外全部刷上黑色,并点缀高饱和度的蓝色,让建筑有了一种节制的性感。于是在之后一个人美术馆的黑房子(←点击)以及古北一号(←点击),我都大面积地使用了黑色,白色能把所有不好的东西反射而创造一种纯洁,黑色则是吸收所有的不好而创造一种诱惑,这点令人着迷。尖叫实验室LOGO的基色是黑和明黄,于是我就这两种颜色去塑造室内的基本背景。最后在房子的背面有个多余的小角落,呼应室外鲜艳的绿色,我决定用红色一刷了之,实话说,我真对性冷淡的室内厌倦了。
▽ 黄色箭头引领进入“微型城市”
▽ 流动的黄色和黑色,融化了的固态展陈空间
▽ 城市窗口般的可开启的储物格
▽ 设计中意外偶得的红色空间
(照片由陈默默拍摄)
半透明
建筑师设计了三组固定家具,第一组是用半透明亚克力作为背板的柜子来表达街道连续立面和城市天际线。建筑师在最近一系列作品中持续在界面试验半透明上,他注意到借助光线可以使得界面可以封闭,也可以因为影子消解质感而半开放,这样的界面具有多义性,建筑师其实希望城市界面也能如此。
▽ 家具中的半透明界面
家具可以重新定义场所
我们把亚克力柜子设计成一个有三角形顶部的单元,这些单元通过组合可以按需分隔成不同的区域,就如传统中国空间里的屏风,这就是家具重新定义场所。第二组固定家具是展厅和办公的隔墙,家具的翻板和暗柜收拢时,它就是常见的兼做隔墙的壁柜,当暗柜移出,翻板打开,这就是一个展示区。第三组家具和第一组第二组家具限定后形成的所谓商业街的尽端,它是个展架也是个休息座更是立面。然而这是不够的。薄曦在全透明的悬空玻璃房上放了一把阿尔瓦阿尔托送给木匠的原型椅,这把被木匠自作主张刷上红漆的椅子就把玻璃房重新定义成和室外绿树几乎伸手可得的一个人发呆和思考的场所。让这个空间可以脱离主体空间而完整独立地存在。
▽ 重新定义空间的家具,一座移动的“微型城市”
全上海最孤独的下午茶
我最后请求薄曦在升降机上放一个椅子和茶几。这样的交通空间可以被定义成移动的休憩空间。当平台缓慢升出屋顶,玻璃天花仿佛水面映射着自己,这是一个可以短暂失神的时刻,我想,这如果可以是一个人的下午茶,那该是多么孤独啊。薄曦贴心地选用了乔尔根•霍夫尔斯科夫(Jorgen Hovelskov)的竖琴椅。当我看到那椅子的缓缓从屋面升起,仿佛看到一首赞歌。
杨浦的午后
我俯瞰着脚下的时间---一个固体,我想
我有些迷离
记忆就是水蒸汽 沸腾
我需要一个符咒
是 什么被我丢进火焰
啪的一声
有猫
说到底
爱就是深渊
我 孤独地坐在高峰
移动不了的 大山
▽ 一个人的下午茶
PS
城市微空间复兴的一个诘问:
工人新村如何复苏
UDV联创上海设计谷是以前的新凤城迎宾馆改建而成。而其所在的凤城新村则是由解放后上海市政府为解决工人居住问题而推行的“两万户”计划中的三号基地逐渐发展壮大而成的著名工人新村。在近20年,凤城新村似乎并没有赶上上海发展的脚步。杨浦的街道大多以东北城市命名,结果杨浦似乎成了上海的东北,有过极其辉煌的历史,当下尽管努力但显然落后了。商业中心和高级住宅楼掩盖不了杨浦的失落,却又如同遮眼布挡住了杨浦值得保留的工业文脉的光辉。尖叫实验室在城市上的意义是,设计作为一种工业的武器可以借用建筑和空间改造来重新定义工人新村和工业遗产,孤独的下午茶并不是所谓的情怀,而是一种可能性针灸,在大家习以为常的场所中创造一个自豪的希望。
▽ 俞挺与薄曦
(照片由陈默默拍摄)
▽ 改造前
▽ 旧场的慢慢新生
技术图纸
▽ “微型城市”的多样性与故事性
▽ 平面图
▽ 入口设计图
▽ 家具设计图
项目信息
主持建筑师:俞挺
项目建筑师:鲍勃胡
地点:上海市杨浦区控江路1500弄UDV联创上海设计谷8号楼
面积:180平米
时间:2016/11-2017/4
材料:欧松板,亚克力,硅酸钙板,碳化木地板
设计公司:Wutopia Lab
摄影:CreatAR Images 清筑影像(艾清,史凯程)
彩蛋
▼
地主是谁
(照片由陈默默拍摄)
建筑师俞挺
建筑师、美食家、作家、业余历史学者、重度魔都热爱症患者、身体力行的都市生活家实践者、兼具高逼格思维与表达的话唠,金陵路梦幻空中别墅“水塔之家”改造者,女性bnb创造者,城市微空间孜孜不倦的强迫症修正师。
俞挺认为建筑应该刺破形式主义的皮囊,坦诚人的七情六欲,并继续深入,刺醒久已沉睡的灵魂。俞挺的建筑,精致的拙朴,是他追求的建筑境界。如果这个世界不够美好,我们就给他创造一个新的世界。
敬请期待
Wutopia Lab的下一个作品
滇池路100号,倾听这城市最微弱的声音
▼