供稿:中南置地、Wutopia Lab
本文已获得授权
从游牧社区到定居社区
过去10年间很多人平均每三年迁徙一次,当迁徙是常态的时候,根本无暇顾及房子是不是设计到位、社区生活是不是方便、邻里关系是不是和谐。所以以前的房子金融属性过强,开发商不管是规划尽量多的别墅、还是做刚需小户型、还是上石材外立面,无非一个目的:卖的又快又好,而业主买这些房子也是只看外在硬件。
近日北京、杭州、苏州陆续楼盘开始降价销售,降幅从20%到40%不等,究其背后原因无非三个:
1、 限购。这波限购持续之长历史少见,并且一直强调“房子是用来住的”,大力发展租住市场。
2、 供需。人口红利逐年消失,连微信和淘宝用户增长都减速很多,刚需买房人群比5年前大幅度萎缩。
3、 升级。国家最近定义新矛盾:人民日益增长人民日益增长的美好生活需要和不平衡不充分的发展之间的矛盾。美好生活首当其冲就是房子升级。
所以规划如何升级、户型配置如何升级、社区配套如何升级成为各个开发商目前必须要面对的课题,今天我们拿俞挺做的“六合院”来看下中南置业社区升级的思路。
—— AssBook设计食堂 光头李
六合院:一个关乎居民幸福的房地产创新
六合院
城里人的命运是要成为一个人
同时又要成为许多人
Wutopia Lab 用1:1比例将应中南置地委托的新邻里中心研究成果以艺术装置的方式在本年度11月18日的一个活动上呈现出来。我把这个被称为比邻好的项目命名为六合院。
上句:研究六合院
就在这里就在此刻就在面前,
没有超出今日所见六合院以外的地方。
01
需求
中国房地产发展至今,在房型、景观和总体规划上已经非常成熟,可是我们的社区又是自私的,社区居民之间无法利用所谓物业用房或者居委会或者业主委员会来构筑成熟邻里关系。
事实上,房地产的高速发展和早期的低房价,使得居民变成迁徙在更新更好住区的牧民,社区成为暂住的住区,每个人都没有足够的时间关心其他人建立关系,庞大的社区由关系松散或者割裂的家庭组成,每个家庭都是孤岛,社区其实就是陌生人组成的住区,没有守望互助的邻里,更没有社区归属感。
中南置地注意到如今越来越多的居民开始考虑选择值得长期稳定居住的社区。他们对仅仅提供健身和炫耀身份的会所并非急需,而对稳定的邻里关系和建立家与公共空间之间的过渡空间比如社区客厅的迫切成为刚需。
由此希望我能够研发一个产品来复兴温暖的邻里关系,它能够容纳并构筑真正良性积极的邻里关系,这就是六合院。
02
六合
通过中南置地和建筑师的调研和观察,我们达成共识,如今从单纯居住的住区到可持续活力的社区发展的过程中,居民有以下几种迫切的生活需求:居家之外的会客,商务,公文处理,节省时间的优质食品购买,临时性的简餐夜宵早点,社区居民尤其家庭主妇的社交,儿童活动学习场地等等。
就此双方团队确定了邻里中心六个基本功能模块:
01社区客厅:提供会友,社交包括咖啡喝下午茶,还包括临时的公文处理等,
02社区食堂 :提供精致简餐,面包,咖啡和早点以及下午茶等餐点,
03共享厨房 :居民通过预约利用设备举行聚会,美食课程,烘焙课程等生活活动,
04儿童天地 :提供绘本阅读空间同时也是亲子空间,居民围绕这个空间可以开展阅读课程,戏剧表演等儿童的课余活动,也是暂时托放孩子的场所,
05生鲜超市:是大电商的最终端供应,提供有质量保证的肉菜奶蛋供应,日常用品,甚至包括社区的快递收发分拣递送,
06共享书吧 :提供会议,学生课后作业及补习课堂,阅读以及书法插花等文化生活审美活动。
△ 社区客厅及共享厨房
△ 社区食堂
△ 生鲜超市
△ 共享书吧
每个模块的规模都控制在6乘6的方格单元中。这便是六合的直接意思。
03
小院
从江南的士子到现在的居民都会同意隔离自然,我们的精神恐怕会被套上无形的枷锁。园林和景观则由此而兴。
但目前的社区景观固然漂亮,不过其完全的公共属性并不能保证居民的私密拥有。而在大规模住区里拥有独立产权的院子是奢侈的。于是我们在六合院中打造了三个小院子即袖珍园林来作为朋友亲密尺度下可以分享的场所。
一个是包含茶亭的花园(生活审美空间),一个是联系独立包房的看院(思考空间),以及一个可以采摘实用的香料花园(功能空间)。它们是邻里中心的边界,衔接了了私人领域(家)和公共领域(社区和城市)。
居民的使用完全基于实际需求按预定使用,在你的时间是属于你的,在没有预定的时间里则属于社区所有居民。小院是六合院建筑功能和立面不可分割的一部分,这样,六合院的原型就诞生了。
04
深山
六合院不应该是一个单纯的功能建筑,它应该具有一定程度的象征意义。于是我在立面上创造了一个形式上似乎和六合院建筑无直接关联的山水。
其实山水和使用六合院的居民有着文化和审美上有着密切联系。提炼过的山水一直是中国人的理想世界,一面对城市化侵蚀自然的有着迷惑恐惧的矛盾心情,一面又乐在其中。
这个山水立面为久居城市的人创造一种甜蜜的忧愁,对遥远的自然的怀旧,更是一种暗示,深山之后的六合院就是美好。
05
终极社交生活场所 - 六合院
六合的本意来自于隋朝宇文恺创立的模件,这名为六合的基本模块可以因地制宜地组合成城市和宫殿。六合院也是如此,它的六个基本模块根据社区规模,需求不同加上院子而任意组合成不同尺度的六合院,仿佛隐藏在深山里的它成为社区居民聚集交流的生活和社交的场所。
从而我们逐渐遗忘的邻里关系得以重建,社区生活得以复兴。六合院成为社区的公共中心,在这个社区地标里,
The friends old
And the friends new here.
没有陌生人,这样社区居民的归属感、安全感和自豪感由此而生。
下句:搭建八百秀
建筑学的世界里,我决定不挑容易的事来做。
06
逆世界
中南置地决定用3天把六合院搭建出来,成品只存在24小时。我决定用艺术装置的方式超现实地表现六合院。这要求我们必须从实际复原设计的窠臼中跳出来。
于是大家决定把设计的二楼楼板去除,把二楼的平面布置倒置在天花上,一层保持现场体验,但一抬头,就用看的方式来了解设计师的二楼意图。倒置在天花上的平面就是原来设计的逆世界。
这样进入六合院的观众可以同时体验两层楼的空间变化,反而创造了一种对现实的超现实主义的新体验。
△ 轴测
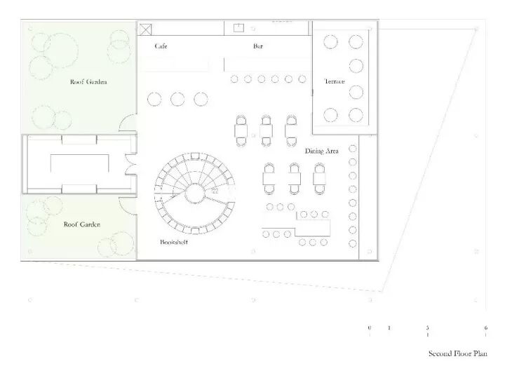
△ 首层平面图△ 二层平面图07
半透明
即便在室内,我用双层阳光板作为六合院装置的边界。包裹结构的双层板形成了一道半透明的界面,将影子,光线和反射碾在一起,这样消解了建筑的体积。
六合院装置里的所有的家具在保证实用的前提上,抽象精炼成最基本的白色线和面,地面是黑色地胶,最大程度突出了白色家具,使其似乎不真实。
但这些不真实的真实使用的家具能够最大程度吸引观众的注意力。
08
水墨
作为象征的山水依然要作为建筑的视觉界面而在。我用黑白灰贴膜PC板来为六合院装置构建一层水墨山水界面。
每一片墨山都用悬吊方式固定,仿佛水墨酣畅淋漓。创造了人在市井,如处深山。
层层叠叠的立面保护的是居民在他们不怀好意窥测下维持自得的人生,又在社区和城市界面展示了优雅的美学态度。
09
萃取:作为装置的六合院
我们事实上创造了一个至上主义的六合院装置。
它和最初的六合院设计在体感上已经差异极大,它用一个超现实主义的叙事方式表达原来现实主义叙事一样的主旨即真正的精神生活,就在天明之后等待人们的日常生活之中。
横批:凡人的幸福
作为装置的六合院,或者日后建成的六合院其实更是一个重要的舞台。每个人只要did great, real great,都可以在这里成为他们生活的英雄。这样看来,能否创造好六合院似乎关乎他们的幸福。
小院深山里,五声著黄钟。
独听非我愿,六合有春容。
最后,作为装置的六合院证明六合院就是社区地平线上的那个众望所归的去处。
项目信息
六合院——新型邻里中心研究
设计公司: Wutopia Lab
主持建筑师:俞挺
设计团队: 濮圣睿,孙丽然,张立睿
灯光顾问: 张晨露
面积: 216㎡
设计时间:2017年
地址:上海,中国
摄影: CreatAR Images 艾清
彩蛋
▼
地主是谁?
俞挺
(油画由李斌绘制)
▍ 建筑师俞挺
建筑师、美食家、作家、业余历史学者、重度魔都热爱症患者、身体力行的都市生活家实践者、兼具高逼格思维与表达的话唠,金陵路梦幻空中别墅“水塔之家”改造者,女性bnb创造者,城市微空间孜孜不倦的强迫症修正师。
俞挺认为建筑应该刺破形式主义的皮囊,坦诚人的七情六欲,并继续深入,刺醒久已沉睡的灵魂。俞挺的建筑,精致的拙朴,是他追求的建筑境界。如果这个世界不够美好,我们就给他创造一个新的世界。
敬请期待
Wutopia Lab接下来的作品
?
精心挑选项目中
敬请期待