长住建发(2020〕101号
湘江新区住建环保局、高新区住建局、高新区质安站、长沙经开区资规建局、浏阳经开区建设局、宁乡经开区规建局、市质安监站、市住建执法局,各区县(市)及园区住建局,各相关单位∶
为全面落实市政府关于城市管理"四精五有"理念,进一步提高我市建设工程施工围挡的建造管理水平,提升城市市容市貌,经市政府同意,现就推广应用新型装配式围挡相关事项通知如下∶
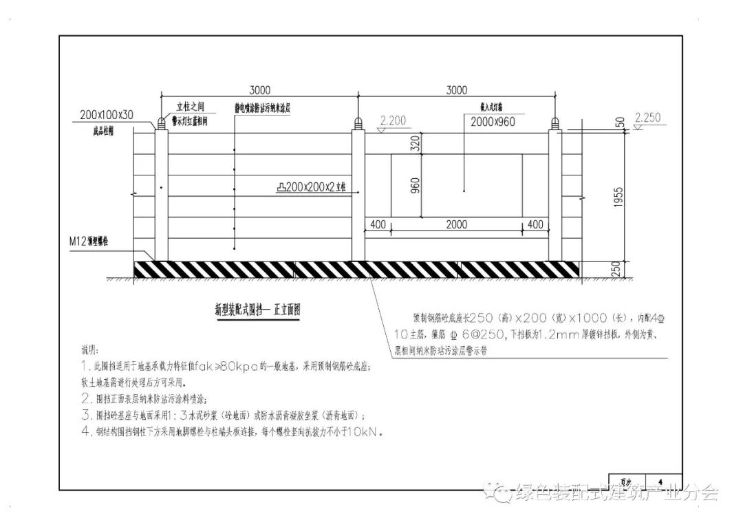
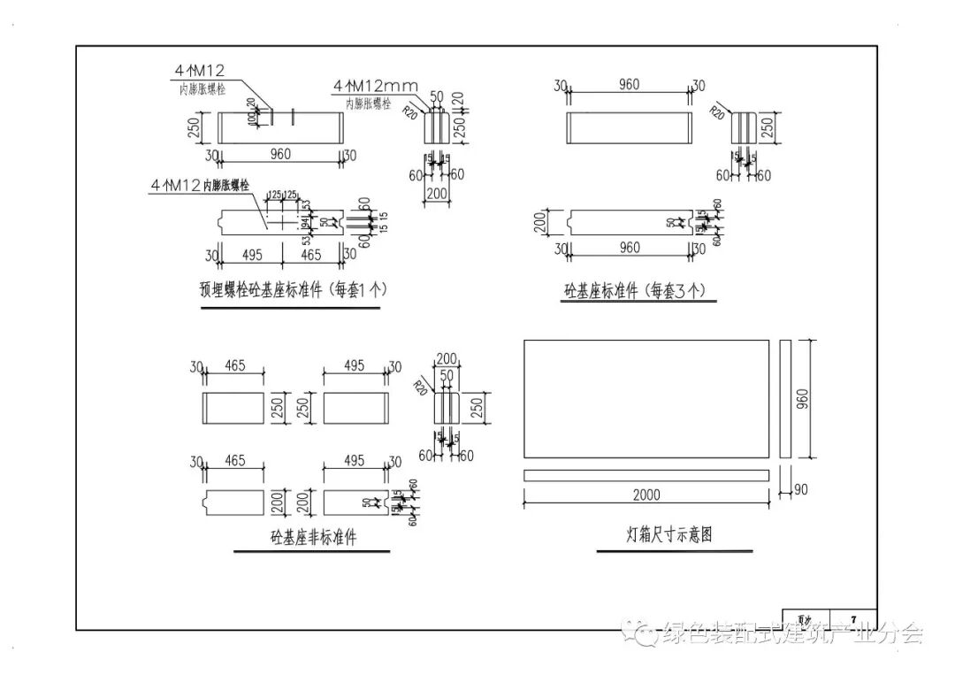
一、本通知所称新型装配式围挡,包括预制钢筋混凝土基座、钢制立柱、钢制横板、钢制竖板、斜撑杆、喷淋系统、警示灯、灯箱广告等。新型装配式围挡应用于市政道路、桥梁、地铁、隧道等线性工程,同时适用于房屋建筑工程的施工围挡。具体制作要求详见《长沙市新型装配式围挡标准图集(2020年版本)》(附件)。
二、推广实施范围、步骤
1.2020年10月1日起,湘江新区、高新区、内五区(含园区)及高铁会展新城片区范围新建、改建政府投资建设项目(建设工期3个月以上),全面采用新型装配式围挡;社会投资项目推荐采用新型装配式围挡。
2.2020年10月1日前,长沙市范围已开工建设项目(含社会投资项目)施工围挡,仍按《长沙市建设工程施工围挡标准图集(2018年版本)》执行,相关责任单位应严格按照要求对施工围挡整改、维护到位,确保围挡质量和外观整洁。
三、新型装配式围挡计价标准及费用
1.市建设工程造价站在新型装配式围挡应用实施后,对围挡安装、拆除人工、机械消耗量等计价标准子母进行现场测定,出台相关计价标准。计价标准出台前先期实施的新型装配式围挡,由建设单位与施工单位先计量,后续按照出台的计价标准办理结算。
2.已招标未开工项目,采用新型装配式围挡不再履行变更程序,由建设单位按实签证直接纳入结算。
3.2020年10月1日前已开工项目的施工围挡如需更换,应尽量按照新型装配式围挡标准执行,增加费用按照《长沙市政府投资建设项目管理办法》相关规定办理。
四、新型装配式围挡验收、监管及维护
1.建设单位、监理单位、施工单位应确保新型装配式围挡设置满足《长沙市新型装配式围挡标准图集(2020年版本)》要求。围挡安装完成后,建设单位牵头组织相关单位人员就围挡质量、安全等方面进行验收。
2.新型装配式围挡应在显著位置设置监管公示牌,公示内容包括行业监管机构、建设、监理、施工单位及维护责任人等相关信息。
3.各级建设行政主管部门、质安监督机构应将新型装配式围挡设置、日常维护纳入工地文明施工监管范围,对不满足要求且拒不落实整改的责任主体单位,依法进行处理。
五、公益广告刊播要求
新型装配式围挡设置后,公益广告刊播按相关要求执行。
六、其他
长沙县、望城区、浏阳市、宁乡市范围(含园区)参照此通知执行。
七、本通知自公布之日起施行,有效期3年。
附件∶《长沙市新型装配式围挡标准图集(2020年版本)》
长沙市住房和城乡建设局
2020年10月12日
| 中国建筑节能协会绿色装配式建筑产业分会工作要点 |
推
荐
|
1