全文发布
各区县(自治县)住房城乡建委,两江新区,经开区、高新区、万盛经开区、双桥经开区建管局,工程设计单位,施工图审查机构,施工单位,各有关单位:
特此通知。
联 系 人:王靖博
联系电话:023- 68666733
传 真:023- 68662366
电子邮箱:384148719@qq.com
邮 编:401329
地 址:重庆市九龙坡区凤笙路30号重庆永悦汇管廊科技有限公司
附件:1.征求意见表
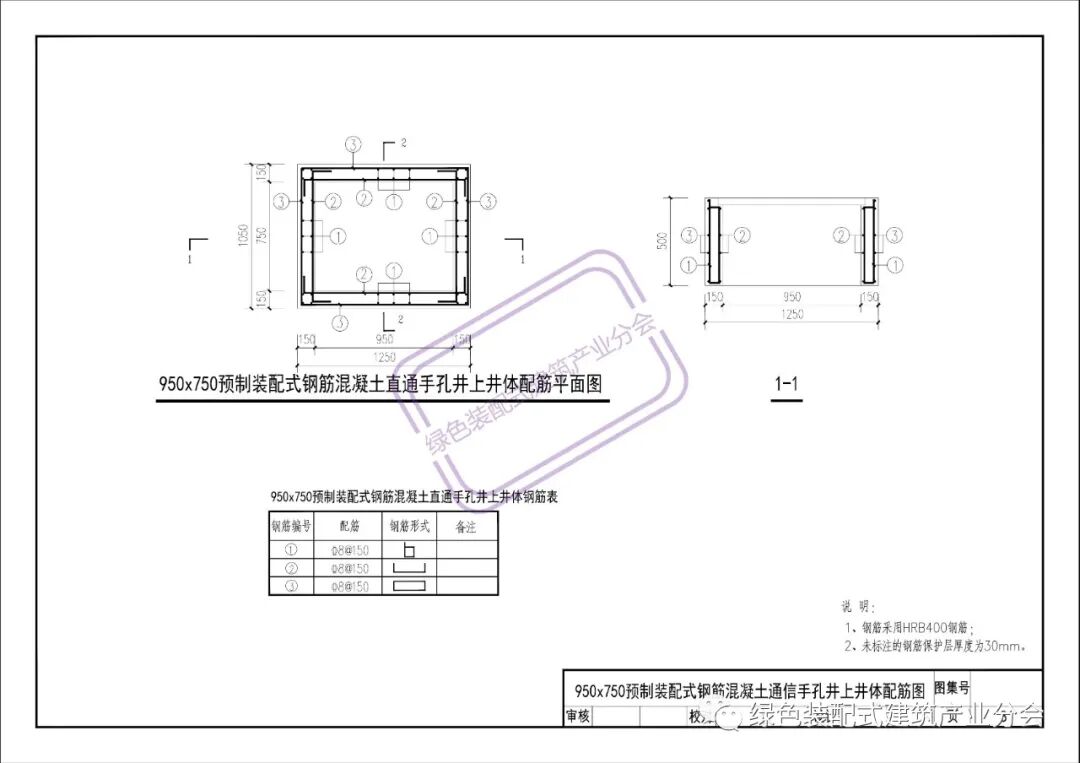
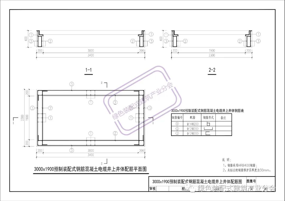
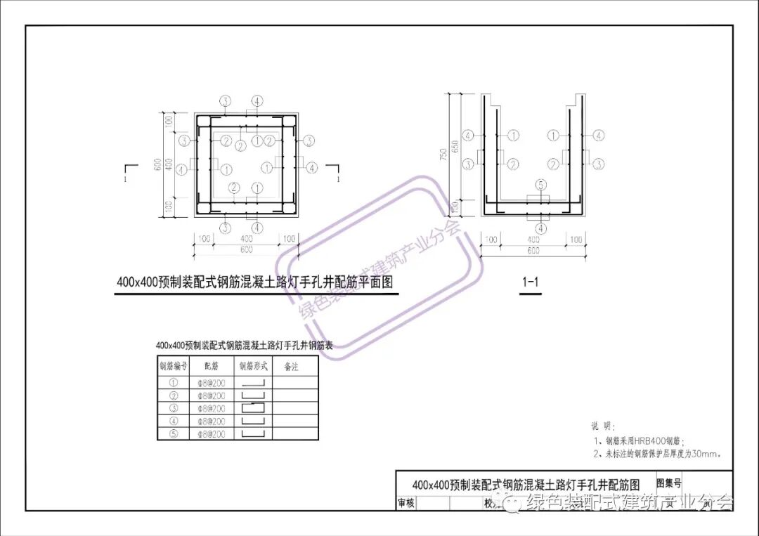
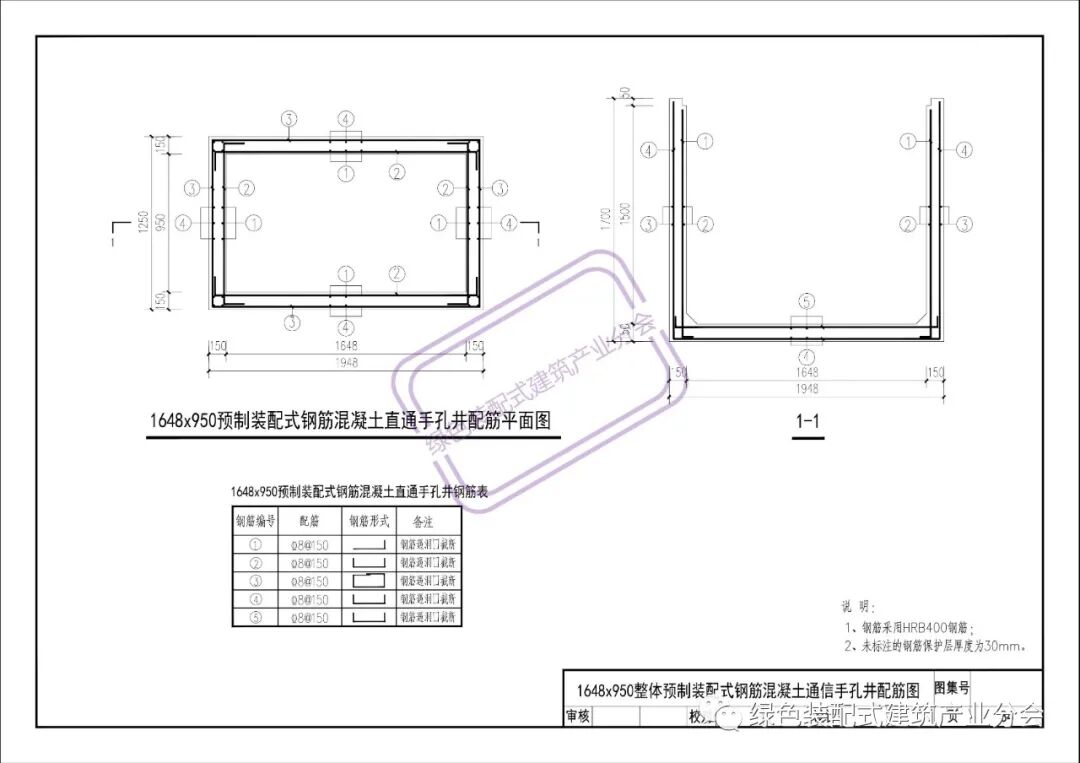
2.《市政基础设施预制装配混凝土小型构件图集(征求意见稿)》
重庆市住房和城乡建设委员会
2020年6月1日
一目了然好门窗
品建100代言样片
1
加入分会获双份证书总会成员证书